Bénéficiez des services de nos partenaires locaux soigneusement sélectionnés
pour vous accompagner dans votre parcours d'achat immobilier

Voir tous les partenaires locaux

Maison 90m² à la rochelle

— La Rochelle 17000 —
549 900 €
90 m² / 86 m²
4 pièces
balcon/terrassejardin

Nos partenaires locaux
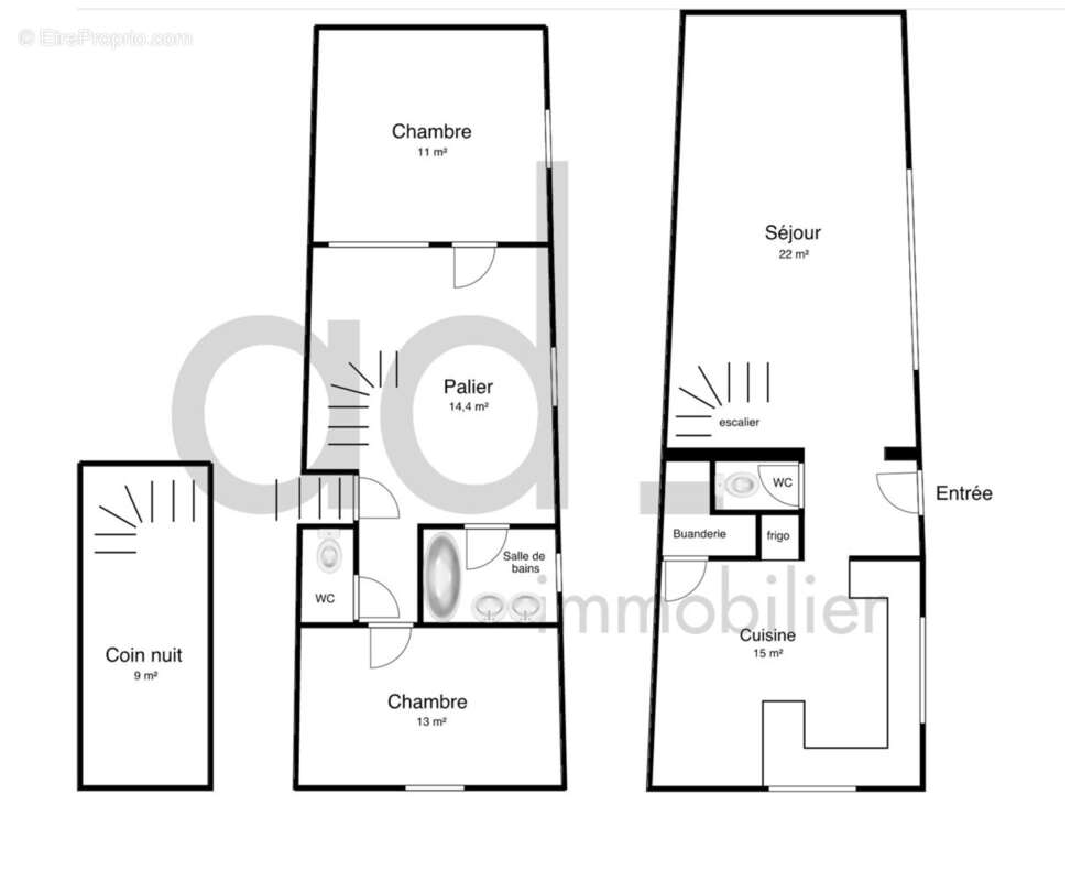
La Rochelle - Hyper-centre - à deux pas du marché - Maison T3/4 de 89m² habitable (et 99m² au sol) pleine de charme située à proximité de toutes les commodités et avec un extérieur intimiste.

Elle comprend un séjour, une salle à manger avec une cuisine ouverte au rez-de-chaussée une buanderie et un WC.
À l'étage, un grand palier avec un espace bureau, deux chambres dont une avec mezzanine et avec un accès sur une terrasse. Une salle de bains, un coin nuit sous comble pouvant servir de 3ème chambre et un WC indépendant.

Un local pouvant servir de stockage ou de local vélo.

Visite virtuelle sur demande!

Honoraires inclus de 3.75% TTC à la charge de l'acquéreur. Prix hors honoraires 530 000 €. Classe énergie D, Classe climat D Montant moyen estimé des dépenses annuelles d'énergie pour un usage standard, établi à partir des prix de l'énergie de l'année 2021 : entre 1260.00 et 1760.00 €. Les informations sur les risques auxquels ce bien est exposé sont disponibles sur le site Géorisques : georisques.gouv.fr.

Votre conseiller AD IMMOBILIER : Agent immobilier indépendant - Simon Bréant
Carte T CPI64[Coordonnées masquées]00002
RCP GAN ASSURANCES
Voir plus

Référence: AD0910-ADIMMOBILIER
Honoraires d'agence de 3.75% à la charge de l'acquéreur
Barème des honoraires
DPE
A
B
C
D
E
F
G
GES
A
B
C
D
E
F
G

Prêt immobilier

Vous souhaitez connaître votre capacité d’emprunt et trouver le meilleur crédit immobilier ?
Réaliser une simulation gratuite

Maison à LA ROCHELLE
Maison à LA ROCHELLE
Maison à LA ROCHELLE
Maison à LA ROCHELLE
Maison à LA ROCHELLE
Maison à LA ROCHELLE
Maison à LA ROCHELLE
Maison à LA ROCHELLE
Maison à LA ROCHELLE
Ce site est protégé par reCAPTCHA la Politique de confidentialité et les Conditions d’utilisation de Google s’appliquent.
Obtenir un prêt immobilier au meilleur taux ?

En poursuivant votre navigation sans modifier vos paramètres, vous acceptez l'utilisation de cookies susceptibles de réaliser des statistiques de visite. Cliquez ici pour plus d'informations