Local 202 m² lumineux et au calme

— Prades-Le-Lez 34730 —
333 300 €
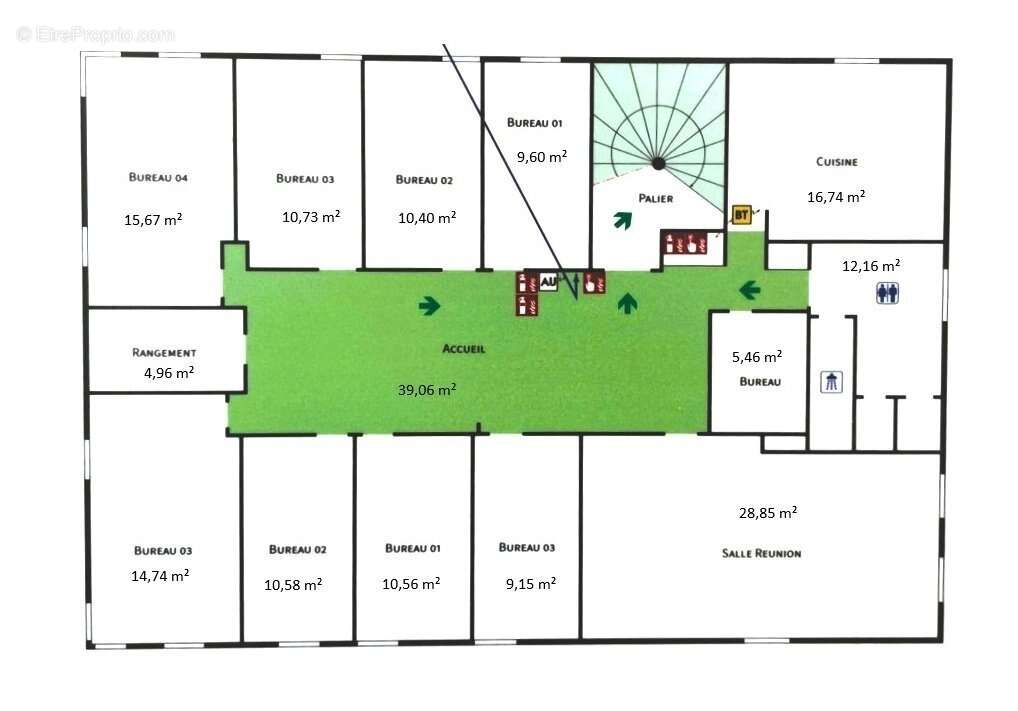
202 m²
12 pièces
parking

Prades le lez, dans un immeuble de bureaux local lumineux de 202 m² avec une petite terrasse extérieure. Un grand accueil open space, une salle de réunion, 9 bureaux , une salle de rangement, un espace cuisine détente et un espace sanitaire avec 2 WC et une douche. Chauffage et climatisation par un système gainable. 12 places de parking privatives. Disponibilité mi novembre 2025.

Référence: 202506457
Honoraires d'agence de 3.09% à la charge de l'acquéreur
Barème des honoraires
DPE
A
B
C
D
E
F
G
GES
A
B
C
D
E
F
G

Prêt immobilier

Vous souhaitez connaître votre capacité d’emprunt et trouver le meilleur crédit immobilier ?
Réaliser une simulation gratuite

Commerce à PRADES-LE-LEZ
Commerce à PRADES-LE-LEZ
Commerce à PRADES-LE-LEZ
Commerce à PRADES-LE-LEZ
Commerce à PRADES-LE-LEZ
Commerce à PRADES-LE-LEZ
Commerce à PRADES-LE-LEZ
Commerce à PRADES-LE-LEZ
Commerce à PRADES-LE-LEZ
Ce site est protégé par reCAPTCHA la Politique de confidentialité et les Conditions d’utilisation de Google s’appliquent.
Obtenir un prêt immobilier au meilleur taux ?

En poursuivant votre navigation sans modifier vos paramètres, vous acceptez l'utilisation de cookies susceptibles de réaliser des statistiques de visite. Cliquez ici pour plus d'informations