Bénéficiez des services de nos partenaires locaux soigneusement sélectionnés
pour vous accompagner dans votre parcours d'achat immobilier

*** rare *** quartier st honoré *** terrain avec permis de construire accordé ***

— Amiens 80000 —
79 000 €
188 m²

Nos partenaires locaux
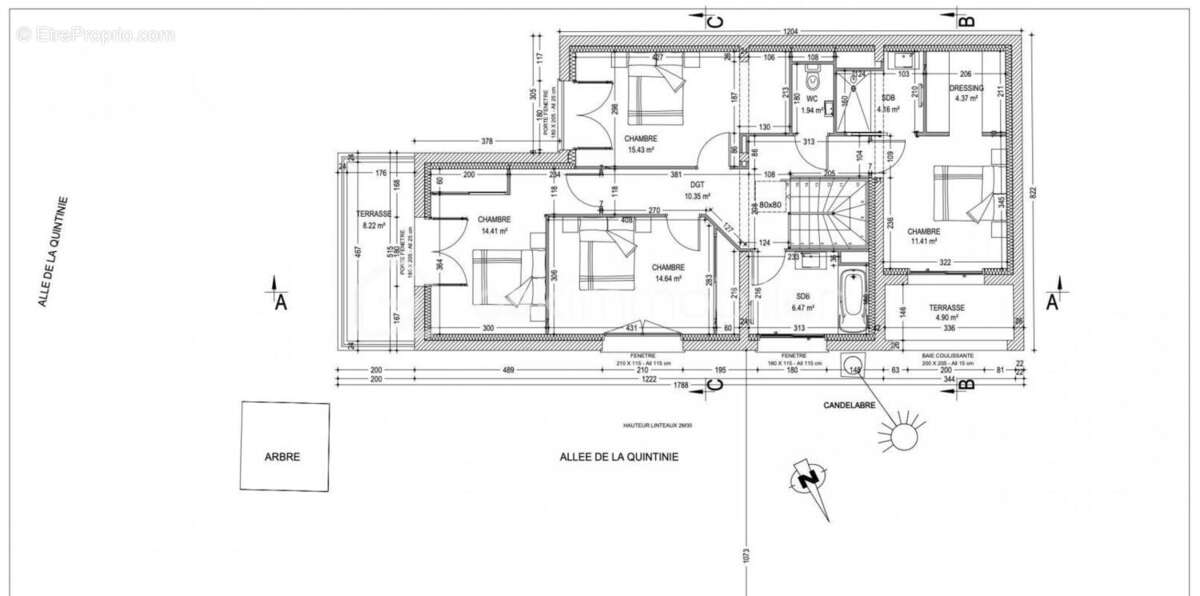
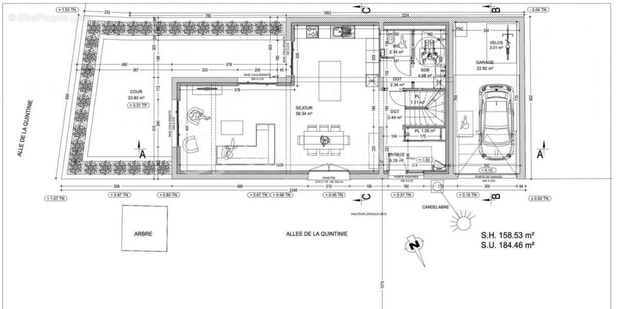
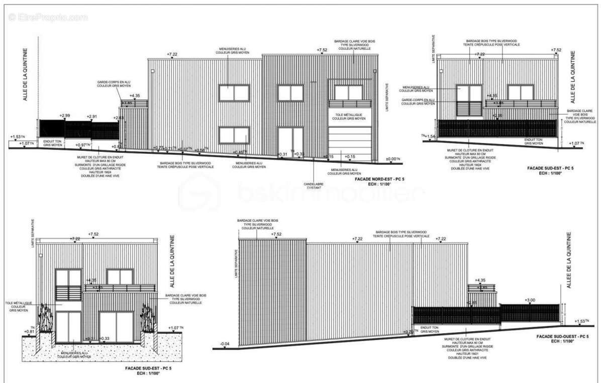
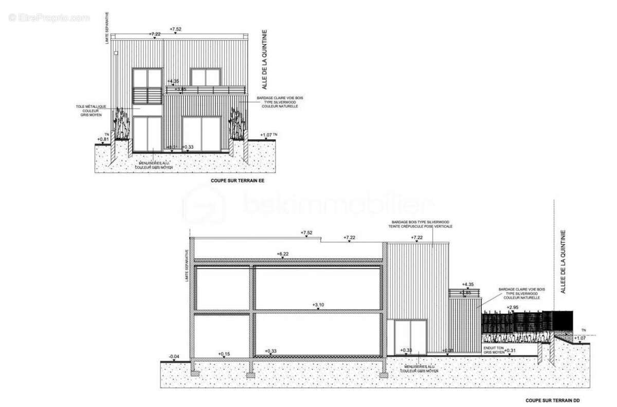
Situé dans une rue calme au coeur du quartier St Honoré, joli terrain à bâtir de 188 m2.

Un permis de construire a été accordé sur celui-ci pour une jolie maison contemporaine de 160 m2 habitables plus un garage.

Ce permis est purgé de tous recours donc vous pourrez construire immédiatement... aucun délai d'attente administratif.

Professionnels du bâtiment ce projet est fait pour vous !

Cette annonce référence 260411 vous est présentée par votre agent commercial BSK Immobilier GREGORY MATTENS (EI) immatriculé au RSAC de AMIENS (80000) sous le numéro 520[Coordonnées masquées]0.

Prix du bien : 79 000,00 €
Les honoraires d'agence sont à la charge du vendeur.

Les informations sur les risques auxquels ce bien est exposé sont disponibles sur le site Géorisques : www.georisques.gouv.fr
Voir plus

Référence: 260411_1
Honoraires à la charge du vendeur.

Prêt immobilier

Vous souhaitez connaître votre capacité d’emprunt et trouver le meilleur crédit immobilier ?
Réaliser une simulation gratuite

Terrain à AMIENS
Terrain à AMIENS
Terrain à AMIENS
Terrain à AMIENS
Terrain à AMIENS
Terrain à AMIENS
Terrain à AMIENS
Terrain à AMIENS
Ce site est protégé par reCAPTCHA la Politique de confidentialité et les Conditions d’utilisation de Google s’appliquent.
Obtenir un prêt immobilier au meilleur taux ?

En poursuivant votre navigation sans modifier vos paramètres, vous acceptez l'utilisation de cookies susceptibles de réaliser des statistiques de visite. Cliquez ici pour plus d'informations