Bénéficiez des services de nos partenaires locaux soigneusement sélectionnés
pour vous accompagner dans votre parcours d'achat immobilier

Appartement t2 loué – investissement locatif

— Crevin 35320 —
143 000 €
45 m²
2 pièces
parkingbalcon/terrasse

Nos partenaires locaux
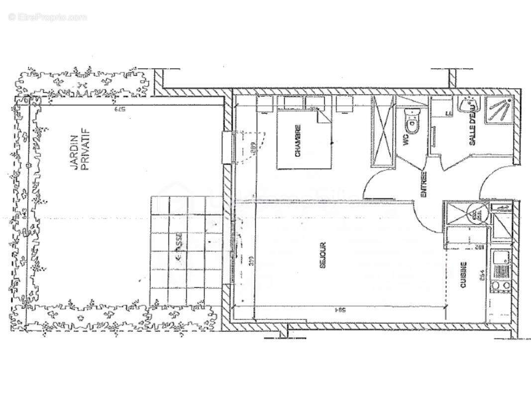
Emilie MARTIN – Réseau BSK Immobilier vous propose en exclusivité cet appartement T2 situé en rez-de-jardin dans une copropriété sécurisée, au cœur de Crevin. Une opportunité idéale pour un investissement serein et pérenne.

Un bien fonctionnel et agréable :
- Entrée avec placard pour un espace optimisé
- Salon-séjour lumineux avec cuisine ouverte, aménagée et équipée
- Chambre spacieuse, offrant tout le confort nécessaire
- Salle d'eau fonctionnelle
- Jardinet privatif, parfait pour profiter de l'extérieur en toute tranquillité
- Place de parking réservée

Un investissement sécurisé :
- Locataire en place jusqu'en décembre 2027
- Loyer mensuel charges comprises : 560 € (dont 40 € de charges)
- Location non meublée

Un emplacement privilégié

Idéalement situé, ce bien bénéficie d'une proximité immédiate avec les commodités et d'un accès direct à la 2x2 voies, facilitant les déplacements.

Une belle opportunité pour investir en toute sérénité.
Contactez-moi dès maintenant pour plus d'informations ou organiser une visite.

Cette annonce référence 272412 vous est présentée par votre agent commercial BSK Immobilier EMILIE MARTIN (EI) immatriculé au RSAC de RENNES (35000) sous le numéro 79126710700021.

Prix du bien : 143 000,00 €
Les honoraires d'agence sont à la charge du vendeur.

A propos de la copropriété :
Procédure en cours.
Nombre de lots : 2
Charges prévisionnelles annuelles : 765,00 €

A propos des performances énergétiques :
Date de réalisation du diagnostic énergétique : 20/10/2021
Score DPE : 164 kWhEP/m²/an
Score GES : 5 kgepCO2/m²/an
Montant estimé des dépenses annuelles d'énergie pour un usage standard : entre 711.00 € et 961.00 € par an. Prix moyens des énergies indexés sur l'année 2021 (abonnements compris).

Les informations sur les risques auxquels ce bien est exposé sont disponibles sur le site Géorisques : www.georisques.gouv.fr
Voir plus

Référence: 272412_1
Bien en copropriété. Nombre de lots : 2. Charges de copropriété : 63 €.
Honoraires à la charge du vendeur.
DPE
A
B
C
D
E
F
G
GES
A
B
C
D
E
F
G

Prêt immobilier

Vous souhaitez connaître votre capacité d’emprunt et trouver le meilleur crédit immobilier ?
Réaliser une simulation gratuite

Appartement à CREVIN
Appartement à CREVIN
Appartement à CREVIN
Appartement à CREVIN
Appartement à CREVIN
Appartement à CREVIN
Appartement à CREVIN
Ce site est protégé par reCAPTCHA la Politique de confidentialité et les Conditions d’utilisation de Google s’appliquent.
Obtenir un prêt immobilier au meilleur taux ?

En poursuivant votre navigation sans modifier vos paramètres, vous acceptez l'utilisation de cookies susceptibles de réaliser des statistiques de visite. Cliquez ici pour plus d'informations