Exclusivité, ardèche saint sauveur de montagut - grande maison - 4 chambres - très grands garages en rdc

— Saint-Sauveur-De-Montagut 07190 —
190 000 €
120 m² / 660 m²
7 pièces
parking

Grande maison de 300m² avec grandes terrasses

Elle dispose au rez de chaussée de deux grands garages d'une superficie totale de 186m², la hauteur sous plafond est de 3m, il serait possible de garer de nombreux véhicules, tel que camping-car ou fourgon, cet espace en fait un espace idéal pour un artisan ou un collectionneur de voitures ou bien encore pour du stockage.

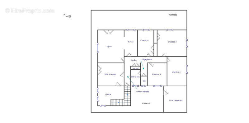
Au premier étage vous trouverez une salle à manger lumineuse d'une superficie de 12m², un séjour de 20m² avec accès direct sur la terrasse ainsi qu'une cuisine séparée de 8,5m² équipée et fonctionnelle. Également 4 chambres de 16m², 13m²,12m² et 10m², un bureau de 8m², une salle de bain de 4m² et un wc indépendant.

Cet étage est Modulable, Aucun mur porteur, vous pourrez ainsi Créer Votre Intérieur selon vos Envies.

La maison est à rénover mais c'est une construction de qualité.

Une grande terrasse entoure la maison, offrant un espace extérieur idéal pour se détendre et profiter des beaux jours, ainsi qu'un petit jardinet arboré derrière la maison.

La maison est située sur la Commune de Saint-Sauveur de Montagut, proche de toutes les commodités (commerces, offre de soin), crèche, école primaire, collège à 2 kms, lycée de Privas ou du Cheylard à 25 minutes en voiture (ou par un ramassage scolaire).

Valence est accessible en moins de 45mn, Privas en 25mn et les entrées/sorties d'autoroute accessibles en 30mn.
Un bus permet de rejoindre Valence 5 fois/jour dans un sens comme dans l'autre et par la même la gare de Valence ville puis Valence TGV par un TER depuis la gare de Valence ville ou à partir de Beauchastel, ce qui vous permettra de prendre un train vers de nombreuses destinations sur toute la France (Marseille, Lyon, Avignon, Lille, Grenoble, ...) Paris ne sera plus qu'à 3h de la maison.

Idéalement située à proximité de la rivière l'Eyrieux et de la Dolce Via (voie verte), ainsi vous pourrez aisément profiter des beaux jours en faisant des balades à pied ou à vélo au bord de l'Eyrieux, mais également profiter d'un grand nombre d'itinéraires de randonnées au cœur de l'Ardèche sauvage et verdoyante ou bien encore vous rafraichir dans de nombreux points d'eau sur l'Eyrieux, la Glueyre ou l'Auzène accessibles. Vous pourrez aussi pour les plus experts pratiquer la pêche ou le canoë kayak. Les honoraires sont à la charge du vendeur.
Logement à consommation énergétique excessive : classe F
Les informations sur les risques auxquels ce bien est exposé sont disponibles sur le site Géorisques : www. georisques. gouv. fr.

Réseau Immobilier CAPIFRANCE - Votre agent commercial (RSAC N°521 161 752 - Greffe de AUBENAS) Dominique DEJOURS Entrepreneur Individuel [Coordonnées masquées] - Réf.911054
Voir plus

Référence: 340932327208
Honoraires à la charge du vendeur.
DPE
A
B
C
D
E
F
G
GES
A
B
C
D
E
F
G

Prêt immobilier

Vous souhaitez connaître votre capacité d’emprunt et trouver le meilleur crédit immobilier ?
Réaliser une simulation gratuite

Maison à SAINT-SAUVEUR-DE-MONTAGUT
Maison à SAINT-SAUVEUR-DE-MONTAGUT
Maison à SAINT-SAUVEUR-DE-MONTAGUT
Maison à SAINT-SAUVEUR-DE-MONTAGUT
Maison à SAINT-SAUVEUR-DE-MONTAGUT
Maison à SAINT-SAUVEUR-DE-MONTAGUT
Maison à SAINT-SAUVEUR-DE-MONTAGUT
Maison à SAINT-SAUVEUR-DE-MONTAGUT
Maison à SAINT-SAUVEUR-DE-MONTAGUT
Maison à SAINT-SAUVEUR-DE-MONTAGUT
Maison à SAINT-SAUVEUR-DE-MONTAGUT
Maison à SAINT-SAUVEUR-DE-MONTAGUT
Maison à SAINT-SAUVEUR-DE-MONTAGUT
Maison à SAINT-SAUVEUR-DE-MONTAGUT
Maison à SAINT-SAUVEUR-DE-MONTAGUT
Maison à SAINT-SAUVEUR-DE-MONTAGUT
Maison à SAINT-SAUVEUR-DE-MONTAGUT
Maison à SAINT-SAUVEUR-DE-MONTAGUT
Maison à SAINT-SAUVEUR-DE-MONTAGUT
Maison à SAINT-SAUVEUR-DE-MONTAGUT
Maison à SAINT-SAUVEUR-DE-MONTAGUT
Maison à SAINT-SAUVEUR-DE-MONTAGUT
Maison à SAINT-SAUVEUR-DE-MONTAGUT
Maison à SAINT-SAUVEUR-DE-MONTAGUT
Ce site est protégé par reCAPTCHA la Politique de confidentialité et les Conditions d’utilisation de Google s’appliquent.
Obtenir un prêt immobilier au meilleur taux ?

En poursuivant votre navigation sans modifier vos paramètres, vous acceptez l'utilisation de cookies susceptibles de réaliser des statistiques de visite. Cliquez ici pour plus d'informations