Bénéficiez des services de nos partenaires locaux soigneusement sélectionnés
pour vous accompagner dans votre parcours d'achat immobilier

Maison 96m² à fontenay-aux-roses

— Fontenay-Aux-Roses 92260 —
572 000 €
96 m² / 382 m²
5 pièces
balcon/terrasse

Nos partenaires locaux
92260 FONTENAY-AUX-ROSES - PROCHE RER B - COULÉE VERTE - LUMINOSITÉ ET CALME - MAISON DE 5 PIECES

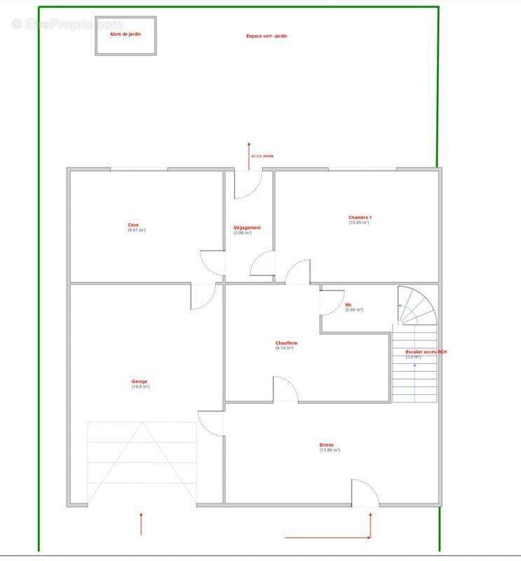
Efficity, l'agence qui estime votre bien ligne, vous propose à la vente cette maison située au coeur d'un écrin de verdure, d'une superficie de 97 m2 (147 m2 au total) sur un terrain d'environ 400 m2.
Maison datant des années 70, elle se compose :
- Au rez-de-chaussée, d'une vaste entrée de 14 m2, d'un garage, d'une chaufferie, d'un bureau ou chambre, d'une cave
- A l'étage, une cuisine séparée, un salon et une salle à manger sur un total de 32 m2, 2 chambres, une salle de bain, wc séparés.
A cela se rajoute des combles aménageables.
Le jardin de plus de 300 m2 est à l'abris des regards.

Des travaux de rénovation sont nécessaires.
Un beau potentiel pour cette maison dans un secteur très recherché !

Les informations sur les risques auxquels ce bien est exposé sont disponibles sur le site Géorisques : http://georisques.gouv.fr
Les informations sur les risques auxquels ce bien est exposé sont disponibles sur le site Georisque : georisques. gouv. fr
Christel Anne Gabard - EI - est Agent Commercial mandataire en immobilier, immatriculé au Registre Spécial des Agents Commerciaux du Tribunal de Commerce de Nanterre sous le n°495290397.
Siège social du mandant : effiCity, 48 avenue de Villiers - 75017 PARIS - Société par Actions Simplifiée, société au capital de 132 373,05 euros, immatriculée au RCS Paris 497 617 746 et titulaire de la Carte professionnelle CPI 75[Coordonnées masquées]02 025 - CCI Paris IDF - Caisse de Garantie : GALIAN Assurances 89 rue de la Boétie 75008 Paris
Voir plus

Référence: 186843
Honoraires à la charge du vendeur.
Barème des honoraires
DPE
A
B
C
D
E
F
G
GES
A
B
C
D
E
F
G

Prêt immobilier

Vous souhaitez connaître votre capacité d’emprunt et trouver le meilleur crédit immobilier ?
Réaliser une simulation gratuite

Maison à FONTENAY-AUX-ROSES
Maison à FONTENAY-AUX-ROSES
Maison à FONTENAY-AUX-ROSES
Maison à FONTENAY-AUX-ROSES
Maison à FONTENAY-AUX-ROSES
Maison à FONTENAY-AUX-ROSES
Maison à FONTENAY-AUX-ROSES
Maison à FONTENAY-AUX-ROSES
Maison à FONTENAY-AUX-ROSES
Maison à FONTENAY-AUX-ROSES
Maison à FONTENAY-AUX-ROSES
Maison à FONTENAY-AUX-ROSES
Maison à FONTENAY-AUX-ROSES
Maison à FONTENAY-AUX-ROSES
Maison à FONTENAY-AUX-ROSES
Maison à FONTENAY-AUX-ROSES
Ce site est protégé par reCAPTCHA la Politique de confidentialité et les Conditions d’utilisation de Google s’appliquent.
Obtenir un prêt immobilier au meilleur taux ?

En poursuivant votre navigation sans modifier vos paramètres, vous acceptez l'utilisation de cookies susceptibles de réaliser des statistiques de visite. Cliquez ici pour plus d'informations