Bénéficiez des services de nos partenaires locaux soigneusement sélectionnés
pour vous accompagner dans votre parcours d'achat immobilier

Appartement

— Toulouse 31000 —
319 500 €
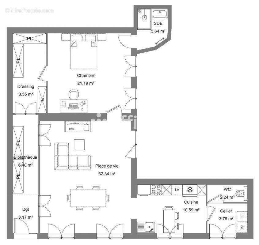
94 m²
3 pièces
ascenseur

Nos partenaires locaux
31000 TOULOUSE - HYPER CENTRE - APPARTEMENT T2/3 A RENOVER - LUMINEUX - AU CALME - TRES BEAU POTENTIEL

Efficity l'agence qui estime votre bien en ligne vous propose cet appartement en hyper centre de Toulouse à réhabiliter.
Actuellement exploité à titre professionnel, ce bien à l'avantage d'avoir la double destination !

Situé dans un petit immeuble datant d'avant 1900, il a tout le charme des appartements Haussmanniens : beaux volumes, belle hauteur sous plafond, moulures, menuiseries, luminosité...
Il dispose également d'un ascenseur.

Pouvant être redessiner en appartement de 2 ou 3 pièces, il offre de belles possibilités d'aménagement (voir photos).
Avec ses 94m² de surface au sol et 91,50m² loi carrez, vous pourrez laisser libre cour à votre imagination dans ce bel espace pouvant offrir un séjour de près de 50m².
Idéalement situé près du Métro Esquirol, il se trouve à proximité d'une école et de nombreuses commodités.

La production d'eau chaude et de chauffage se fait par le gaz de ville.

L'appartement est doté de la FIBRE.

Enfin, une cave de 10m² est rattaché à ce bien.

Produit rare s'il en est, l'opportunité est d'autant plus à saisir au plus vite !

Pour tout complément d'information et/ou pour une visite, vous pouvez me contacter : Céline DARGELAS - [Coordonnées masquées].
Les informations sur les risques auxquels ce bien est exposé sont disponibles sur le site Georisque : georisques. gouv. fr
Celine Dargelas - EI - est Agent Commercial mandataire en immobilier, immatriculé au Registre Spécial des Agents Commerciaux du Tribunal de Commerce de Toulouse sous le n°509626735.
Siège social du mandant : effiCity, 48 avenue de Villiers - 75017 PARIS - Société par Actions Simplifiée, société au capital de 132 373,05 euros, immatriculée au RCS Paris 497 617 746 et titulaire de la Carte professionnelle CPI 75[Coordonnées masquées]02 025 - CCI Paris IDF - Caisse de Garantie : GALIAN Assurances 89 rue de la Boétie 75008 Paris
Voir plus

Référence: 142527
Bien en copropriété. Nombre de lots : 9. Charges de copropriété : 250 €.
Honoraires à la charge du vendeur.
Barème des honoraires
DPE
A
B
C
D
E
F
G
GES
A
B
C
D
E
F
G

Prêt immobilier

Vous souhaitez connaître votre capacité d’emprunt et trouver le meilleur crédit immobilier ?
Réaliser une simulation gratuite

Appartement à TOULOUSE
Appartement à TOULOUSE
Appartement à TOULOUSE
Appartement à TOULOUSE
Appartement à TOULOUSE
Ce site est protégé par reCAPTCHA la Politique de confidentialité et les Conditions d’utilisation de Google s’appliquent.
Obtenir un prêt immobilier au meilleur taux ?

En poursuivant votre navigation sans modifier vos paramètres, vous acceptez l'utilisation de cookies susceptibles de réaliser des statistiques de visite. Cliquez ici pour plus d'informations