Bénéficiez des services de nos partenaires locaux soigneusement sélectionnés
pour vous accompagner dans votre parcours d'achat immobilier

Exclusivité - t4 - villeurbanne

— Villeurbanne 69100 —
239 000 €
61 m²
4 pièces

Nos partenaires locaux
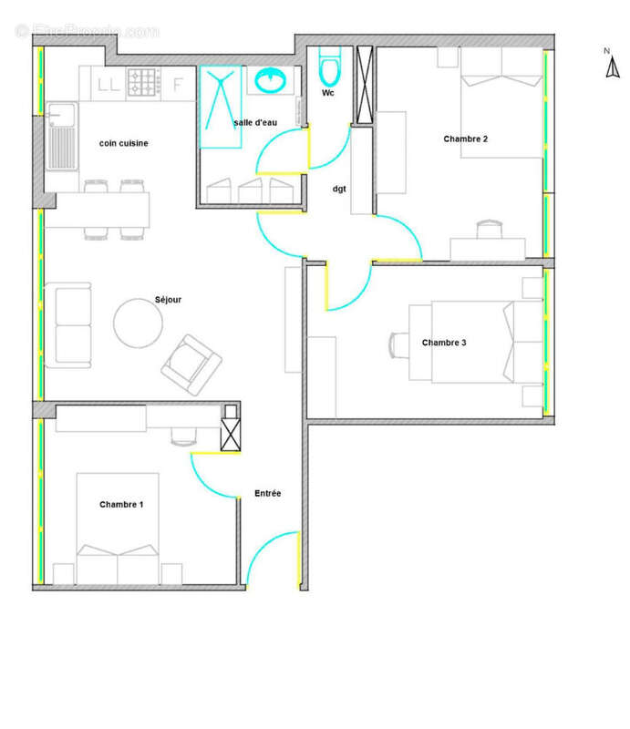
Exclusivité - Rue Racine, à quelques pas du métro A (Gratte-Ciel) Découvrez au 2ème étage d'une copropriété entretenue un appartement T4 traversant Est/Ouest, composé d'une entrée, cuisine aménagée et équipée ouverte sur le séjour. Côté nuit, 3 chambres avec salle d'eau et wc séparés. Une cave complète ce bien. Votre contact : Marvin MIRÒ [Coordonnées masquées] - Vivons ensemble votre Instant Immobilier Estimation sous 48h Copropriété de 393 lots - dont 183 lots habitation.(Pas de procédure en cours).
Voir plus

Référence: 1298
Bien en copropriété. Nombre de lots : 393.
Barème des honoraires
DPE
A
B
C
D
E
F
G
GES
A
B
C
D
E
F
G

Prêt immobilier

Vous souhaitez connaître votre capacité d’emprunt et trouver le meilleur crédit immobilier ?
Réaliser une simulation gratuite

Appartement à VILLEURBANNE
Appartement à VILLEURBANNE
Appartement à VILLEURBANNE
Appartement à VILLEURBANNE
Appartement à VILLEURBANNE
Appartement à VILLEURBANNE
Appartement à VILLEURBANNE
Appartement à VILLEURBANNE
Appartement à VILLEURBANNE
Appartement à VILLEURBANNE
Appartement à VILLEURBANNE
Appartement à VILLEURBANNE
Appartement à VILLEURBANNE
Ce site est protégé par reCAPTCHA la Politique de confidentialité et les Conditions d’utilisation de Google s’appliquent.
Obtenir un prêt immobilier au meilleur taux ?

En poursuivant votre navigation sans modifier vos paramètres, vous acceptez l'utilisation de cookies susceptibles de réaliser des statistiques de visite. Cliquez ici pour plus d'informations