Bénéficiez des services de nos partenaires locaux soigneusement sélectionnés
pour vous accompagner dans votre parcours d'achat immobilier

Exclusivité - boulogne-billancourt - 3 pièces - 70 m²

— Boulogne-Billancourt 92100 —
725 000 €
70 m²
3 pièces
parking

Nos partenaires locaux
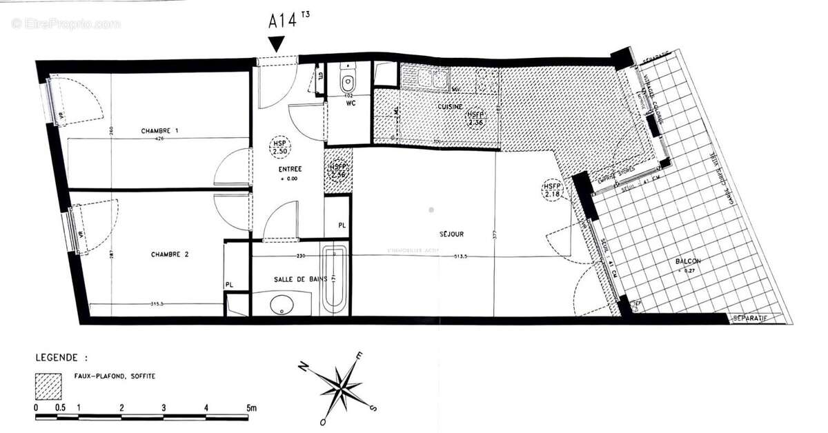
Exclusivité - Boulogne-Billancourt - 3 pièces - 70 m² Dans le quartier très prisé Billancourt - Rives de Seine, découvrez en exclusivité ce très bel appartement 3 pièces de 70 m² situé au premier étage surélevé d'un immeuble récent. L'appartement se compose d'une belle entrée, d'un vaste séjour lumineux de 30 m² et d'une cusine entièrement aménagée et équipée, ouverte et subtilement séparée par une vitre atelier. Une agréable terrasse de 13 m² exposée Est prolonge cet espace de vie et est idéale pour vos moments de détente. Côté nuit, vous découvrirez 2 chambres donnant sur un jardin, une salle de bain et des WC séparés, En excellent état, ce bien ne nécessite aucuns travaux. Une cave et une place de parking en sous-sol complète ce bien. Vous profiterez également de la proximité immédaite de toutes les commodités : commerces, écoles, transports, parcs et services. Un bien rare sur le secteur, alliant calme, confort et praticité ! À visiter sans tarder ! Contactez votre Agent AXO - L'immobilier Actif au [Coordonnées masquées], Elisabeth OUVRARD (EI) Agent Commercial RSAC 948.649.843 Créteil. Plus d'informations sur www.axo.immo (réf. 85002118534). Prix TTC et Honoraires à charge vendeur TTC. Les informations sur les risques auxquels ce bien est exposé sont disponibles sur le site Géorisques : https://www.georisques.gouv.fr/ Bien soumis au statut juridique de la Copropriété. Nb de lots : 60. Charges annuelles de copropriété (Montant moyen annuel quote-part du budget prévisionnel vendeur) : 3 500 €. Pas de procédure en cours.
Voir plus

Référence: 32553
Bien en copropriété. Nombre de lots : 60. Charges de copropriété : 3500 €.
Honoraires à la charge du vendeur.
Barème des honoraires
DPE
A
B
C
D
E
F
G
GES
A
B
C
D
E
F
G

Prêt immobilier

Vous souhaitez connaître votre capacité d’emprunt et trouver le meilleur crédit immobilier ?
Réaliser une simulation gratuite

Appartement à BOULOGNE-BILLANCOURT
Appartement à BOULOGNE-BILLANCOURT
Appartement à BOULOGNE-BILLANCOURT
Appartement à BOULOGNE-BILLANCOURT
Appartement à BOULOGNE-BILLANCOURT
Appartement à BOULOGNE-BILLANCOURT
Appartement à BOULOGNE-BILLANCOURT
Appartement à BOULOGNE-BILLANCOURT
Appartement à BOULOGNE-BILLANCOURT
Appartement à BOULOGNE-BILLANCOURT
Ce site est protégé par reCAPTCHA la Politique de confidentialité et les Conditions d’utilisation de Google s’appliquent.
Obtenir un prêt immobilier au meilleur taux ?

En poursuivant votre navigation sans modifier vos paramètres, vous acceptez l'utilisation de cookies susceptibles de réaliser des statistiques de visite. Cliquez ici pour plus d'informations