Bénéficiez des services de nos partenaires locaux soigneusement sélectionnés
pour vous accompagner dans votre parcours d'achat immobilier

Appartement 76m² à le bouscat

— Le Bouscat 33110 —
499 990 €
76 m²
4 pièces
parkingascenseur

Nos partenaires locaux
VOTRE ATTIQUE AVEC TERRASSE ET PARKING - LE BOUSCAT CENTRE

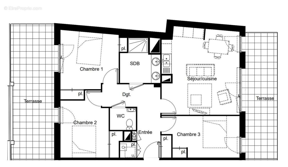
Situé au coeur du très prisé quartier du Bouscat, cet élégant appartement T4 de 76 m² incarne le parfait équilibre entre confort moderne, calme résidentiel et vie de quartier dynamique. Son emplacement exceptionnel à proximité immédiate du centre, des commerces de proximité, des établissements scolaires de qualité et de la ligne de tramway garantit un cadre de vie pratique et recherché.

Niché au troisième et dernier étage d'une résidence de standing, cet appartement surplombe l'environnement urbain, offrant une vue dégagée et un sentiment de hauteur très appréciable. Traversant et baigné de lumière naturelle, il propose une distribution idéale avec trois chambres spacieuses, une salle d'eau contemporaine et un WC indépendant. La pièce de vie chaleureuse s'ouvre vers l'extérieur, créant une belle continuité entre intérieur et terrasses.

Chaque pièce de l'appartement bénéficie d'un accès direct à l'extérieur, totalisant 36 m² de terrasses, véritables extensions à ciel ouvert où il fait bon se détendre ou recevoir. Une rareté dans ce secteur.

Deux places de stationnement viennent compléter ce bien, un atout considérable dans un environnement aussi prisé.

VOTRE ATTIQUE AVEC TERRASSE ET PARKING - LE BOUSCAT CENTRE

Honoraires à la charge du vendeur. Dans une copropriété de 31 lots. Aucune procédure n'est en cours. Non soumis au DPE. Les informations sur les risques auxquels ce bien est exposé sont disponibles sur le site Géorisques : georisques.gouv.fr.
Voir plus

Référence: VA3072-RHPATRI
Bien en copropriété. Nombre de lots : 31.
Honoraires à la charge du vendeur.
Barème des honoraires

Prêt immobilier

Vous souhaitez connaître votre capacité d’emprunt et trouver le meilleur crédit immobilier ?
Réaliser une simulation gratuite

Appartement à LE BOUSCAT
Appartement à LE BOUSCAT
Appartement à LE BOUSCAT
Ce site est protégé par reCAPTCHA la Politique de confidentialité et les Conditions d’utilisation de Google s’appliquent.
Obtenir un prêt immobilier au meilleur taux ?

En poursuivant votre navigation sans modifier vos paramètres, vous acceptez l'utilisation de cookies susceptibles de réaliser des statistiques de visite. Cliquez ici pour plus d'informations