Bénéficiez des services de nos partenaires locaux soigneusement sélectionnés
pour vous accompagner dans votre parcours d'achat immobilier

Maison 92m² à le taillan-medoc

— Le Taillan-Medoc 33320 —
385 000 €
92 m² / 355 m²
4 pièces
parkingjardin

Nos partenaires locaux
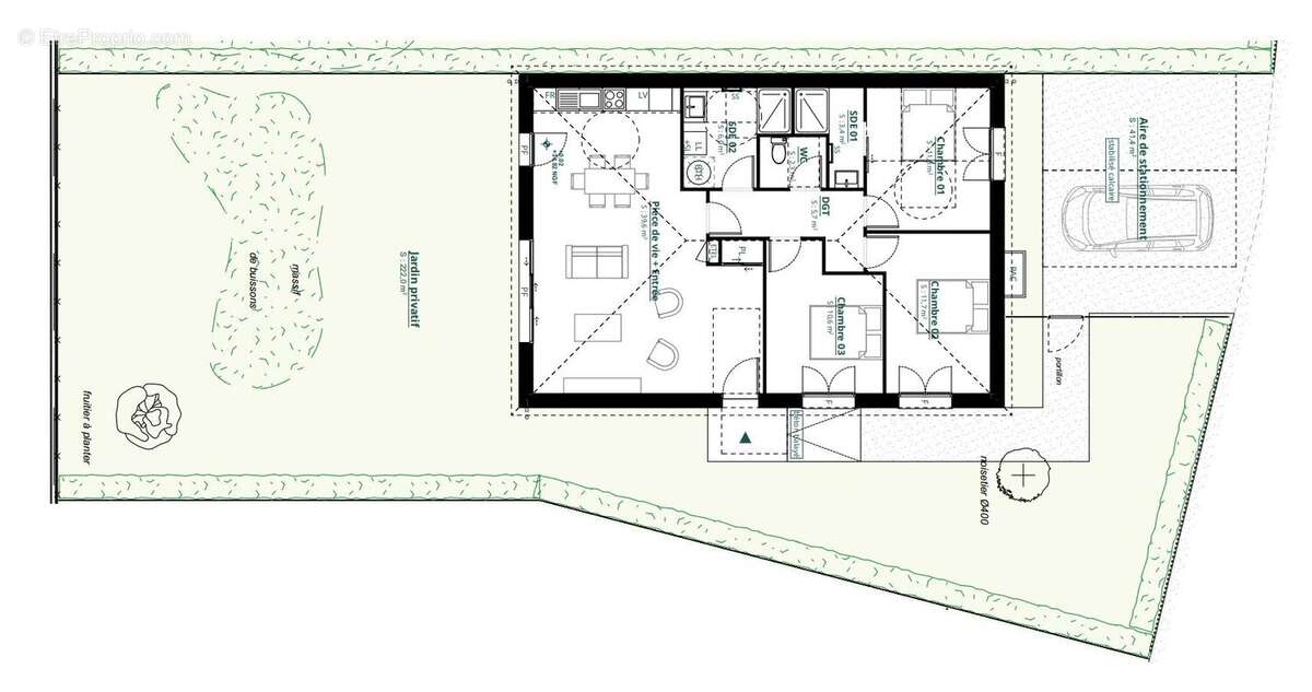
VOTRE MAISON DE PLAIN PIED AU COEUR D'UN ENVIRONNEMENT PAYSAGÉ

Située dans un cadre verdoyant et paisible au Taillan-Médoc, cette maison de plain-pied en pleine propriété offre un cadre de vie idéal, alliant confort, modernité et nature.

D'une surface de 92 m², elle s'ouvre sur une entrée avec placard et WC, menant à une vaste pièce de vie lumineuse, aux volumes généreux, qui se prolonge harmonieusement vers un jardin arboré et paysagé — un véritable havre de paix à l'abri des regards.
Côté nuit, la maison dispose de deux chambres, ainsi qu'une suite parentale avec salle d'eau privative. Une deuxième salle d'eau vient compléter l'espace, garantissant un confort optimal pour toute la famille.

À l'extérieur, deux places de stationnement privatives sont prévues à l'avant de la maison.

Construite selon les normes RE2020, elle bénéficie d'un système de pompe à chaleur et de prestations haut de gamme, vous assurant des performances énergétiques optimales et un confort de vie durable.

VOTRE MAISON DE PLAIN PIED AU COEUR D'UN ENVIRONNEMENT PAYSAGÉ



Honoraires à la charge du vendeur. Non soumis au DPE. Les informations sur les risques auxquels ce bien est exposé sont disponibles sur le site Géorisques : georisques.gouv.fr.

Votre conseiller RH Patrimoine : Gérant associé - Philippe HERVE
Carte T CPI 33[Coordonnées masquées]29 220
Voir plus

Référence: VM761-RHPATRI
Honoraires à la charge du vendeur.
Barème des honoraires

Prêt immobilier

Vous souhaitez connaître votre capacité d’emprunt et trouver le meilleur crédit immobilier ?
Réaliser une simulation gratuite

Maison à LE TAILLAN-MEDOC
Maison à LE TAILLAN-MEDOC
Maison à LE TAILLAN-MEDOC
Ce site est protégé par reCAPTCHA la Politique de confidentialité et les Conditions d’utilisation de Google s’appliquent.
Obtenir un prêt immobilier au meilleur taux ?

En poursuivant votre navigation sans modifier vos paramètres, vous acceptez l'utilisation de cookies susceptibles de réaliser des statistiques de visite. Cliquez ici pour plus d'informations