Bénéficiez des services de nos partenaires locaux soigneusement sélectionnés
pour vous accompagner dans votre parcours d'achat immobilier

Voir tous les partenaires locaux

Vente appartement lille(59000) 399 000ᅵ

— Lille 59000 —
399 000 €
94 m²
4 pièces

Nos partenaires locaux
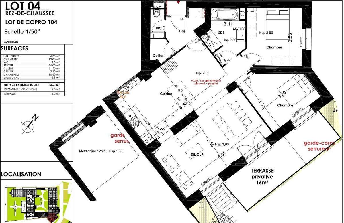
Lille vauban. 4 pieces 93 m² + terrasse résidence de standing rénovée en 2025 visite 7/7 agence ouverte 7/7 lille - située en plein coeur du quartier vauban, cette résidence bénéficie d'une localisation idéale : à seulement 250 mètres du métro cormontaigne, 800 mètres des écoles et facultés de la catho, et à proximité de l'hyper-centre. en rez de chausée avec une terrasse agréable de 16 m², découvrez cet appartement lumineux et traversant entièrement neuf de 4 pieces utiles offrant de belles prestations et d'une superficie utiles de 93,90 m² et de 82.11 m² loi carrez et avec une grande hauteur sous plafond très agréable. il se compose d'un hall d'entrée de 4.30 m², d'un wc séparé de 2 m², d'un large séjour avec parquet en chêne et d'une cuisine aménagée et équipée ouverte de 45.50 m², d'une salle de bains de 6.50 m², d'une chambre de 12 m² et d'une seconde chambre de 10,80 m² et d'une troisième chambre mezzanine de 12 m² utiles. 1 parking privatif inclus dans le prix. le chauffage est assuré par des radiateurs électriques à inertie. une résidence historique entièrement restaurée en 2025 par une rénovation éco-responsable selon les standards haut de gamme alliant harmonieusement luxe, confort et technologies modernes. agréable résidence à taille humaine, chargée d'histoire autour d'un hôtel particulier « le clos de l'arbonnoise » jouxtant un parc exceptionnel de près d'un hectare aux arbres multi- centenaires, cette résidence s'étend sur 4000 m² et bénéficie d'un environnement paisible et verdoyant constituant un véritable havre de paix. des services innovants pour le bien-être des résidents, incluant une conciergerie digitale, la mise à disposition de vélos électriques, des véhicules électriques en partage, des bornes de recharge pour véhicules électriques, ainsi qu'un jardinage participatif, parmi d'autres services etc.
Voir plus

Référence: 86040750
DPE
A
B
C
D
E
F
G
GES
A
B
C
D
E
F
G

Prêt immobilier

Vous souhaitez connaître votre capacité d’emprunt et trouver le meilleur crédit immobilier ?
Réaliser une simulation gratuite

Appartement à LILLE
Appartement à LILLE
Appartement à LILLE
Appartement à LILLE
Appartement à LILLE
Appartement à LILLE
Appartement à LILLE
Appartement à LILLE
Appartement à LILLE
Appartement à LILLE
Ce site est protégé par reCAPTCHA la Politique de confidentialité et les Conditions d’utilisation de Google s’appliquent.
Obtenir un prêt immobilier au meilleur taux ?

En poursuivant votre navigation sans modifier vos paramètres, vous acceptez l'utilisation de cookies susceptibles de réaliser des statistiques de visite. Cliquez ici pour plus d'informations