Bénéficiez des services de nos partenaires locaux soigneusement sélectionnés
pour vous accompagner dans votre parcours d'achat immobilier

Maison 68m² à mainvilliers

— Mainvilliers 28300 —
162 000 €
68 m² / 471 m²
3 pièces
parkingjardin

Nos partenaires locaux
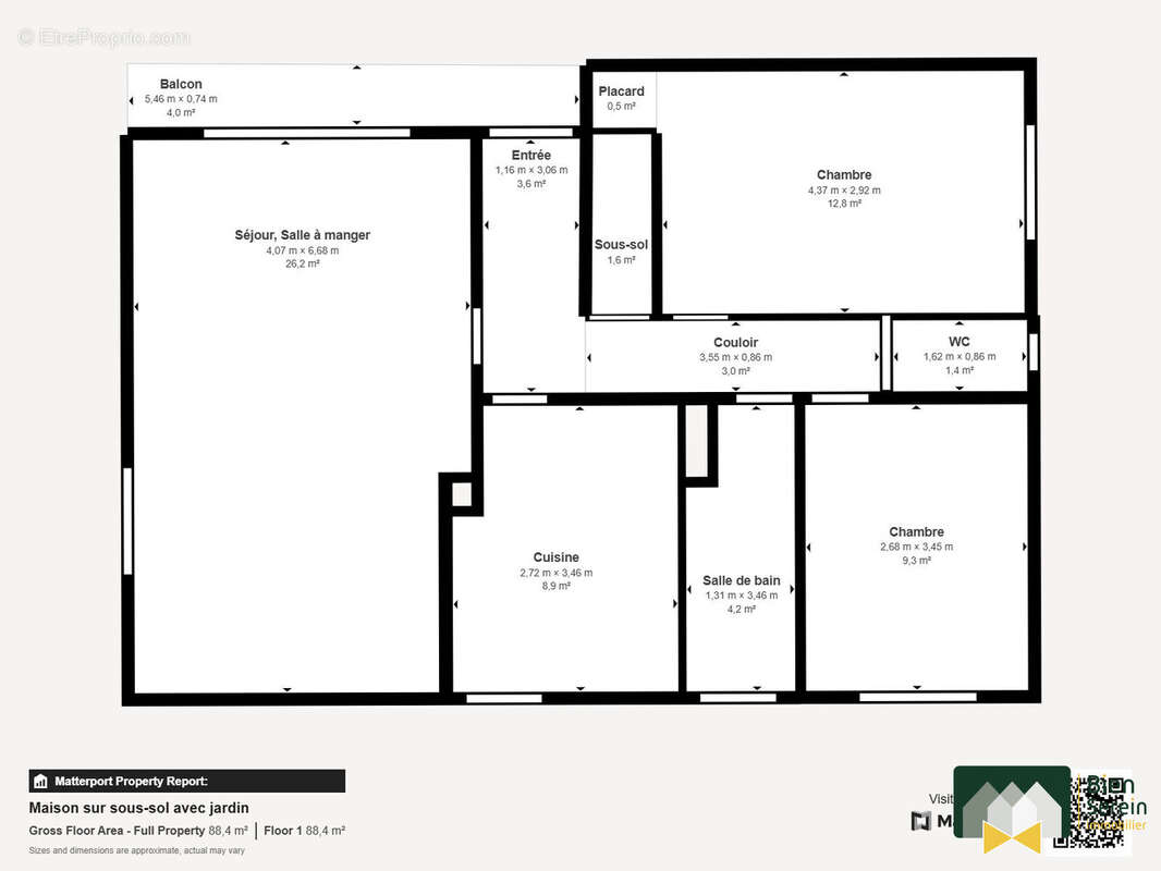
Bienvenue dans votre futur chez-vous?! Nous sommes ravis de vous présenter cette charmante maison individuelle, construite en 1965, avec jardin et sous-sol total.

DÉCOUVREZ L'INTÉRIEUR :
- Entrée
- Vaste séjour lumineux de 26 m²
- Cuisine indépendante aménagée et équipée (four, plaque, hotte)
- Deux chambres agréables donnant sur le jardin
- Salle d'eau
- WC indépendant
- Sous-sol : espace buanderie, espace de stockage/atelier et garage pour 2 véhicules.

ESPACE EXTÉRIEUR :
- Jardin agréable de 385 m²
- Espace repas en plus
- Cabanon de jardin.

CÔTÉ CONFORT :
- Menuiseries PVC double vitrage,
- Chauffage individuel électrique + par pompe à chaleur pour la pièce de vie,
- Maison en bon état général,
- Volets battants en aluminium de 2021
- Assainissement tout à l'égout.

L'EMPLACEMENT :
À seulement 5 minutes à pied : crèches, écoles maternelles et élémentaires, commerces de proximité, médecin, restaurants.
En 5 minutes en voiture : parcs, jardins, infrastructures sportives.
En 10 minutes : hôpitaux, services de santé.
Une maison fonctionnelle, lumineuse et bien entretenue, parfaite pour démarrer un nouveau chapitre dans un cadre paisible et pratique.

N'hésitez pas à contacter votre agent au Noeud Pap' pour plus d'informations ou organiser une visite !

Honoraires à la charge du vendeur. Classe énergie D, Classe climat B Montant moyen estimé des dépenses annuelles d'énergie pour un usage standard, établi à partir des prix de l'énergie de l'année 2021 : entre 1270.00 et 1780.00 €. Les informations sur les risques auxquels ce bien est exposé sont disponibles sur le site Géorisques : georisques.gouv.fr.

Votre conseiller Bien Serein immobilier : Doriane BARBE
Agent commercial (Entreprise individuelle)
RSAC 829314210
Voir plus

Référence: 625-BIENSEREIN28
Honoraires à la charge du vendeur.
Barème des honoraires
DPE
A
B
C
D
E
F
G
GES
A
B
C
D
E
F
G

Prêt immobilier

Vous souhaitez connaître votre capacité d’emprunt et trouver le meilleur crédit immobilier ?
Réaliser une simulation gratuite

Maison à MAINVILLIERS
Maison à MAINVILLIERS
Maison à MAINVILLIERS
Maison à MAINVILLIERS
Maison à MAINVILLIERS
Maison à MAINVILLIERS
Maison à MAINVILLIERS
Maison à MAINVILLIERS
Ce site est protégé par reCAPTCHA la Politique de confidentialité et les Conditions d’utilisation de Google s’appliquent.
Obtenir un prêt immobilier au meilleur taux ?

En poursuivant votre navigation sans modifier vos paramètres, vous acceptez l'utilisation de cookies susceptibles de réaliser des statistiques de visite. Cliquez ici pour plus d'informations