Bénéficiez des services de nos partenaires locaux soigneusement sélectionnés
pour vous accompagner dans votre parcours d'achat immobilier

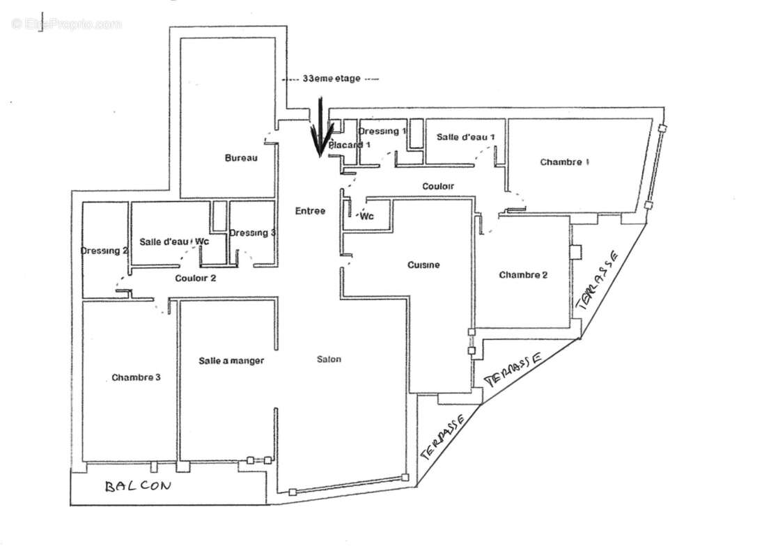
5-6 pièces 150m2 plein ciel avec balcon-terrasses 20m2 piscine - paris 13

— Paris-13e 75013 —
1 360 000 €
150 m²
6 pièces
parkingbalcon/terrasse

Nos partenaires locaux
5-6 pièces 150m2 avec balcon-terrasse 20m2 vue Paris Ouest, Vues Panoramiques sud-ouest depuis toutes les pièces, piscine couverte au dernier étage avec solarium, gardien 24/7, immeuble IGH 1978, 33ème et avant dernier étage, appartement baigné de lumière et de soleil, entrée, double séjour 36m2 sur balcon Ouest 10m2, 3 chambres 14-14-10 m2 avec terrasse, bureau 13m2, belle cuisine dinatoire 17 m2 avec 2 terrasses, 2 sde, 2 wc, 2 dressings, cave, parking, appartement rénové en 2018, nombreux commerces de proximité, au pied des métros 14-07 Maison Blanche,
Voir plus

Référence: 3609
Bien en copropriété. Nombre de lots : 238. Charges de copropriété : 11087 €.
Honoraires à la charge du vendeur.
DPE
A
B
C
D
E
F
G
GES
A
B
C
D
E
F
G

Prêt immobilier

Vous souhaitez connaître votre capacité d’emprunt et trouver le meilleur crédit immobilier ?
Réaliser une simulation gratuite

Appartement à PARIS-13E
Appartement à PARIS-13E
Appartement à PARIS-13E
Appartement à PARIS-13E
Appartement à PARIS-13E
Appartement à PARIS-13E
Appartement à PARIS-13E
Appartement à PARIS-13E
Appartement à PARIS-13E
Appartement à PARIS-13E
Appartement à PARIS-13E
Appartement à PARIS-13E
Appartement à PARIS-13E
Appartement à PARIS-13E
Appartement à PARIS-13E
Ce site est protégé par reCAPTCHA la Politique de confidentialité et les Conditions d’utilisation de Google s’appliquent.
Obtenir un prêt immobilier au meilleur taux ?

En poursuivant votre navigation sans modifier vos paramètres, vous acceptez l'utilisation de cookies susceptibles de réaliser des statistiques de visite. Cliquez ici pour plus d'informations