Bénéficiez des services de nos partenaires locaux soigneusement sélectionnés
pour vous accompagner dans votre parcours d'achat immobilier

Maison 6 chambres, grand terrain avec piscine 2800 m2

— Saintes 17100 —
270 000 €
157 m² / 2 800 m²
8 pièces
parkingbalcon/terrassejardinpiscine

Nos partenaires locaux
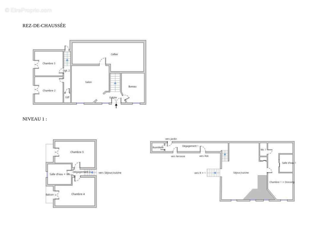
Sur la commune de Chaniers, à 3 km du bourg, 10 km de Saintes et 100 m de la Charente (sans être en zone inondable), je vous présente cette maison en pierre de 157 m2 habitables, composée de 6 chambres et édifiée sur un terrain arboré de 2800 m2 avec une piscine.

Par sa configuration atypique, cette bâtisse est idéale pour une grande famille ou pour des personnes ayant besoin de plusieurs espaces séparés.

En rez-de-chaussée, vous entrez sur un palier desservant une chambre de 10,50 m2, un salon de 19 m2, puis une cave de 29 m2.
Par un accès différent, vous disposez également à ce niveau d’une terrasse abritée et de deux chambres de 11 m2.

À l’étage, vous apprécierez la vaste pièce de vie de 29 m2 avec un beau plafond cathédrale et des poutres et pierres apparentes.
Elle comprend la cuisine ouverte, la salle à manger et un salon cosy avec un poêle à bois.
Elle vous donnera une impression de volume et d’espace particulièrement agréable !

Puis vous profiterez d’un espace parentale composé d’une chambre, d’une salle d’eau, d’un dressing et d’un WC indépendant.
À l’opposé, deux autres chambres de 12 m2 avec une salle d’eau et WC attenants.

Pour plus de praticité, vous disposez également d’une buanderie et d’un local technique.

À l’extérieur, vous profiterez d’une terrasse couverte, d’une terrasse ombragée pour prendre les repas et d’un beau terrain arboré de plus de 2800 m2, doté de nombreux arbres fruitiers, d'un espace potager et d'une piscine enterrée de 6 m x 4 m pour vous rafraîchir !
2600 m2 de terrain sont encore constructibles.

Côté technique : Réfection de la toiture et isolation de la couverture en 2019, huisseries en double vitrage, chauffe-eau thermodynamique installé en 2011, chauffage électrique et poêle à bois, appareillage électrique remis aux normes en 2023.
La maison est raccordé au tout-à-l’égout et à la fibre.
12 panneaux solaires installés sur la toiture rapportent 1090€/an environ.
Travaux à prévoir pour plus de confort : l’installation d’une VMC et le rafraîchissement des tapisseries.

Pour tout renseignement complémentaire et pour organiser une visite, contactez-moi sans attendre : Edith Chauveau - [Coordonnées masquées]

4,65% d'honoraires à la charge de l'acquéreur.

La présente annonce a été éditée sous la responsabilité éditoriale de Mme Chauveau Edith, agent commercial en immobilier, immatriculée au RSAC de Saintes sous le numéro 899330435.

Les informations sur les risques auxquels ce bien est exposé sont disponibles sur le site Géorisques : www.georisques.gouv.fr
Voir plus

Référence: 1333EC
Honoraires d'agence de 4.65% à la charge de l'acquéreur
Barème des honoraires
DPE
A
B
C
D
E
F
G
GES
A
B
C
D
E
F
G

Prêt immobilier

Vous souhaitez connaître votre capacité d’emprunt et trouver le meilleur crédit immobilier ?
Réaliser une simulation gratuite

Maison à SAINTES
Maison à SAINTES
Maison à SAINTES
Maison à SAINTES
Maison à SAINTES
Maison à SAINTES
Maison à SAINTES
Maison à SAINTES
Maison à SAINTES
Maison à SAINTES
Maison à SAINTES
Maison à SAINTES
Maison à SAINTES
Maison à SAINTES
Maison à SAINTES
Maison à SAINTES
Maison à SAINTES
Maison à SAINTES
Maison à SAINTES
Maison à SAINTES
Ce site est protégé par reCAPTCHA la Politique de confidentialité et les Conditions d’utilisation de Google s’appliquent.
Obtenir un prêt immobilier au meilleur taux ?

En poursuivant votre navigation sans modifier vos paramètres, vous acceptez l'utilisation de cookies susceptibles de réaliser des statistiques de visite. Cliquez ici pour plus d'informations