Propriété - maison de maître et dépendances à rénover sur parc clos.

— Orges 52120 —
119 000 €
180 m² / 7 538 m²
10 pièces
parkingjardin

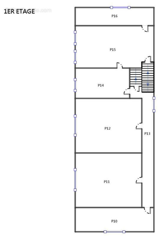
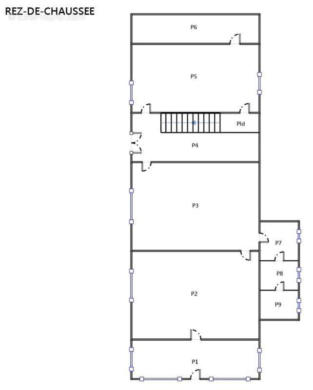
52 ORGES, Propriété / Maison de Maître sur parc d’environ 7 500m2, clos de mur, avec dépendances. Ensemble à rénover entièrement. La demeure (édifiée dans les années 1800 sur des vestiges de construction plus anciennes) est constituée d’une dizaine de pièces principales réparties sur rez-de-chaussée + un étage pour environ 180m2 habitables + grenier. Dépendances dont ancien garage atelier pour env.140m2, anciennes écuries pour env. 100m2 et divers... Les bâtiments sont sains bien que « dans leur jus ». Le site est paisible et clos de murs en pierre, l’intimité est préservée. Il se dégage du lieu une atmosphère chargée de sérénité et d’authenticité. Grand potentiel pour cette propriété de caractère à remettre en vie, située au calme et au cœur de son petit village où il fait bon vivre. Le cadre de vie est l'un des atouts du bourg qui, par sa ceinture verte et ses forêts toutes proches, s'apparente à un 'village dans la verdure'. La ville de CHAUMONT, à 15mn, dispose de toutes les commodités dont une gare SNCF qui relie PARIS en 2h20. L’accès à l’autoroute A5 est à moins de 15minutes de la propriété. Taxe foncière 685 €. Référence mandat exclusif de vente : 110916 - @MNNRICD. Complément d’informations et demande de visite par courriel ou téléphone auprès de l’agence. Ce bien vous est présenté par l'Agence DEMEURES & CARACTÈRE® - Cabinet Retz-Immobilier, spécialiste de l'immobilier de Caractère, Atypique, Rural, Équestre, d'Exception & de Prestige. Contact : Chris DUBOIS - Annonce rédigée et publiée par un Agent Mandataire -
Voir plus

Référence: 219201
Honoraires à la charge du vendeur.
Barème des honoraires

Prêt immobilier

Vous souhaitez connaître votre capacité d’emprunt et trouver le meilleur crédit immobilier ?
Réaliser une simulation gratuite

Maison à ORGES
Maison à ORGES
Maison à ORGES
Maison à ORGES
Maison à ORGES
Maison à ORGES
Maison à ORGES
Maison à ORGES
Maison à ORGES
Maison à ORGES
Maison à ORGES
Maison à ORGES
Maison à ORGES
Maison à ORGES
Maison à ORGES
Maison à ORGES
Maison à ORGES
Maison à ORGES
Maison à ORGES
Maison à ORGES
Maison à ORGES
Maison à ORGES
Maison à ORGES
Ce site est protégé par reCAPTCHA la Politique de confidentialité et les Conditions d’utilisation de Google s’appliquent.
Obtenir un prêt immobilier au meilleur taux ?

En poursuivant votre navigation sans modifier vos paramètres, vous acceptez l'utilisation de cookies susceptibles de réaliser des statistiques de visite. Cliquez ici pour plus d'informations