Bénéficiez des services de nos partenaires locaux soigneusement sélectionnés
pour vous accompagner dans votre parcours d'achat immobilier

Appartement 193m² à biarritz

— Biarritz 64200 —
1 260 000 €
194 m²
9 pièces
parking

Nos partenaires locaux
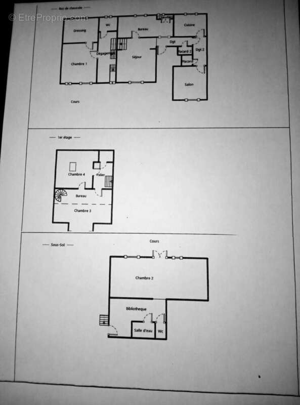
64200 Biarritz - Avenue de la Marne, proche du Centre Ville et du quartier St Charles Un spacieux appartement T5 et plus à rénover
Imaginez-vous dans un appartement lumineux et spacieux, où chaque pièce respire le potentiel et l'opportunité de créer un espace de vie unique et personnalisé. Cet appartement T5 et plus, d'une superficie habitable de 193,69 m² et d'une surface au sol de 202 m², est prêt à accueillir vos rêves et à devenir votre sanctuaire urbain.
Le charme de cet appartement réside dans son état intérieur à rénover, qui vous permet de laisser libre cours à votre créativité. Imaginez les possibilités : une cuisine indépendante entièrement réaménagée, des salles de bain modernes et des chambres douillettes. Le chauffage individuel assure un confort thermique personnalisé,
Situé dans un immeuble dont les parties communes sont en bon état, cet appartement bénéficie d'un emplacement privilégié. Vous pourrez profiter de la proximité immédiate de plusieurs commodités essentielles. À seulement 5 minutes à pied, vous trouverez des restaurants, des commerces d'alimentation générale et des médecins généralistes. Pour les familles, plusieurs crèches, écoles maternelles, élémentaires et un collège sont accessibles en 10 minutes à pied. Un parc et jardin se trouve également à 10 minutes à pied, offrant un espace vert pour des moments de détente et de loisirs. De plus, un arrêt de bus se trouve à 5 minutes à pied, facilitant vos déplacements quotidiens. Enfin, cet appartement est équipé de la fibre, garantissant une connexion internet rapide et fiable.
Ne manquez pas cette opportunité unique de transformer cet appartement en un véritable bijou immobilier. Contactez nous dès aujourd'hui pour plus d'information et laissez-vous séduire par le potentiel exceptionnel de ce bien. Idéal également pour des bureaux, une cour de +- 35 M² à l'arrière.

Honoraires inclus de 5% TTC à la charge de l'acquéreur. Prix hors honoraires 1 200 000 €. Dans une copropriété de 4 lots. Quote-part moyenne du budget prévisionnel 700 €/an. Aucune procédure n'est en cours. Classe énergie D, Classe climat D Montant estimé des dépenses annuelles d'énergie pour un usage standard : entre 3630.00 € et 4960.00 € sur les années 2021, 2022 et 2023 (abonnements compris). Les informations sur les risques auxquels ce bien est exposé sont disponibles sur le site Géorisques : georisques.gouv.fr.

Carte pro. 33[Coordonnées masquées]11 111
AC 33[Coordonnées masquées]01 956
Voir plus

Référence: VA16907-IMMOFORFAIT
Bien en copropriété. Nombre de lots : 4. Charges de copropriété : 700 €.
Honoraires d'agence de 5% à la charge de l'acquéreur
Barème des honoraires
DPE
A
B
C
D
E
F
G
GES
A
B
C
D
E
F
G

Prêt immobilier

Vous souhaitez connaître votre capacité d’emprunt et trouver le meilleur crédit immobilier ?
Réaliser une simulation gratuite

Appartement à BIARRITZ
Appartement à BIARRITZ
Appartement à BIARRITZ
Appartement à BIARRITZ
Appartement à BIARRITZ
Appartement à BIARRITZ
Appartement à BIARRITZ
Appartement à BIARRITZ
Appartement à BIARRITZ
Ce site est protégé par reCAPTCHA la Politique de confidentialité et les Conditions d’utilisation de Google s’appliquent.
Obtenir un prêt immobilier au meilleur taux ?

En poursuivant votre navigation sans modifier vos paramètres, vous acceptez l'utilisation de cookies susceptibles de réaliser des statistiques de visite. Cliquez ici pour plus d'informations