Bénéficiez des services de nos partenaires locaux soigneusement sélectionnés
pour vous accompagner dans votre parcours d'achat immobilier

Appartement 69m² à avon

— Avon 77210 —
208 000 €
69 m²
5 pièces
parking

Nos partenaires locaux
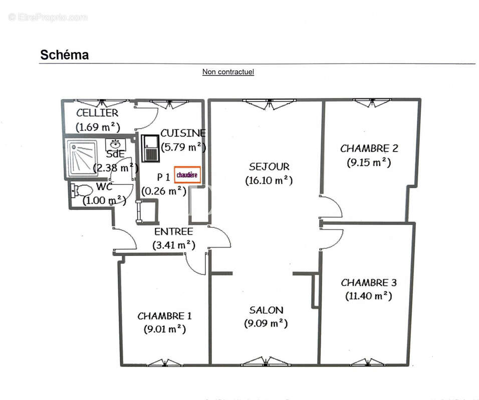
AVON GARE - 39 rue Carnot- Appartement de type F4/5 de 69.28 m² avec un box fermé extérieur et une cave.
.
Le DPE sera en D car les travaux d'isolation extérieure de la copro, volets roulants et VMC refaite ont été votés et payés en 2024.
.
Visite virtuelle 3D disponible sur ce site internet et sur www.dlvimmo.fr
.
Cet appartement lumineux de 69 m² au quatrième et dernier étage (sans ascenseur) se compose d'une entrée avec placard, d'une pièce à vivre de 26 m² avec une vue panoramique sur Avon, d'une cuisine aménagée et équipée avec un cellier, de trois chambres de 9m²- 9.15m² et 11.40m², d'une salle d'eau et d'un wc séparé.
.
Un box de 13m² et une cave complètent ce bien. Double vitrage. Chauffage gaz individuel.
.
Les charges sont de 113 € par mois soit 1360 € par an comprenant l'eau froide, l'entretien des espaces verts, le ménage des parties communes et les frais de syndic.
.



Honoraires à la charge du vendeur. Dans une copropriété de 57 lots. Quote-part moyenne du budget prévisionnel 1 360 €/an. Aucune procédure n'est en cours. Classe énergie D, Classe climat B Montant estimé des dépenses annuelles d'énergie pour un usage standard : entre 1.00 € et 1.00 € sur les années 2021, 2022 et 2023 (abonnements compris). Les informations sur les risques auxquels ce bien est exposé sont disponibles sur le site Géorisques : georisques.gouv.fr.
Voir plus

Référence: VA2259-DLVIMMO
Bien en copropriété. Nombre de lots : 57. Charges de copropriété : 1360 €.
Honoraires à la charge du vendeur.
Barème des honoraires
DPE
A
B
C
D
E
F
G
GES
A
B
C
D
E
F
G

Prêt immobilier

Vous souhaitez connaître votre capacité d’emprunt et trouver le meilleur crédit immobilier ?
Réaliser une simulation gratuite

Appartement à AVON
Appartement à AVON
Appartement à AVON
Appartement à AVON
Appartement à AVON
Appartement à AVON
Appartement à AVON
Appartement à AVON
Appartement à AVON
Ce site est protégé par reCAPTCHA la Politique de confidentialité et les Conditions d’utilisation de Google s’appliquent.
Obtenir un prêt immobilier au meilleur taux ?

En poursuivant votre navigation sans modifier vos paramètres, vous acceptez l'utilisation de cookies susceptibles de réaliser des statistiques de visite. Cliquez ici pour plus d'informations