Pas de commerce à La Plaine-Sur-Mer pour le moment. Découvrez dès maintenant les commerces dans le département Loire-Atlantique.

Immeuble de rapport 293m2

— Auchel 62260 —
95 000 €
293 m²

TRES BELLE BAISSE DE PRIX POUR CET IMMEUBLE DE 2 ETAGES A FORTE RENTABILITE LOCATIVE !!!
95.OOO Frais Agence INCLUS

EXCLUSIVEMENT CHEZ Optimhome - IDEAL INVESTISSEURS

RENSEIGNEMENTS ET VISITES UNIQUEMENT PAR TELEPHONE SVP au 06.36.O2.70.36

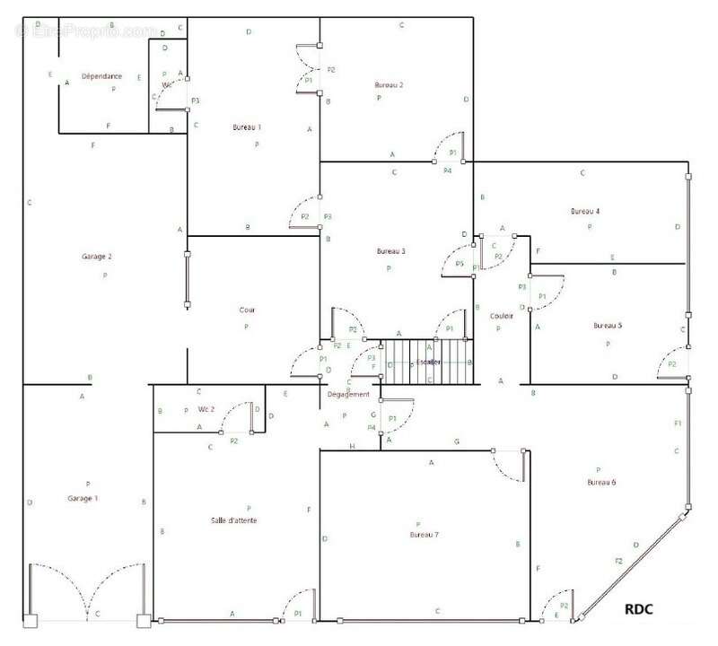
IMMEUBLE DE 293 M2, composé comme suit :

RDC : ancien cabinet médical désormais libre d'occupation, comprenant 5 cellules + 1 salle de sport (ou 6eme cellule) allant de 9 à 20m2 / 1 salle d'attente de 15m2 avec WC / 1 salle de repos de 11m2 / 1 deuxième WC / 1 Cave saine d'environ 20m2 pour votre rangement

Place PMR devant – Garage 2 voitures

3 portes donc 3 accès possibles et indépendants pour les occupants

LES ETAGES seront, quant à eux, à REFAIRE ENTIEREMENT

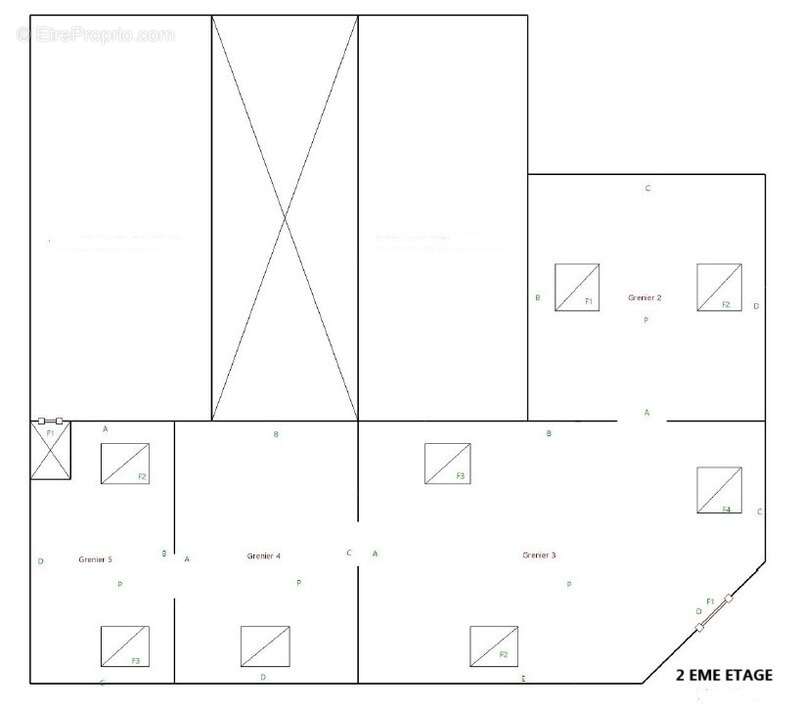
-Le PREMIER, d'environ 150m2, dispose de 10 pièces allant de 6 à 20m2, pouvant permettre la création d'un lot supplémentaire avec le garage pour la place de parking obligatoire
-Le SECOND, vous offrira également un potentiel d'aménagement non négligeable d'une surface d'environ 80m2 pour un grand appart duplex par exemple
(voir plans)

POSSIBILITE EGALEMENT D'Y FAIRE DES BUREAUX - UN GITE - COMMERCE etc...

Enfin, le GRAND GARAGE 2 voitures, situé sur le coté de l'immeuble, pourra, en plus du stationnement, permettre la création d'une autre entrée avec la pose d'un escalier pour dissocier les paliers (l'escalier actuel étant au centre du bâtiment : voir plan)

Cet immeuble dispose également d'une petite COUR centrale (patio) avec toit verrière, d'environ 12 m2

PREVOIR ENVELOPPE BUDGETAIRE SUPPLEMENTAIRE POUR CHANGEMENT DES HUISSERIES + REFECTION COMPLETE DES ETAGES

*CHAUFFAGE GAZ DE VILLE
*CHAUDIERE VIESSMANN de 2022
*ELEC RDC OK
*TOITURE OK
*Relié au TAE
*SECTEUR Fibré
*TAXE FONCIERE : 2.372 €

RENTA LOCATIVE DE 11 à 13% en l'exploitant en l'état OU en rehabilitant les étages.
Une opportunité à saisir !

#immeublederapport #investissementimmobilier #investissementlocatif

Les honoraires sont à la charge du vendeur.
Les informations sur les risques auxquels ce bien est exposé sont disponibles sur le site Géorisques : www. georisques. gouv. fr.

Contactez Élodie PRUVOST Entrepreneur Individuel, Agent commercial OptimHome (RSAC N°902 852 458 Greffe de ARRAS) [Coordonnées masquées] (réf. 574179 )
Voir plus

Référence: 830037915704
Honoraires à la charge du vendeur.
DPE
A
B
C
D
E
F
G
GES
A
B
C
D
E
F
G

Prêt immobilier

Vous souhaitez connaître votre capacité d’emprunt et trouver le meilleur crédit immobilier ?
Réaliser une simulation gratuite

Appartement à AUCHEL
Appartement à AUCHEL
Appartement à AUCHEL
Appartement à AUCHEL
Appartement à AUCHEL
Appartement à AUCHEL
Appartement à AUCHEL
Appartement à AUCHEL
Appartement à AUCHEL
Appartement à AUCHEL
Appartement à AUCHEL
Appartement à AUCHEL
Appartement à AUCHEL
Appartement à AUCHEL
Appartement à AUCHEL
Appartement à AUCHEL
Appartement à AUCHEL
Appartement à AUCHEL
Appartement à AUCHEL
Appartement à AUCHEL
Ce site est protégé par reCAPTCHA la Politique de confidentialité et les Conditions d’utilisation de Google s’appliquent.
Obtenir un prêt immobilier au meilleur taux ?

En poursuivant votre navigation sans modifier vos paramètres, vous acceptez l'utilisation de cookies susceptibles de réaliser des statistiques de visite. Cliquez ici pour plus d'informations