Bénéficiez des services de nos partenaires locaux soigneusement sélectionnés
pour vous accompagner dans votre parcours d'achat immobilier

Hem quartier des trois baudets - maison individuelle 5 chambres dans un cadre verdoyant

— Hem 59510 —
495 000 €
179 m² / 1 159 m²
8 pièces
parkingbalcon/terrassejardin

Nos partenaires locaux
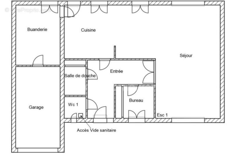
Fabrice PAYNE vous propose en exclusivité cette grande maison individuelle de 1974 bâtie sur une parcelle close de 1160 m2 et entourée de verdure, sans vis-à-vis sur le secteur des Trois Baudets.
La maison développe plus de 179 m2 habitables et 220k m2 utiles.
Au RDC, une grande entrée distribue un 1er WC avec lave-mains, le lumineux salon séjour avec cuisine ouverte pour 60 m2, un bureau et une salle de douche. Une arrière cuisine de 15 m2 et un garage de 20 m2 complètent le tout.
A l'étage, se trouvent 5 chambres parquetées (de 12 m2 à 24 m2 au sol, dont 3 non mansardées), une salle de bains (douche, baignoire, vasque), un 2ième WC et un petit débarras (ou dressing).
Le jardin arboré dispose d'une grande terrasse en bois composite et d'un abri de rangement.
Chauffage gaz avec chaudière très récente, adoucisseur, double vitrage bois avec volets roulants ou battants, portail, parking 3 voitures avec borne de charge électrique. Cheminée possible.
Le tout dans une rue calme et arborée, à proximité du bus et des écoles.
Très bon état technique.
En bref, une très belle opportunité pour habiter sur Hem à un prix raisonnable ! Les honoraires sont à la charge du vendeur.
Les informations sur les risques auxquels ce bien est exposé sont disponibles sur le site Géorisques : www. georisques. gouv. fr.

Contactez Fabrice PAYNE Entrepreneur Individuel, Agent commercial OptimHome (RSAC N°507 529 212 Greffe de LILLE) [Coordonnées masquées] (réf. 587085 )
Voir plus

Référence: 830037761579
Honoraires à la charge du vendeur.
DPE
A
B
C
D
E
F
G
GES
A
B
C
D
E
F
G

Prêt immobilier

Vous souhaitez connaître votre capacité d’emprunt et trouver le meilleur crédit immobilier ?
Réaliser une simulation gratuite

Maison à HEM
Maison à HEM
Maison à HEM
Maison à HEM
Maison à HEM
Maison à HEM
Maison à HEM
Maison à HEM
Maison à HEM
Maison à HEM
Maison à HEM
Maison à HEM
Maison à HEM
Maison à HEM
Maison à HEM
Maison à HEM
Maison à HEM
Maison à HEM
Maison à HEM
Ce site est protégé par reCAPTCHA la Politique de confidentialité et les Conditions d’utilisation de Google s’appliquent.
Obtenir un prêt immobilier au meilleur taux ?

En poursuivant votre navigation sans modifier vos paramètres, vous acceptez l'utilisation de cookies susceptibles de réaliser des statistiques de visite. Cliquez ici pour plus d'informations