Bénéficiez des services de nos partenaires locaux soigneusement sélectionnés
pour vous accompagner dans votre parcours d'achat immobilier

Vente maison 5 pièces de 210m² - 38270 revel-tourdan

— Revel-Tourdan 38270 —
460 000 €
210 m² / 1 004 m²
5 pièces
parkingjardinpiscine

Nos partenaires locaux
Casavo vous propose à la vente Bâtisse en pierre de 210 m² avec
un terrain attenant d'environ 1 000 m² comprenant une très grande cour et un jardin arboré, une piscine et une cuisine d'été et une terrasse en partie couverte ( petit plus : terrain agricole en supplément, en attente d'accord définitif )
GROS POTENTIEL D' AGRANDISSEMENT, BON DIAGNOSTIC ENERGETIQUE
Idéal grande famille, ou projet de gite, ou pour un investissement.
Sur le trajet du chemin de Compostelle.

Projection IA les 7 premières photos

Une visite virtuelle est possible sur l'annonce.

Caractéristiques :
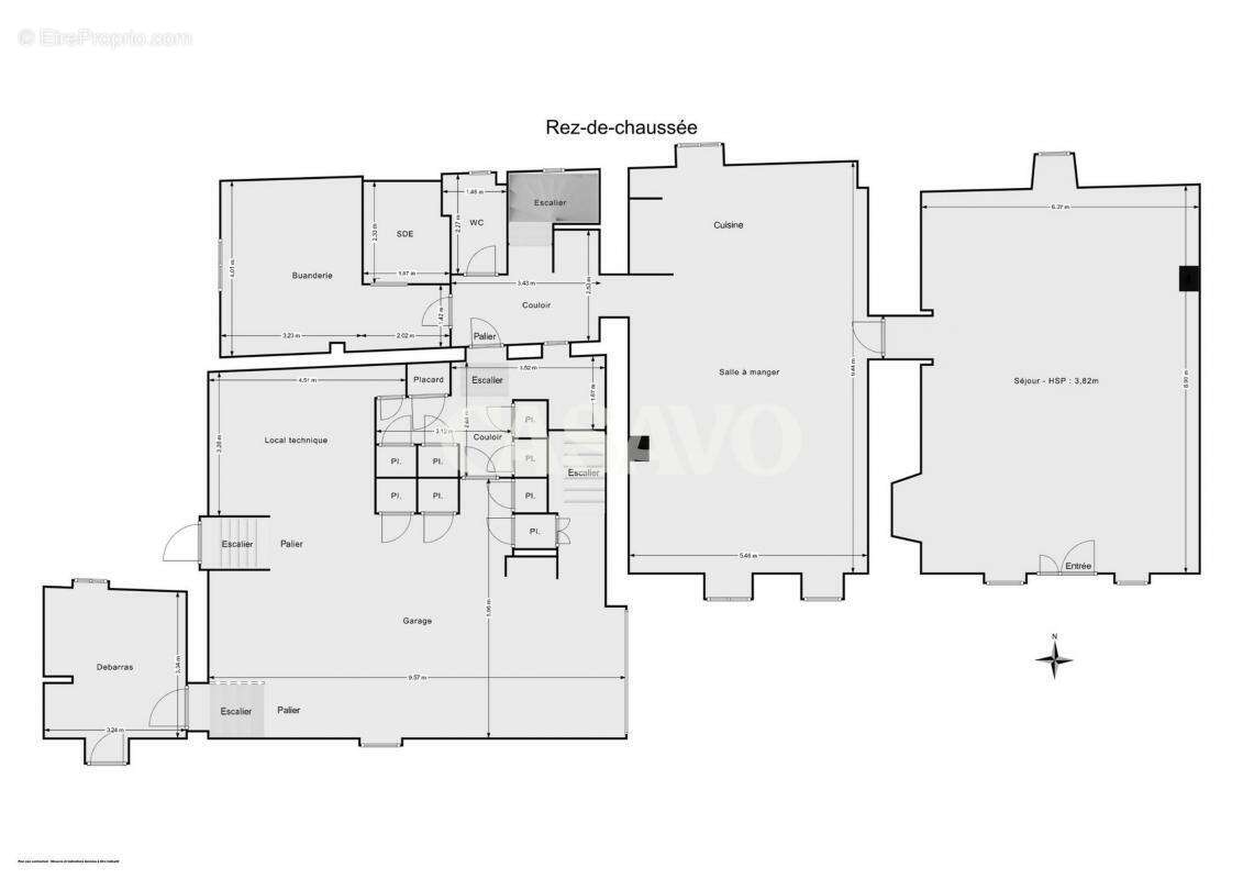
Surface habitable : 210 m²
Potentiel : Ancienne grange avec combles aménageables (~100 m² supplémentaire), plans et visite virtuelle sur sur demande.
Devis sur demande réalisé par un maitre d'oeuvre pour l'agrandissement.

Descriptif du bien:
Rez de chaussée :
2 Grandes pièces voutée de 57 m2 , une à rénover et une déjà aménagée et chauffée (salle de réception, séjour ou autres usages au choix)
Cuisine ouverte sur grande pièce de vie
WC Indépendant
Salle d'eau
Buanderie
Couloir avec de nombreux rangements
Grande mezzanine
Garage avec portail motorisée pouvant être transformée en pièce de vie
Local technique
Grandes Caves
Grande cuisine d'été équipée

ETAGE:
Wc indépendant
Salle de bain avec baignoire ( 12 m2)
4 chambres avec placards muraux ( 12, 13, 16, 14 m2)
Couloir avec rangements
Possibilité d'agrandir l'étage

Les prestations techniques :
•Toiture rénovée en 2008
•Façade rénovée en 2012
•Chauffage au bois et au fioul
•Chauffe-eau solaire installé en 2005
•DPE : C, 21/05/2024

Environnement : 30 min de Vienne – 1h de Lyon – accès rapide A7
Située près du chemin de Compostelle
Centre village historique

Déplacement :
Bus ( en cours de vérification)
Gare ( en cours de vérification)

Enseignement :
Ecole primaire : 8 min à pieds
Collège : 13 min en voiture, 7 km ( Beaurepaire)
Lycée : Roussillon et Saint Jean de Bournay
Arrêt de bus : en cours de vérification

Commerces & supermarchés
Super U Revel-Tourdan, 4 chemin de l'Étang Girard — supermarché.
Intermarché Revel Tourdan, route départementale 538.
Bricomarché, 67 chemin de l'Étang Girard — bricolage/outillage.
Boulangerie / Alimentation / Tabac / Presse “Le Roy Yann

Restauration
Auberge “L'Escapade”, 91 rue Basse — restaurant, soirées à thème, terrasse, accueil pèlerins.

Services & artisans
Spad Moto Pièces — achat/vente de pièces détachées motos.
PRFS production / Sibert François — photographe / reportage, événementiel.

Marchés & producteurs locaux
Le P'tit marché — tous les dimanches matin, place des Terreaux. Vente de fromages bio, fruits & légumes, plats préparés, etc.
Producteurs locaux référencés à Revel-Tourdan, possibilité d'acheter directement à la ferme ou sur place.

Autres services utiles
La Poste – agence communale / mairie — bureau de poste.
Relais Pickup DEKRA — point de retrait colis

Les petits + :
Charme de l'ancien (pierre, poutres, cachet)
Village historique, près du chemin de Compostelle
Volumes généreux et fort potentiel
Environnement calme et agréable
Espaces extérieurs soignés
Gros potentiels aménagement ( granges et combles)

Estimation des coûts annuels : entre 2 020 € et 2 770 € par an
Prix moyens des énergies indexés au 1er janvier 2021
Taxe foncière : 234 E par an

Géorisques : georisques.gouv.fr

Visites & organisation
Pour vous offrir une expérience simple et personnalisée, les visites peuvent être planifiées directement selon vos disponibilités via le site professionnel de l'agence, connecté à mon agenda en ligne.
Avec Casavo, tout est conçu pour vous permettre de réserver un créneau 24h/24 et ainsi organiser votre emploi du temps en toute sérénité.
Je prendrai bien sûr contact avec vous en amont afin d'échanger et de confirmer ensemble la date et l'heure de la visite. Amandine Lefebvre

Exclusivité Casavo (Inter Agences Novéa)
Ce bien est commercialisé par Casavo.

Intéressé par ce bien ? Plus d'informations sur le site de Casavo.
Voir plus

Référence: 40070
Honoraires à la charge du vendeur.
DPE
A
B
C
D
E
F
G
GES
A
B
C
D
E
F
G

Prêt immobilier

Vous souhaitez connaître votre capacité d’emprunt et trouver le meilleur crédit immobilier ?
Réaliser une simulation gratuite

Maison à REVEL-TOURDAN
Maison à REVEL-TOURDAN
Maison à REVEL-TOURDAN
Maison à REVEL-TOURDAN
Maison à REVEL-TOURDAN
Maison à REVEL-TOURDAN
Maison à REVEL-TOURDAN
Maison à REVEL-TOURDAN
Maison à REVEL-TOURDAN
Maison à REVEL-TOURDAN
Maison à REVEL-TOURDAN
Maison à REVEL-TOURDAN
Maison à REVEL-TOURDAN
Maison à REVEL-TOURDAN
Maison à REVEL-TOURDAN
Maison à REVEL-TOURDAN
Maison à REVEL-TOURDAN
Maison à REVEL-TOURDAN
Maison à REVEL-TOURDAN
Maison à REVEL-TOURDAN
Maison à REVEL-TOURDAN
Maison à REVEL-TOURDAN
Maison à REVEL-TOURDAN
Maison à REVEL-TOURDAN
Maison à REVEL-TOURDAN
Maison à REVEL-TOURDAN
Maison à REVEL-TOURDAN
Maison à REVEL-TOURDAN
Maison à REVEL-TOURDAN
Maison à REVEL-TOURDAN
Maison à REVEL-TOURDAN
Maison à REVEL-TOURDAN
Maison à REVEL-TOURDAN
Maison à REVEL-TOURDAN
Maison à REVEL-TOURDAN
Maison à REVEL-TOURDAN
Maison à REVEL-TOURDAN
Maison à REVEL-TOURDAN
Maison à REVEL-TOURDAN
Maison à REVEL-TOURDAN
Maison à REVEL-TOURDAN
Maison à REVEL-TOURDAN
Maison à REVEL-TOURDAN
Maison à REVEL-TOURDAN
Maison à REVEL-TOURDAN
Maison à REVEL-TOURDAN
Maison à REVEL-TOURDAN
Ce site est protégé par reCAPTCHA la Politique de confidentialité et les Conditions d’utilisation de Google s’appliquent.
Obtenir un prêt immobilier au meilleur taux ?

En poursuivant votre navigation sans modifier vos paramètres, vous acceptez l'utilisation de cookies susceptibles de réaliser des statistiques de visite. Cliquez ici pour plus d'informations