Bénéficiez des services de nos partenaires locaux soigneusement sélectionnés
pour vous accompagner dans votre parcours d'achat immobilier

Bureaux 119m² à château-gaillard

— Chateau-Gaillard 01500 —
269 850 €
119 m²

Nos partenaires locaux
À vendre - Bureaux type coworking : Espace de travail moderne et flexible, pour un usage professionnel ou un investissement clé en main !
Château Gaillard ? Zone artisanale et commerciale, offrant une excellente visibilité et un emplacement stratégique pour attirer une clientèle professionnelle.
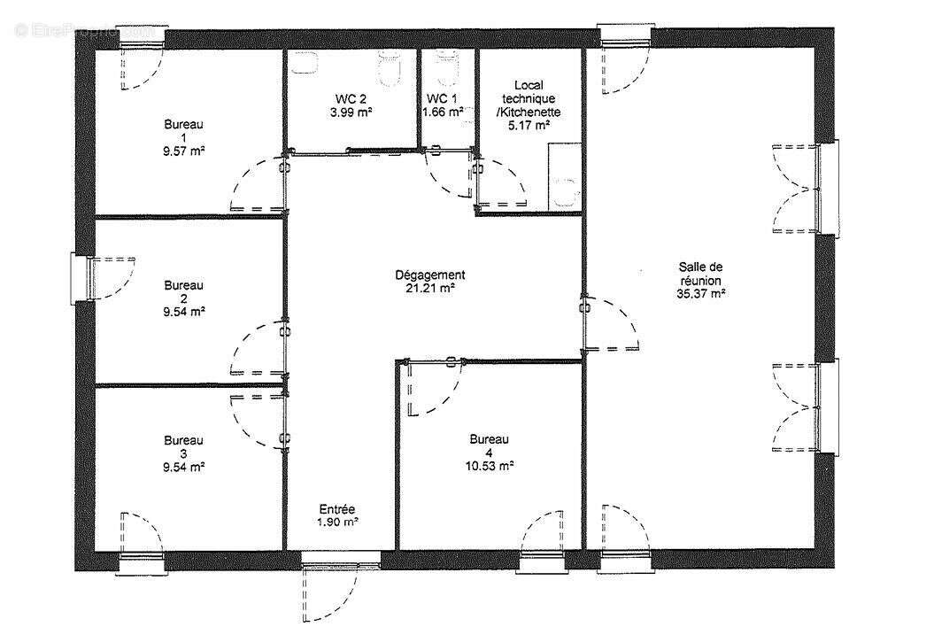
Ce bâtiment professionnel récent (2017) de 110 m² de plain-pied implanté sur un terrain de 700 m², est aujourd'hui un centre d'affaires/coworking idéal pour installer votre propre entreprise ou pour conserver l'activité locative actuelle et avoir des revenus flexibles et réguliers.

Les locaux, modifiables et modulables se composent actuellement de :
? Un hall d'entrée / espace accueil
? 3 bureaux individuels pour travailler ou recevoir vos clients
? Un petit salon chaleureux idéal pour professions libérales recevant de la patientèle
? Une salle de réunion fonctionnelle
Espaces adaptés à l'open space ou au coworking
Très bonne rentabilité ! l'activité peut être reprise immédiatement et très simplement : locations des bureaux à la demande et domiciliation d'entreprise. Clientèle composée de professionnels et de professions libérales.
Fort potentiel de développement, idéal investisseur grâce à une gestion très autonome nécessitant peu de temps à y consacrer.
Parfait pour un professionnel souhaitant exploiter un espace de travail partagé, un cabinet pluridisciplinaire ou une activité en développement.
Pour plus d'informations ou pour organiser une visite, contactez Marie Oberlé, agent commerciale RSCA 802463380 Bourg en Bresse.
Prix Honoraires inclus charges acquéreur.
Les informations sur les risques auxquels ce bien est exposé sont disponibles sur le site Géorisques : www.georisques.gouv.fr
L'Etat des Risques et Pollution peut être consulté sur https://www.georisques.gouv.fr
Voir plus

Référence: 4753
DPE
A
B
C
D
E
F
G
GES
A
B
C
D
E
F
G

Prêt immobilier

Vous souhaitez connaître votre capacité d’emprunt et trouver le meilleur crédit immobilier ?
Réaliser une simulation gratuite

Autre à CHATEAU-GAILLARD
Autre à CHATEAU-GAILLARD
Autre à CHATEAU-GAILLARD
Autre à CHATEAU-GAILLARD
Autre à CHATEAU-GAILLARD
Autre à CHATEAU-GAILLARD
Autre à CHATEAU-GAILLARD
Autre à CHATEAU-GAILLARD
Autre à CHATEAU-GAILLARD
Autre à CHATEAU-GAILLARD
Ce site est protégé par reCAPTCHA la Politique de confidentialité et les Conditions d’utilisation de Google s’appliquent.
Obtenir un prêt immobilier au meilleur taux ?

En poursuivant votre navigation sans modifier vos paramètres, vous acceptez l'utilisation de cookies susceptibles de réaliser des statistiques de visite. Cliquez ici pour plus d'informations