Maison 115m² à nampont

— Nampont 80120 —
288 000 €
115 m² / 3 240 m²
4 pièces
parkingbalcon/terrassejardin

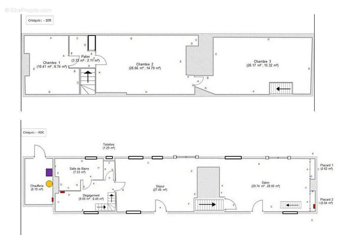
SOUS COMPROMISL'Agence des Remparts vous propose à la vente cette charmante longère répartie sur 2 niveaux pour une surface habitable de 115 m² environ, parfaitement restaurée.Elle se compose au rdc : Une entrée sur cuisine récente avec îlot central de 27 m² - Une salle à manger de 30 m² lumineuse avec accès direct à la terrasse - Une salle de bains avec douche à l'italienne, vasque, baignoire - Une pièce de dressing ou autre - Un WC indépendant.À l'étage : Un palier chambre / salle de jeux de 16 m² - Une chambre de 14 m² - Une chambre / bureau de 6.50 m².Une terrasse bois sur l'arrière de 45 m² (exposée Sud) et une autre en façade avant sur dalle béton.Une cave voutée - Une salle de chaufferie / buanderie.Toiture en parfait état, totalement réhabilitée en 2021 - Type de chauffage : chauffage central au gaz (chaudière de 2015) avec citerne enterrée + radiateurs électriques à inertie - Cumulus électrique pour la production d'eau chaude - Menuiseries en alu double vitrage (avec volets roulants motorisés pour les 2 baies vitrées) - VMC - Assainissement autonome.Vous bénéficiez également d'une dépendance de 105 m², comprenant deux garages (de 38 et 28 m², dont le plus grand avec dalle béton et porte sectionnelle motorisée) et un espace atelier de 39 m² (pouvant être aménagé), offrant diverses possibilités (gîte etc. )Une cour et un parking spacieux - Portail motorisé.À visiter sans attendre avec L'Agence des Remparts, contactez Aurélien Piquet, votre agent immobilier, disponible au O6 64 47 59 16, joignable 7 jours sur 7.Découvrez l'ensemble de nos biens directement sur notre site internet : lagencedesremparts. fr Les informations sur les risques auxquels ce bien est exposé sont disponibles sur le site Géorisques : www.georisques.gouv.fr.Informations LOI ALUR : Honoraires : 4.73 % TTC charge acquéreur.Prix hors honoraires : 275 000 ¤. (gedeon_90741_31474995)
Voir plus

Référence: AG627-534
Honoraires d'agence de 4% à la charge de l'acquéreur
DPE
A
B
C
D
E
F
G
GES
A
B
C
D
E
F
G

Prêt immobilier

Vous souhaitez connaître votre capacité d’emprunt et trouver le meilleur crédit immobilier ?
Réaliser une simulation gratuite

Photo 1 - Maison à NAMPONT
Photo 1
Photo 2 - Maison à NAMPONT
Photo 2
Photo 3 - Maison à NAMPONT
Photo 3
Photo 4 - Maison à NAMPONT
Photo 4
Photo 5 - Maison à NAMPONT
Photo 5
Photo 6 - Maison à NAMPONT
Photo 6
Photo 7 - Maison à NAMPONT
Photo 7
Photo 8 - Maison à NAMPONT
Photo 8
Photo 9 - Maison à NAMPONT
Photo 9
Ce site est protégé par reCAPTCHA la Politique de confidentialité et les Conditions d’utilisation de Google s’appliquent.
Obtenir un prêt immobilier au meilleur taux ?

En poursuivant votre navigation sans modifier vos paramètres, vous acceptez l'utilisation de cookies susceptibles de réaliser des statistiques de visite. Cliquez ici pour plus d'informations