Bénéficiez des services de nos partenaires locaux soigneusement sélectionnés
pour vous accompagner dans votre parcours d'achat immobilier

Appartement type 3/4 / jardin / garage

— Marseille-12e 13012 —
390 000 €
77 m² / 130 m²
4 pièces
jardin

Nos partenaires locaux
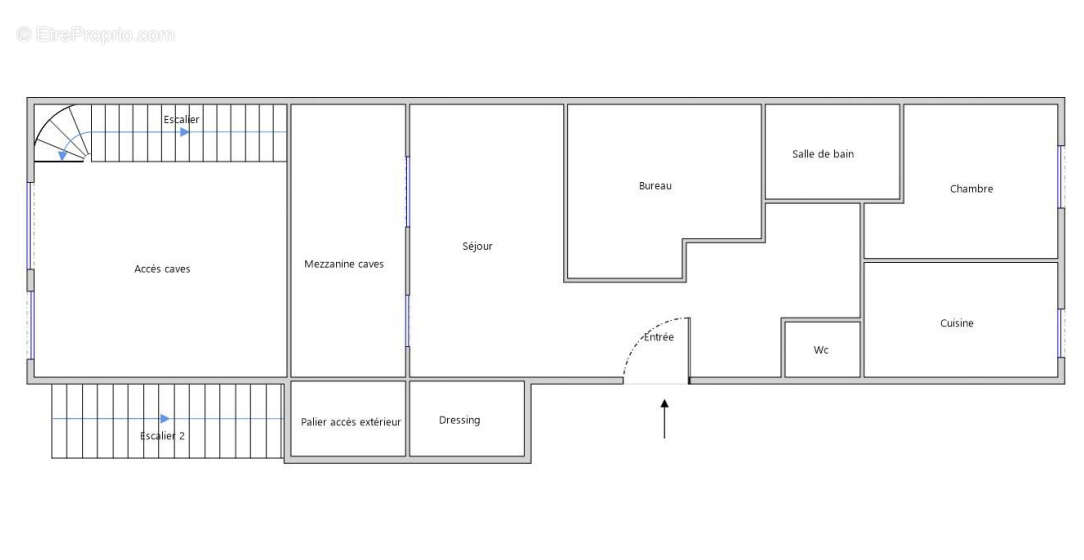
MONTOLIVET - Votre agence L'ADRESSE IMMOBILIER Marseille 12 - SAINT-BARNABÉ vous présente à la vente : Cet appartement de 77 m², offrant une véritable sensation de maison individuelle, est situé au calme absolu et dispose d'un énorme potentiel avec des travaux à prévoir. Il comprend deux chambres, une cuisine séparée, un double séjour lumineux, et un beau jardin privatif de 130m². Un garage de 17 m² et un accès indépendant au jardin renforcent son autonomie. Atouts : deux très grandes caves dont une communicante à l'appartement d'une surface de 50 m² approximativement et une seconde de plus de 70 m², offrant de nombreuses possibilités d'aménagement. Contact: William ROUSTEAU - Tel : [Coordonnées masquées] Mail : [Coordonnées masquées] Ventes - Locations - Estimations Offertes - l'Adresse Immobilier Marseille12 - 20 Avenue de Saint Julien (Saint Barnabé) 13012 Marseille. Copropriété de 4 lots (Pas de procédure en cours). Charges annuelles : 240 euros.
Voir plus

Référence: 618
Bien en copropriété. Nombre de lots : 4. Charges de copropriété : 240 €.
Honoraires à la charge du vendeur.
DPE
A
B
C
D
E
F
G
GES
A
B
C
D
E
F
G

Prêt immobilier

Vous souhaitez connaître votre capacité d’emprunt et trouver le meilleur crédit immobilier ?
Réaliser une simulation gratuite

Appartement à MARSEILLE-12E
Appartement à MARSEILLE-12E
Appartement à MARSEILLE-12E
Appartement à MARSEILLE-12E
Appartement à MARSEILLE-12E
Appartement à MARSEILLE-12E
Appartement à MARSEILLE-12E
Appartement à MARSEILLE-12E
Appartement à MARSEILLE-12E
Appartement à MARSEILLE-12E
Appartement à MARSEILLE-12E
Appartement à MARSEILLE-12E
Appartement à MARSEILLE-12E
Appartement à MARSEILLE-12E
Appartement à MARSEILLE-12E
Appartement à MARSEILLE-12E
Appartement à MARSEILLE-12E
Ce site est protégé par reCAPTCHA la Politique de confidentialité et les Conditions d’utilisation de Google s’appliquent.
Obtenir un prêt immobilier au meilleur taux ?

En poursuivant votre navigation sans modifier vos paramètres, vous acceptez l'utilisation de cookies susceptibles de réaliser des statistiques de visite. Cliquez ici pour plus d'informations