Bénéficiez des services de nos partenaires locaux soigneusement sélectionnés
pour vous accompagner dans votre parcours d'achat immobilier

Appartement

— Lys-Lez-Lannoy 59390 —
120 000 €
70 m²
3 pièces
parking

Nos partenaires locaux
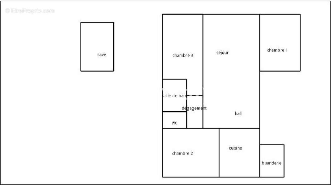
59390 - LYS-LEZ-LANNOY – APPARTEMENT D'UNE SUPERFICIE D'ENVIRON 70 m2 + 2 CHAMBRES (possibilité 3)+ CAVE + STATIONNEMENT

EXCLUSIVITE

Efficity, agence qui estime votre bien en ligne et Simon MENART, vous présentent cet APPARTEMENT de 70m2 offrant un SALON, SALLE A MANGER, CUISINE OUVERTE, 2 CHAMBRES (14 et 10m2), une SDB (4.72 m2) et d'un WC séparé (1.68m2). Possibilité de refermer l'espace salon pour y accueillir une 3ème chambre.

Niché entre la rue Jules Guesde et la rue des Ecoles, dans un cadre verdoyant avec une vue dégagée, cet APPARTEMENT LUMINEUX offre un cadre de vie idéal.

Une cave au sous-sol vient compléter ce bien.

Stationnement facile, parking à disposition en bas de l'appartement.

A proximité :

Commerces :

Lidl 469 m
Match 596 m
Épicerie 622 m

Éducation

École élémentaire Paul Bert 247 m
Crèche La Pépinière 276 m
Groupe scolaire Paul Bert 283 m
École maternelle Paul Bert 341 m
École maternelle Anatole France 349 m

Santé

Pharmacie de Lys 434 m
Clinique 502 m
La Pharmacie Lannoy 570 m
Pharmacie 574 m
Pharmacie Mutualiste 654 m

Informations complémentaires :

Taxe foncière : 621 €
Etage 3/4 SANS ASCENSEUR

A propos de la copropriété :

Pas de procédure en cours
Nombre de lots : 180
Charges prévisionnelles annuelles : 2100 €
Date de réalisation du diagnostic énergétique : 19/09/2023

Montant estimé des dépenses annuelles d'énergie pour un usage standard : entre 1070 € et 1 490 € par an. Prix moyens des énergies indexés sur l'année 2022.

Contactez-moi dès aujourd'hui pour une visite guidée et laissez-vous séduire par votre futur chez-vous !

A PROXIMITE IMMEDIATE, COMMERCES, ECOLES, et AXES ROUTIERS.
Prix de vente : 120.000 EUROS HAI (Honoraires charge acquéreur)
Contact : Simon MENART, tél : [Coordonnées masquées], [Coordonnées masquées]

INFORMATIONS COMPLEMENTAIRES :
Les informations sur les risques auxquels ce bien est exposé sont disponibles sur le site Georisque : georisques. gouv. fr
Simon Ménart - EI - est Agent Commercial mandataire en immobilier, immatriculé au Registre Spécial des Agents Commerciaux du Tribunal de Commerce de Lille sous le n°909199788.
Siège social du mandant : effiCity, 48 avenue de Villiers - 75017 PARIS - Société par Actions Simplifiée, société au capital de 132 373,05 euros, immatriculée au RCS Paris 497 617 746 et titulaire de la Carte professionnelle CPI 75[Coordonnées masquées]02 025 - CCI Paris IDF - Caisse de Garantie : GALIAN Assurances 89 rue de la Boétie 75008 Paris
Voir plus

Référence: 187840
Bien en copropriété. Nombre de lots : 180. Charges de copropriété : 175 €.
Honoraires à la charge du vendeur.
Barème des honoraires
DPE
A
B
C
D
E
F
G
GES
A
B
C
D
E
F
G

Prêt immobilier

Vous souhaitez connaître votre capacité d’emprunt et trouver le meilleur crédit immobilier ?
Réaliser une simulation gratuite

Appartement à LYS-LEZ-LANNOY
Appartement à LYS-LEZ-LANNOY
Appartement à LYS-LEZ-LANNOY
Appartement à LYS-LEZ-LANNOY
Appartement à LYS-LEZ-LANNOY
Appartement à LYS-LEZ-LANNOY
Appartement à LYS-LEZ-LANNOY
Appartement à LYS-LEZ-LANNOY
Ce site est protégé par reCAPTCHA la Politique de confidentialité et les Conditions d’utilisation de Google s’appliquent.
Obtenir un prêt immobilier au meilleur taux ?

En poursuivant votre navigation sans modifier vos paramètres, vous acceptez l'utilisation de cookies susceptibles de réaliser des statistiques de visite. Cliquez ici pour plus d'informations