Bénéficiez des services de nos partenaires locaux soigneusement sélectionnés
pour vous accompagner dans votre parcours d'achat immobilier

Locaux/biens immobiliers

— Morlaix 29600 —
546 000 €
900 m²
32 pièces

Nos partenaires locaux
RÉGION MORLAIX - BAR HOTEL RESTAURANT DE CARACTÈRE

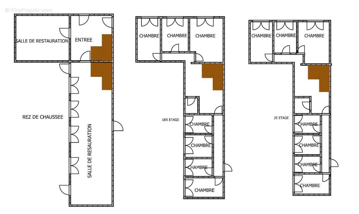
effiCity, l'agence qui estime votre bien en ligne, vous propose ce BEL HOTEL RESTAURANT d'une superficie de 900m² situé au cœur d'un bourg chargé d'histoire .

Il se compose en rez-de-chaussée d'un BAR avec un superbe COMPTOIR SCULPTÉ, à l'arrière se trouve une SALLE DE REPAS ainsi que les CUISINES TRÈS BIEN ENTRETENUES et équipées avec du MATERIEL DE QUALITÉ complété par l'OFFICE.
Dans l'autre aile se trouve le HALL DE RÉCEPTION qui permet d'accéder aux SANITAIRES en sous-sol, à la SALLE de PETIT DEJEUNER, ainsi qu'au BAR de l'HOTEL donnant sur un SALON.
Celui-ci, séparé par une cloison vitrée amovible, est prolongé par la SALLE DE RESTAURANT d'une capacité de 60 COUVERTS.

Dans les étages, une aile comporte les 14 CHAMBRES de la partie hôtel.
Chacune comprenant une SALLE DE BAIN ou une SALLE D'EAU et un WC. Deux chambres avec lavabo et WC.
L'autre aile accueil l'appartement des propriétaires avec au-dessus 4 chambres une douche et un WC.

À l'extérieur DEUX COURS complètent ce bien IDEALEMENT SITUÉ.

Idéal. Ne manquez pas cette opportunité et contactez-nous dès maintenant pour organiser une visite.
Les informations sur les risques auxquels ce bien est exposé sont disponibles sur le site Georisque : georisques. gouv. fr
Benoît Gobin - EI - est Agent Commercial mandataire en immobilier, immatriculé au Registre Spécial des Agents Commerciaux du Tribunal de Commerce de Saint-Brieuc sous le n°939132130.
Siège social du mandant : effiCity, 48 avenue de Villiers - 75017 PARIS - Société par Actions Simplifiée, société au capital de 132 373,05 euros, immatriculée au RCS Paris 497 617 746 et titulaire de la Carte professionnelle CPI 75[Coordonnées masquées]02 025 - CCI Paris IDF - Caisse de Garantie : GALIAN Assurances 89 rue de la Boétie 75008 Paris
Voir plus

Référence: 176154
Honoraires à la charge du vendeur.
Barème des honoraires

Prêt immobilier

Vous souhaitez connaître votre capacité d’emprunt et trouver le meilleur crédit immobilier ?
Réaliser une simulation gratuite

Commerce à MORLAIX
Commerce à MORLAIX
Commerce à MORLAIX
Commerce à MORLAIX
Commerce à MORLAIX
Commerce à MORLAIX
Commerce à MORLAIX
Commerce à MORLAIX
Commerce à MORLAIX
Commerce à MORLAIX
Commerce à MORLAIX
Commerce à MORLAIX
Commerce à MORLAIX
Commerce à MORLAIX
Commerce à MORLAIX
Commerce à MORLAIX
Commerce à MORLAIX
Commerce à MORLAIX
Commerce à MORLAIX
Ce site est protégé par reCAPTCHA la Politique de confidentialité et les Conditions d’utilisation de Google s’appliquent.
Obtenir un prêt immobilier au meilleur taux ?

En poursuivant votre navigation sans modifier vos paramètres, vous acceptez l'utilisation de cookies susceptibles de réaliser des statistiques de visite. Cliquez ici pour plus d'informations