Bénéficiez des services de nos partenaires locaux soigneusement sélectionnés
pour vous accompagner dans votre parcours d'achat immobilier

A 10 mn de thonon villa t4 70 m² jardin 140 m² calme et vue dégagée montagnes ( 74200)

— Thonon-Les-Bains 74200 —
340 000 €
70 m² / 140 m²
4 pièces
jardin

Nos partenaires locaux
Située au calme de l'ensemble immobilier Les pavillons du château , en bordure de zone inconstructible de la commune de Maugny, à 10 mn de THONON,
Villa mitoyenne d'un seul côté d'environ 70 m², avec un jardin de 140 m², deux stationnements extérieurs et un grand cellier extérieur.
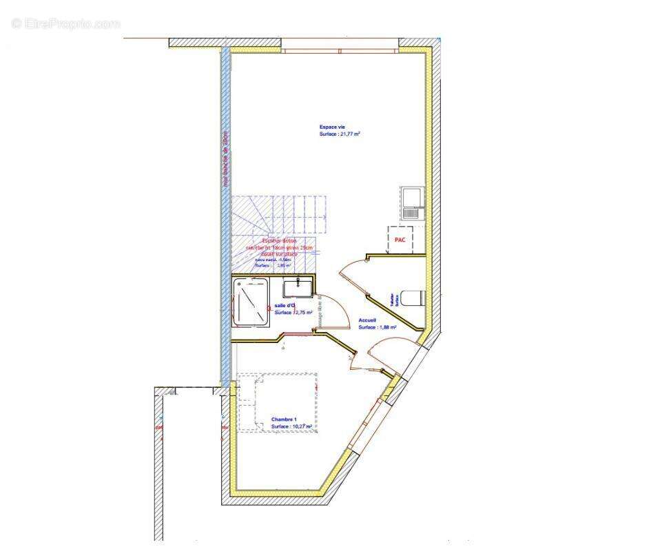
Elle est composée d'un hall d'entrée, une pièce de vie avec espace cuisine ouverte, le tout donnant sur le jardin exposé SUD OUEST avec une magnifique vue dégagée sur les montagnes. Une première chambre, une salle de douche et un WC séparé.
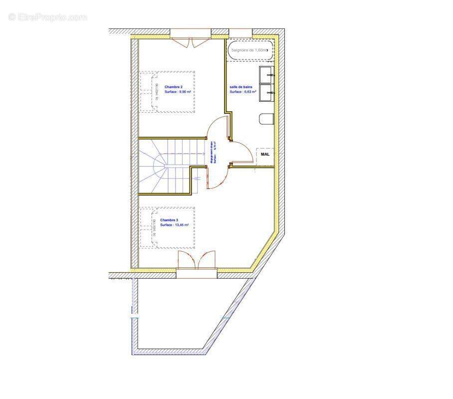
A l'étage, deux nouvelles chambres dont une avec grande terrasse et une salle de bain avec WC.
Dommage ouvrage , norme RT 2020.
Commodités d'Allinges à 3 mn en voiture.
Villa 5

DPE : Non concerné par le DPE

Prix de vente 340.000 euros Frais d'agence inclus, honoraires à la charge du vendeur.

Pour visiter et vous accompagner dans votre projet, contactez Ingrid VEDEL, au [Coordonnées masquées] ou, par courriel à [Coordonnées masquées].
Selon l'article L.561.5 du Code Monétaire et Financier, pour l'organisation de la visite, la présentation d'une pièce d'identité vous sera demandée.
Cette présente annonce a été rédigée sous la responsabilité éditoriale de Ingrid VEDEL agissant sous le statut d'agent commercial immatriculé au RSAC 985032598 auprès de SAS PROPRIETES PRIVEES, au capital de 44 920 euros, ZAC LE CHÊNE FERRÉ - 44 ALLÉE DES CINQ CONTINENTS 44120 VERTOU; SIRET 487 624 777 00040, RCS Nantes. Carte Professionnelle Transactions sur immeubles et fonds de commerce (T) et Gestion immobilière (G) n°CPI 44[Coordonnées masquées]10 388 délivrée par la CCI Nantes - Saint Nazaire. Compte séquestre n°3[Coordonnées masquées] BPA SAINT-SEBASTIEN-SUR-LOIRE (44230). Garantie GALIAN-SMABTP - 89 rue de la Boétie, 75008 Paris - n°28137 J pour 2 000 000 euros pour T et 120 000 euros pour G. Assurance responsabilité civile professionnelle par GALIAN-SMABTP n° de police 28137.J
Mandat réf : 413011- Le professionnel garantit et sécurise votre projet immobilier.

Les informations sur les risques auxquels ce bien est exposé sont disponibles sur le site Géorisques : www. georisques. gouv. fr

Ingrid VEDEL (EI) Agent Commercial - Numéro RSAC : 985032598 - .
Voir plus

Référence: 413011IVED
Honoraires à la charge du vendeur.

Prêt immobilier

Vous souhaitez connaître votre capacité d’emprunt et trouver le meilleur crédit immobilier ?
Réaliser une simulation gratuite

Maison à THONON-LES-BAINS
Maison à THONON-LES-BAINS
Maison à THONON-LES-BAINS
Maison à THONON-LES-BAINS
Maison à THONON-LES-BAINS
Maison à THONON-LES-BAINS
Maison à THONON-LES-BAINS
Maison à THONON-LES-BAINS
Ce site est protégé par reCAPTCHA la Politique de confidentialité et les Conditions d’utilisation de Google s’appliquent.
Obtenir un prêt immobilier au meilleur taux ?

En poursuivant votre navigation sans modifier vos paramètres, vous acceptez l'utilisation de cookies susceptibles de réaliser des statistiques de visite. Cliquez ici pour plus d'informations