Bénéficiez des services de nos partenaires locaux soigneusement sélectionnés
pour vous accompagner dans votre parcours d'achat immobilier

Portet village/garonne- villa type 5 - parcelle 3000m2 vue garonne

— Portet-Sur-Garonne 31120 —
490 000 €
138 m² / 2 900 m²
5 pièces
parkingbalcon/terrassejardin

Nos partenaires locaux


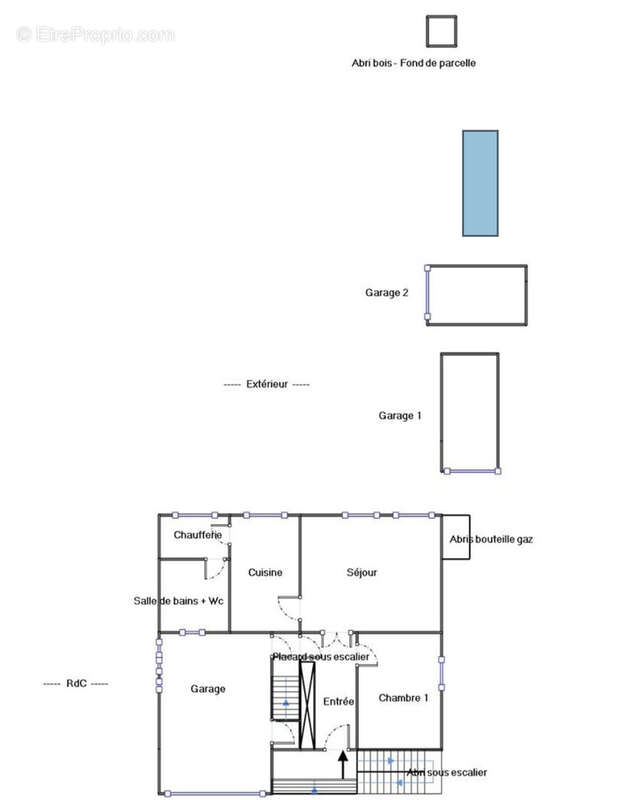
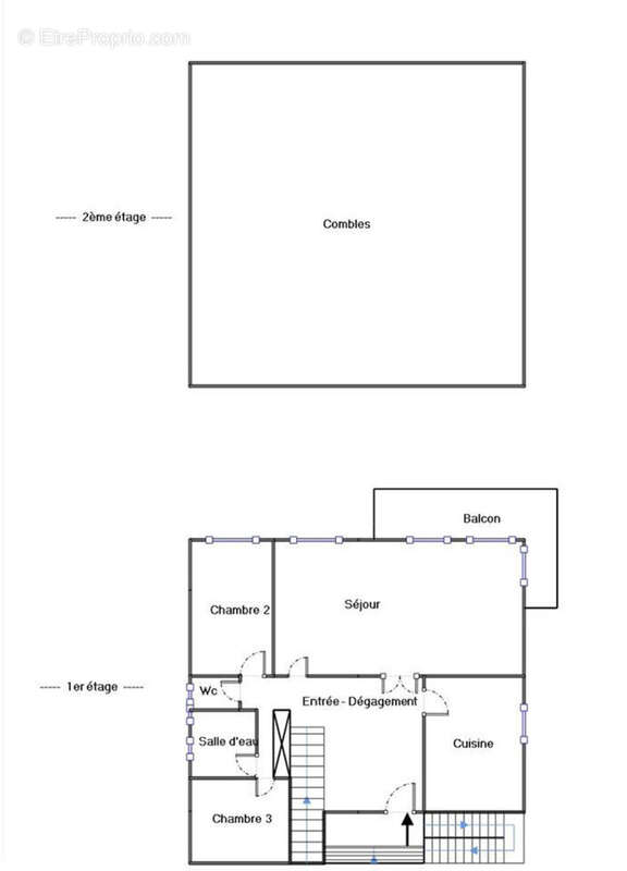
Charmante maison traditionnelle des années 70, idéalement située dans un quartier prisé de Portet-sur-Garonne, à deux pas des commerces et des promenades le long de la Garonne. Implantée sur une parcelle exceptionnelle de 2900 m2 offrant une vue imprenable sur la Garonne, cette propriété allie authenticité et potentiel.
Ce bien de type 5 se compose d’un intérieur au cachet d’époque avec un escalier extérieur doté d'une rampe en fer forgé et un escalier intérieur en marbre. La charpente en bois traditionnelle avec ses chevrons apparents et l’avant-toit apportent un charme indéniable. La maison dispose d’un garage accessible depuis l’intérieur. Des travaux sont à prévoir pour moderniser et personnaliser ce bien selon vos envies.
À l’extérieur, deux garages indépendant complètent cette propriété offrant un fort potentiel d’aménagement dans un environnement privilégié.
Une opportunité rare pour ceux qui recherchent un cadre de vie paisible, avec une vue exceptionnelle, tout en étant proche des commodités. Ne manquez pas cette belle occasion de créer votre futur chez-vous dans un lieu d’exception !


Voir plus

Référence: 101
Honoraires à la charge du vendeur.
Barème des honoraires
DPE
A
B
C
D
E
F
G
GES
A
B
C
D
E
F
G

Prêt immobilier

Vous souhaitez connaître votre capacité d’emprunt et trouver le meilleur crédit immobilier ?
Réaliser une simulation gratuite

Maison à PORTET-SUR-GARONNE
Maison à PORTET-SUR-GARONNE
Maison à PORTET-SUR-GARONNE
Maison à PORTET-SUR-GARONNE
Maison à PORTET-SUR-GARONNE
Maison à PORTET-SUR-GARONNE
Ce site est protégé par reCAPTCHA la Politique de confidentialité et les Conditions d’utilisation de Google s’appliquent.
Obtenir un prêt immobilier au meilleur taux ?

En poursuivant votre navigation sans modifier vos paramètres, vous acceptez l'utilisation de cookies susceptibles de réaliser des statistiques de visite. Cliquez ici pour plus d'informations