Bénéficiez des services de nos partenaires locaux soigneusement sélectionnés
pour vous accompagner dans votre parcours d'achat immobilier

3/4 pieces calme absolu piscine eze

— Eze 06360 —
499 000 €
64 m²
4 pièces

Nos partenaires locaux
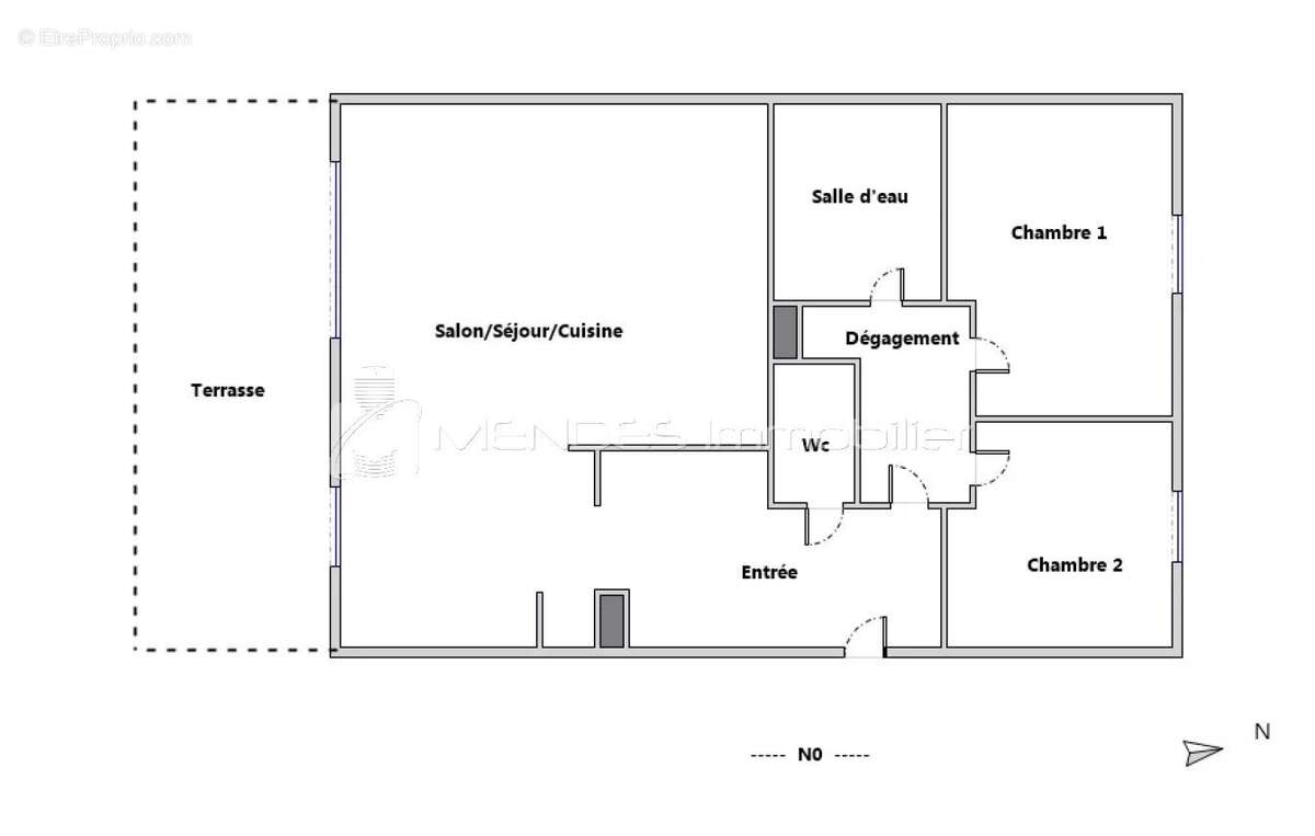
Découvrez ce charmant ¾ pièces décorées avec gout et des matériaux de qualités et profitez de son jardin privatif.
Composé d’un grand salon séjour/cuisine avec une alcôve privative offrant un espace nuit ainsi que deux chambres indépendantes.
Situé dans une résidence au calme avec piscine à quelques minutes de Monaco sur la commune très prisée d’Èze village.

Possibilité d’acquérir un box en sus.

Bien soumis au régime de la copropriété
Lots: 14
Pas de procédure en cours.

Estimation de la consommation électrique annuelle : Basse : 760 € Haute : 1080 €

Information d'affichage énergétique sur ce bien : classe ENERGIE C et classe CLIMAT C . Les informations sur les risques auxquels ce bien est exposé sont disponibles sur le site Géorisques : georisques.gouv.fr.
La présente annonce immobilière a été rédigée sous la responsabilité éditoriale de l’Agent Commercial mandataire en immobilier immatriculé au R.S.A.C. de NICE sous le numéro 523 207 413. Honoraires à la charge du vendeur - Montant moyen de la quote-part de charges courantes 1,920 €/an - Montant estimé des dépenses annuelles d'énergie pour un usage standard : 760€ ~ 1080€ - Les informations sur les risques auxquels ce bien est exposé sont disponibles sur le site Géorisques : www.georisques.gouv.fr
Voir plus

Référence: MIV02038
Barème des honoraires
DPE
A
B
C
D
E
F
G
GES
A
B
C
D
E
F
G
Appartement à EZE
Appartement à EZE
Appartement à EZE
Appartement à EZE
Appartement à EZE
Appartement à EZE
Appartement à EZE
Appartement à EZE
Appartement à EZE
Appartement à EZE
Appartement à EZE
Appartement à EZE
Appartement à EZE
Géorisques

Les informations sur les risques auxquels ce bien est exposé sont disponibles sur le site Géorisques : www.georisques.gouv.fr

Ce site est protégé par hCaptcha Politique de confidentialité et Conditions d’utilisation s’appliquent.

En poursuivant votre navigation sans modifier vos paramètres, vous acceptez l'utilisation de cookies susceptibles de réaliser des statistiques de visite. Cliquez ici pour plus d'informations