Appartement 109m² à rennes

— Rennes 35200 —
257 250 €
110 m²
6 pièces
parkingbalcon/terrasseascenseur

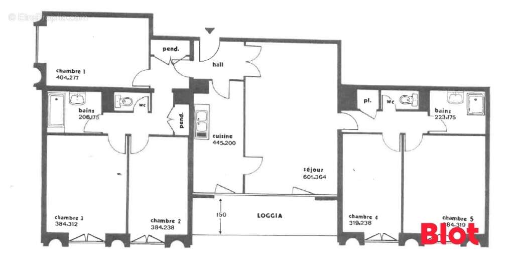
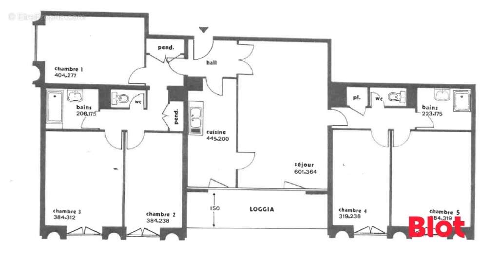
A VENDRE PAR BLOT - Nous avons le plaisir de vous présenter un appartement type 6 d'environ 109m² avec 5 chambres, 2 salles de bains, 2 wc, beaucoup de rangements, une cave et un parking privatif. L'appartement se trouve au pied d'une station de métro, des nombreux commerces (boulanger, supermarché, charcutier, pharmacie, banque, opticien, fast-food, tabac presse, etc...) Il est situé au 4ème étage d'un immeuble avec ascenseur et qui a été récemment ravalé. Pour une famille nombreuse ou pour un investissement, c'est l'idéal. Ref 12131SA Classe énergie : C - Classe climat : C Charges annuelles : 2728EUR (comprenant syndic - chauffage - eau chaude, eau froide - parties communes, stationnement) Nombre de lots : 212 dont 106 lots d'habitation. *Ce bien vous est présenté par l'agence Blot Immobilier Rennes SUD [Coordonnées masquées] au prix de 257.250 EUR FAI dont 5% TTC d'honoraires à la charge de l'acquéreur. Présent sur les secteurs Bréquigny, rue de Nantes, St-Yves, Monconseil, Clémenceau, Rennes St-Jacques, Fréville, Alma, Clémenceau, Italie, Rennes-Sud, Triangle, Blosne, Ste-Thérèse, Poterie, Landry, Pommeraie. Prix net vendeur : 245 000 EUR Les informations sur les risques naturels, miniers, ou technologiques, auxquels ces biens sont exposés, sont disponibles sur le site www.georisques.gouv.fr
Voir plus

Référence: 12131SA
Bien en copropriété. Nombre de lots : 212. Charges de copropriété : 2727 €.
Honoraires d'agence de 5% à la charge de l'acquéreur
Barème des honoraires
DPE
A
B
C
D
E
F
G
GES
A
B
C
D
E
F
G

Prêt immobilier

Vous souhaitez connaître votre capacité d’emprunt et trouver le meilleur crédit immobilier ?
Réaliser une simulation gratuite

Appartement à RENNES
Appartement à RENNES
Appartement à RENNES
Appartement à RENNES
Appartement à RENNES
Appartement à RENNES
Appartement à RENNES
Appartement à RENNES
Appartement à RENNES
Appartement à RENNES
Appartement à RENNES
Appartement à RENNES
Appartement à RENNES
Appartement à RENNES
Appartement à RENNES
Appartement à RENNES
Appartement à RENNES
Appartement à RENNES
Appartement à RENNES
Appartement à RENNES
Appartement à RENNES
Appartement à RENNES
Appartement à RENNES
Appartement à RENNES
Appartement à RENNES
Appartement à RENNES
Appartement à RENNES
Appartement à RENNES
Appartement à RENNES
Appartement à RENNES
Appartement à RENNES
Appartement à RENNES
Appartement à RENNES
Appartement à RENNES
Appartement à RENNES
Appartement à RENNES
Appartement à RENNES
Appartement à RENNES
Appartement à RENNES
Appartement à RENNES
Appartement à RENNES
Appartement à RENNES
Appartement à RENNES
Appartement à RENNES
Appartement à RENNES
Appartement à RENNES
Appartement à RENNES
Appartement à RENNES
Appartement à RENNES
Appartement à RENNES
Appartement à RENNES
Appartement à RENNES
Appartement à RENNES
Appartement à RENNES
Appartement à RENNES
Appartement à RENNES
Appartement à RENNES
Appartement à RENNES
Appartement à RENNES
Appartement à RENNES
Appartement à RENNES
Appartement à RENNES
Appartement à RENNES
Appartement à RENNES
Appartement à RENNES
Appartement à RENNES
Appartement à RENNES
Appartement à RENNES
Appartement à RENNES
Appartement à RENNES
Appartement à RENNES
Appartement à RENNES
Ce site est protégé par reCAPTCHA la Politique de confidentialité et les Conditions d’utilisation de Google s’appliquent.
Obtenir un prêt immobilier au meilleur taux ?

En poursuivant votre navigation sans modifier vos paramètres, vous acceptez l'utilisation de cookies susceptibles de réaliser des statistiques de visite. Cliquez ici pour plus d'informations