Bénéficiez des services de nos partenaires locaux soigneusement sélectionnés
pour vous accompagner dans votre parcours d'achat immobilier

Beau 3/4 pièces - madeleine 75009

— Paris-9e 75009 —
850 000 €
77 m²
3 pièces
ascenseur

Nos partenaires locaux
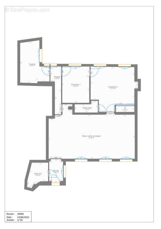
Guy Hoquet Saint-Georges vous présente en exclusivité un appartement de 76.52 m² Carrez idéalement situé rue Godot de Mauroy à quelques pas de la Madeleine dans une copropriété bien tenue construite en 1830. Au 5ème étage avec l'ascenseur jusqu'au 4ème, cet appartement possède beaucoup de charme avec ses poutres apparentes et sa belle pièce de vie de 33 m². Sur cour, il bénéficie d'un calme absolu et d'une belle luminosité avec son exposition Est. Son plan sans perte de place comprend une entrée, un vaste séjour, une cuisine indépendante, une grande chambre avec une salle de douche attenante, une seconde chambre, une salle de bains avec toilettes. Possibilité de créer une 3ème chambre. Espace vélos Coup de coeur de l'agence! (3.66 % honoraires TTC à la charge de l'acquéreur.) Copropriété de 14 lots - dont 14 lots habitation. (Pas de procédure en cours). Charges annuelles : 2117 euros.
Voir plus

Référence: 2579
Bien en copropriété. Nombre de lots : 14. Charges de copropriété : 2117 €.
Honoraires d'agence de 3.66% à la charge de l'acquéreur
DPE
A
B
C
D
E
F
G
GES
A
B
C
D
E
F
G

Prêt immobilier

Vous souhaitez connaître votre capacité d’emprunt et trouver le meilleur crédit immobilier ?
Réaliser une simulation gratuite

Appartement à PARIS-9E
Appartement à PARIS-9E
Appartement à PARIS-9E
Appartement à PARIS-9E
Appartement à PARIS-9E
Appartement à PARIS-9E
Appartement à PARIS-9E
Appartement à PARIS-9E
Appartement à PARIS-9E
Appartement à PARIS-9E
Appartement à PARIS-9E
Appartement à PARIS-9E
Appartement à PARIS-9E
Ce site est protégé par reCAPTCHA la Politique de confidentialité et les Conditions d’utilisation de Google s’appliquent.
Obtenir un prêt immobilier au meilleur taux ?

En poursuivant votre navigation sans modifier vos paramètres, vous acceptez l'utilisation de cookies susceptibles de réaliser des statistiques de visite. Cliquez ici pour plus d'informations