A vendre lorgues maison 122 m² sur terrain 450 m²

— Lorgues 83510 —
337 000 €
122 m² / 450 m²
5 pièces
jardin

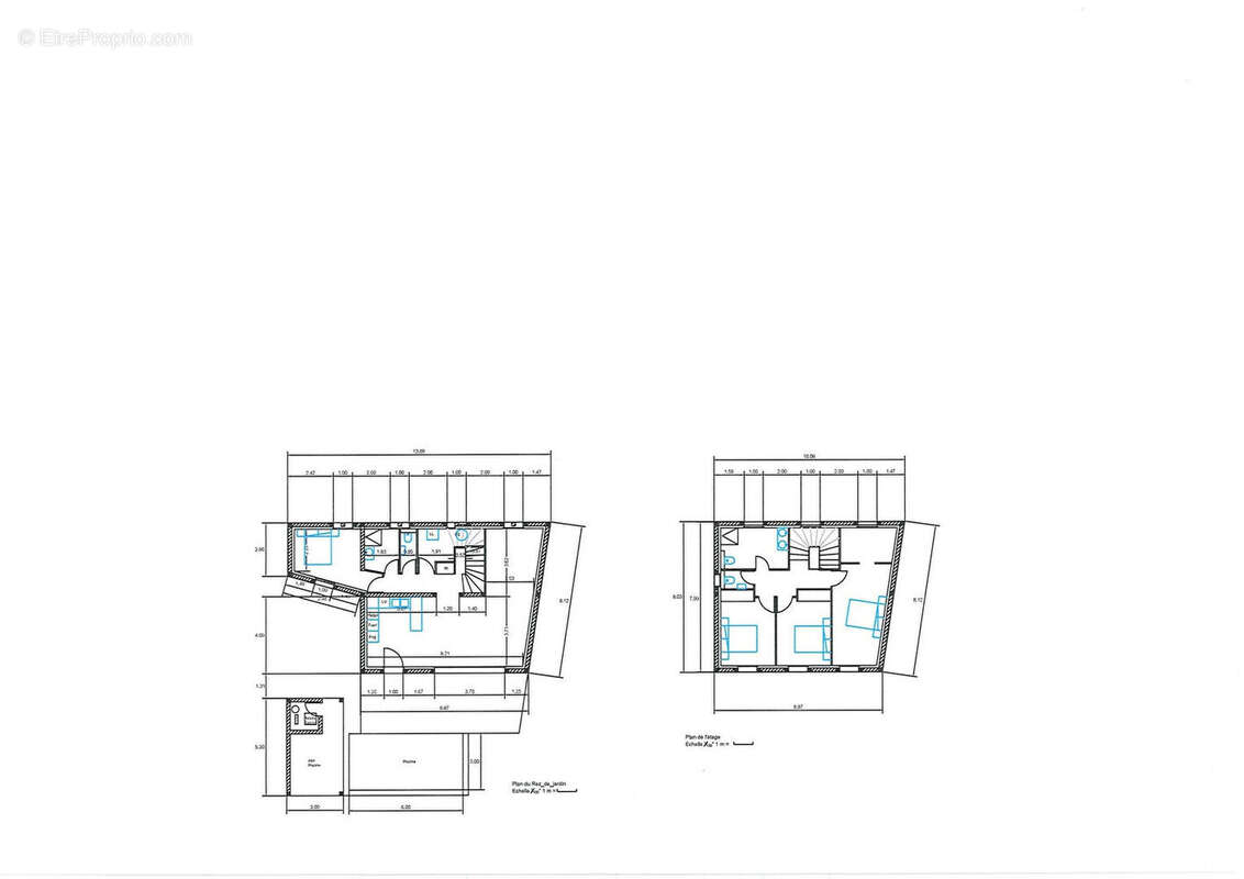
Située dans un secteur calme et recherché de Lorgues, cette maison neuve en cours de construction offre une belle opportunité de finaliser un projet à votre image. D'une surface habitable de 122 m² sur deux niveaux, elle a été conçue pour offrir des volumes agréables et une distribution fonctionnelle. Au rez-de-chaussée, vous profiterez d'une grande pièce de vie de plus de 40 m², idéale pour accueillir un salon et une cuisine ouverte. Une suite parentale avec salle de bains et WC ainsi qu'un cellier/buanderie viennent compléter ce niveau. A l'étage, trois chambres confortables, une salle de bains et un WC indépendant offrent un espace nuit parfaitement adapté à la vie de famille. La maison est actuellement hors d'eau et hors d'air, avec des huisseries en PVC double vitrage, la climatisation gainable réversible, les sanitaires en cours d'installation. Seront à prévoir le carrelage et la cuisine. Le permis de construire prévoit également l'aménagement d'une piscine et d'un pool-house dont la structure en parpaing est déjà réalisée. Il s'agit d'une belle opportunité d'acquérir un bien neuf à personnaliser dans un cadre de vie privilégié. Contactez-nous pour plus d'informations ou pour organiser une visite. Emilie CAROVANI (EI) Agent Commercial - Numéro RSAC : 892 748 658 - DRAGUIGNAN.
Voir plus

Référence: LO0870
Honoraires à la charge du vendeur.
Barème des honoraires

Prêt immobilier

Vous souhaitez connaître votre capacité d’emprunt et trouver le meilleur crédit immobilier ?
Réaliser une simulation gratuite

Maison à LORGUES
Maison à LORGUES
Maison à LORGUES
Maison à LORGUES
Maison à LORGUES
Maison à LORGUES
Maison à LORGUES
Maison à LORGUES
Maison à LORGUES
Maison à LORGUES
Maison à LORGUES
Maison à LORGUES
Maison à LORGUES
Ce site est protégé par reCAPTCHA la Politique de confidentialité et les Conditions d’utilisation de Google s’appliquent.
Obtenir un prêt immobilier au meilleur taux ?

En poursuivant votre navigation sans modifier vos paramètres, vous acceptez l'utilisation de cookies susceptibles de réaliser des statistiques de visite. Cliquez ici pour plus d'informations