Bénéficiez des services de nos partenaires locaux soigneusement sélectionnés
pour vous accompagner dans votre parcours d'achat immobilier

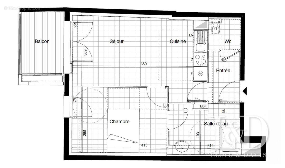
Appartement 41m² à toulouse

— Toulouse 31000 —
291 000 €
41 m²
2 pièces
balcon/terrasseascenseur

Nos partenaires locaux
J'ai le plaisir de vous proposer ce bel appartement, moderne et épuré, situé au coeur de l'un des plus anciens quartiers de Toulouse.
Dans une résidence de standing très bien entretenue, profitez de son emplacement idéal en plein centre-ville.
Une disposition agréable avec un séjour-cuisine de 18m² ouvrant sur un balcon orienté Ouest, et une chambre spacieuse de 12m² attenante à la salle d'eau (WC séparés à l'entrée).
La résidence, conforme à la RT2012, vous offre le confort de la Géothermie avec un chauffage au sol l'hiver et du rafraîchissement par le sol en été.
Cuisine entièrement aménagée et équipée, double-vitrage, isolation récente, tout-à-l'égout.
Faibles charges, incluant chauffage et eau chaude (125€/mois)

?? Sa situation
- Résidence récente et calme dans un ancien quartier de la ville rose.
- Un environnement “Vert” à quelques encablures : Face à la Prairie Des Filtres et à proximité du Jardin des Plantes, du Grand Rond et du Jardin Royal
- Une ambiance poétique à quelques pas des quais de la Garonne
- Des restaurants, bars, cafés, et hauts lieux de la gastronomie occitanes dans les rues avoisinantes

?? S'y rendre
- Parkings à proximité (Indigo en sous-sol et dans la rue)
- Borne de recharge voiture électrique (dans la rue) et
- Métro ligne A : Esquirol et ligne B : Carmes, Palais de Justice (< 10 min à pied)
- Tramway T1 / T2 (direction aéroport) : Palais de justice / Île du Ramier (< 10 min)
- Plusieurs arrêts et lignes de bus autour de la résidence

Appelez-moi pour un premier contact. Au plaisir de vous présenter ce superbe produit…!

La pièce d'identité de tous les visiteurs majeurs sera demandée avant visite, conformément à l'article l.561-5 du code monétaire et financier.
Dynamique et professionnel, je suis à votre disposition afin de vous accompagner dans votre projet immobilier. Contactez-moi pour une information, un conseil ou un avis de valeur de votre bien.

Honoraires à la charge du vendeur. Dans une copropriété de 11 lots. Quote-part moyenne du budget prévisionnel 1 500 €/an. Aucune procédure n'est en cours. Classe énergie B, Classe climat A Montant estimé des dépenses annuelles d'énergie pour un usage standard : entre 260.00 € et 410.00 € sur les années 2021, 2022 et 2023 (abonnements compris). Les informations sur les risques auxquels ce bien est exposé sont disponibles sur le site Géorisques : georisques.gouv.fr.

Votre conseiller LLOYD & DAVIS : Cédric BOUVRY
Agent commercial (Entreprise individuelle)
RSAC 877 841 791 Castres
RCP AACI/10814/24884 Beazley
Voir plus

Référence: 5429-LLOYD&DAVIS
Bien en copropriété. Nombre de lots : 11. Charges de copropriété : 1500 €.
Honoraires à la charge du vendeur.
Barème des honoraires
DPE
A
B
C
D
E
F
G
GES
A
B
C
D
E
F
G

Prêt immobilier

Vous souhaitez connaître votre capacité d’emprunt et trouver le meilleur crédit immobilier ?
Réaliser une simulation gratuite

Appartement à TOULOUSE
Appartement à TOULOUSE
Appartement à TOULOUSE
Appartement à TOULOUSE
Appartement à TOULOUSE
Appartement à TOULOUSE
Appartement à TOULOUSE
Appartement à TOULOUSE
Appartement à TOULOUSE
Ce site est protégé par reCAPTCHA la Politique de confidentialité et les Conditions d’utilisation de Google s’appliquent.
Obtenir un prêt immobilier au meilleur taux ?

En poursuivant votre navigation sans modifier vos paramètres, vous acceptez l'utilisation de cookies susceptibles de réaliser des statistiques de visite. Cliquez ici pour plus d'informations