Bénéficiez des services de nos partenaires locaux soigneusement sélectionnés
pour vous accompagner dans votre parcours d'achat immobilier

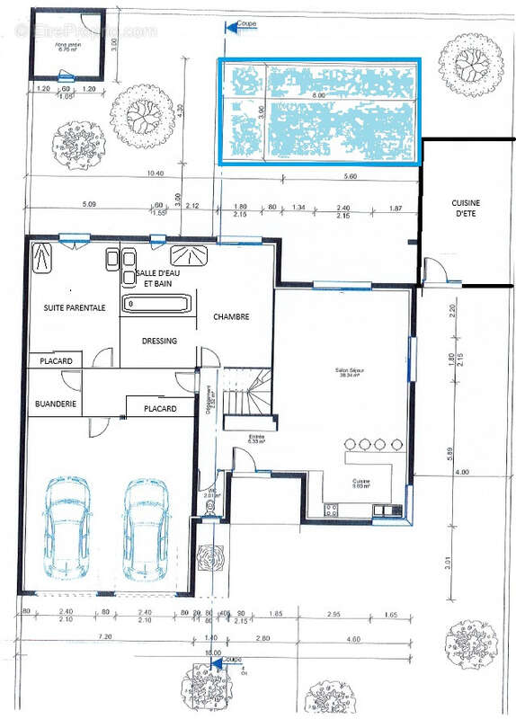
Argeles sur mer - très belle villa contemporaine - type 5 (4 chambres) - 158m2 - piscine et cuisine d'eté

— Argeles-Sur-Mer 66700 —
415 900 €
158 m² / 600 m²
5 pièces
parkingbalcon/terrassejardinpiscine

Nos partenaires locaux
Magnifique Villa contemporaine sur une vaste parcelle de 600m2 avec Piscine et Cuisine d’été.
Totalisant 158m2, elle dispose au rez-de-chaussée, d’un séjour avec cuisine ouverte, une suite parentale avec dressing (équipée d'une baignoire à remous et d'une double douche italienne),
une seconde chambre avec douche privative, un cellier, un WC.
À l'étage, deux chambres, une salle d'eau et un WC.
À l'extérieur, une grande cuisine d'été ouverte sur la piscine au sel et un local technique.
Double garage de 40m2 avec portes automatiques.
Plusieurs Parkings.
Piscine en Béton 8m x 3m traitement au Sel
Logement équipé de la climatisation et des volets roulants électriques.
22 panneaux solaires pour de la revente.
Elle est située dans une rue pavillonaire de la zone commerçante.
Voir plus

Référence: AT1098
Honoraires d'agence de 3.98% à la charge de l'acquéreur
Barème des honoraires
DPE
A
B
C
D
E
F
G
GES
A
B
C
D
E
F
G

Prêt immobilier

Vous souhaitez connaître votre capacité d’emprunt et trouver le meilleur crédit immobilier ?
Réaliser une simulation gratuite

Maison à ARGELES-SUR-MER
Maison à ARGELES-SUR-MER
Maison à ARGELES-SUR-MER
Maison à ARGELES-SUR-MER
Maison à ARGELES-SUR-MER
Maison à ARGELES-SUR-MER
Maison à ARGELES-SUR-MER
Maison à ARGELES-SUR-MER
Maison à ARGELES-SUR-MER
Maison à ARGELES-SUR-MER
Maison à ARGELES-SUR-MER
Maison à ARGELES-SUR-MER
Maison à ARGELES-SUR-MER
Maison à ARGELES-SUR-MER
Maison à ARGELES-SUR-MER
Maison à ARGELES-SUR-MER
Maison à ARGELES-SUR-MER
Maison à ARGELES-SUR-MER
Maison à ARGELES-SUR-MER
Maison à ARGELES-SUR-MER
Maison à ARGELES-SUR-MER
Maison à ARGELES-SUR-MER
Maison à ARGELES-SUR-MER
Maison à ARGELES-SUR-MER
Maison à ARGELES-SUR-MER
Ce site est protégé par reCAPTCHA la Politique de confidentialité et les Conditions d’utilisation de Google s’appliquent.
Obtenir un prêt immobilier au meilleur taux ?

En poursuivant votre navigation sans modifier vos paramètres, vous acceptez l'utilisation de cookies susceptibles de réaliser des statistiques de visite. Cliquez ici pour plus d'informations