Bénéficiez des services de nos partenaires locaux soigneusement sélectionnés
pour vous accompagner dans votre parcours d'achat immobilier

Maison fonctionnelle bien entretenue et modulable avec dépendances aménageables

— Saint-Hilaire-Saint-Mesmin 45160 —
299 500 €
120 m² / 773 m²
5 pièces

Nos partenaires locaux
Localisation : Idéalement située dans un cadre calme, cette maison de 120 m², chauffée au gaz de ville (DPE : C), dispose d'un arrêt de bus devant la porte et offre de multiples possibilités d'aménagement.
Description :
* Rez-de-chaussée : Une entrée avec penderie, WC, une cuisine aménagée et équipée, un salon-séjour avec poêle à bois, prolongé par une véranda isolée et baignée de lumière, ainsi qu'une chambre, une salle de bain et un bureau.
* Étage : Un palier dessert deux chambres spacieuses avec placards, une salle d'eau et wc.
Extérieurs et dépendances :
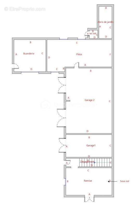
* Une cour et un jardin complètent l'ensemble, donnant accès à de nombreuses dépendances : garage, atelier, remise, 2 caves, combles aménageables, un studio de musique, et une cuisine d'appoint.
* Potentiel unique : Ces dépendances peuvent être transformées plusieurs logement avec entrées indépendantes,idéal pour une activité professionnelle.

Le plus:
-menuiserie double vitrage
-aucun travaux à prévoir

Dpe:C(150). Ges:C (19)

Cette annonce référence 264749 vous est présentée par votre agent commercial BSK Immobilier CHRISTOPHE AZZOUG (EI) immatriculé au RSAC de ORLEANS (45000) sous le numéro 92[Coordonnées masquées]11.

Prix du bien : 299 500,00 €
Les honoraires d'agence sont à la charge du vendeur.

A propos des performances énergétiques :
Date de réalisation du diagnostic énergétique : 30/06/2024
Score DPE : 150 kWhEP/m²/an
Score GES : 19 kgepCO2/m²/an
Montant estimé des dépenses annuelles d'énergie pour un usage standard : entre 1180.00 € et 1680.00 € par an. Prix moyens des énergies indexés sur l'année 2021 (abonnements compris).

Les informations sur les risques auxquels ce bien est exposé sont disponibles sur le site Géorisques : www.georisques.gouv.fr
Voir plus

Référence: 264749
Honoraires à la charge du vendeur.
DPE
A
B
C
D
E
F
G
GES
A
B
C
D
E
F
G

Prêt immobilier

Vous souhaitez connaître votre capacité d’emprunt et trouver le meilleur crédit immobilier ?
Réaliser une simulation gratuite

Maison à SAINT-HILAIRE-SAINT-MESMIN
Maison à SAINT-HILAIRE-SAINT-MESMIN
Maison à SAINT-HILAIRE-SAINT-MESMIN
Maison à SAINT-HILAIRE-SAINT-MESMIN
Maison à SAINT-HILAIRE-SAINT-MESMIN
Maison à SAINT-HILAIRE-SAINT-MESMIN
Maison à SAINT-HILAIRE-SAINT-MESMIN
Maison à SAINT-HILAIRE-SAINT-MESMIN
Maison à SAINT-HILAIRE-SAINT-MESMIN
Maison à SAINT-HILAIRE-SAINT-MESMIN
Maison à SAINT-HILAIRE-SAINT-MESMIN
Maison à SAINT-HILAIRE-SAINT-MESMIN
Maison à SAINT-HILAIRE-SAINT-MESMIN
Maison à SAINT-HILAIRE-SAINT-MESMIN
Maison à SAINT-HILAIRE-SAINT-MESMIN
Maison à SAINT-HILAIRE-SAINT-MESMIN
Maison à SAINT-HILAIRE-SAINT-MESMIN
Maison à SAINT-HILAIRE-SAINT-MESMIN
Maison à SAINT-HILAIRE-SAINT-MESMIN
Maison à SAINT-HILAIRE-SAINT-MESMIN
Maison à SAINT-HILAIRE-SAINT-MESMIN
Maison à SAINT-HILAIRE-SAINT-MESMIN
Maison à SAINT-HILAIRE-SAINT-MESMIN
Ce site est protégé par reCAPTCHA la Politique de confidentialité et les Conditions d’utilisation de Google s’appliquent.
Obtenir un prêt immobilier au meilleur taux ?

En poursuivant votre navigation sans modifier vos paramètres, vous acceptez l'utilisation de cookies susceptibles de réaliser des statistiques de visite. Cliquez ici pour plus d'informations