Bénéficiez des services de nos partenaires locaux soigneusement sélectionnés
pour vous accompagner dans votre parcours d'achat immobilier

Studio avec terrasse et parking carquefou centre

— Carquefou 44470 —
182 800 €
31 m²
1 pièce
balcon/terrasse

Nos partenaires locaux
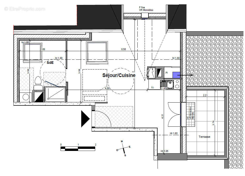
Carquefou Centre Dernier étage Livraison T4 2027
Dans une résidence neuve idéalement située en plein cœur de Carquefou, découvrez ce charmant T1 de 31,44 m2 Carrez (47,42 m2 au sol) situé au 2ème et dernier étage, avec terrasse exposée Est et parking en sous-sol.
Vous apprécierez au quotidien la proximité immédiate de toutes les commodités : commerces, écoles, collège, médiathèque, pharmacie… tout se fait à pied !
Les + du bien :
- Dernier étage, au calme
- Belle terrasse de 8,35 m2 pour profiter de l’extérieur
- Exposition Est offrant une belle luminosité matinale
- Place de parking en sous-sol
- Éligible aux dispositifs LLI et LMNP : idéal investisseur !
- Livraison prévue 4ème trimestre 2027
Prix : 182 800 € TTC
Voir plus

Bien en copropriété.
Barème des honoraires

Prêt immobilier

Vous souhaitez connaître votre capacité d’emprunt et trouver le meilleur crédit immobilier ?
Réaliser une simulation gratuite

Appartement à CARQUEFOU
Appartement à CARQUEFOU
Appartement à CARQUEFOU
Appartement à CARQUEFOU
Ce site est protégé par reCAPTCHA la Politique de confidentialité et les Conditions d’utilisation de Google s’appliquent.
Obtenir un prêt immobilier au meilleur taux ?

En poursuivant votre navigation sans modifier vos paramètres, vous acceptez l'utilisation de cookies susceptibles de réaliser des statistiques de visite. Cliquez ici pour plus d'informations