Pas de appartement à Saint-Lon-Les-Mines pour le moment. Découvrez dès maintenant les appartements dans le département Landes.

À vendre propriété de charme en pierre pleurtuit 193 m2 habitables parc arboré de 7000 m2

— Pleurtuit 35730 —
499 000 €
193 m² / 7 180 m²
7 pièces
parkingbalcon/terrassejardin

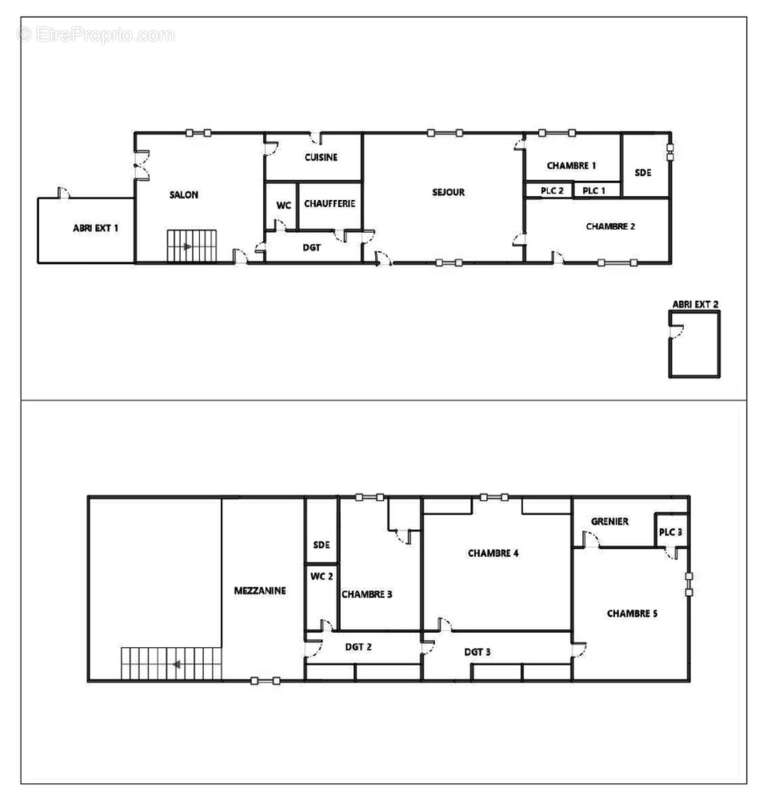
Coup de cœur assuré ! Située à seulement 5 minutes des commerces et 10 minutes des plages de Dinard et de Lancieux, cette maison de caractère du XIXe siècle, à rénover, vous séduira par son authenticité, son environnement bucolique et son immense potentiel. Sous le crépi se cache une belle bâtisse en pierre, édifiée sur un parc paysagé de 7000 m2, véritable écrin de verdure avec chênes centenaires, ruisseau, mare, pont de pierre et une riche variété végétale. Un havre de paix pour les amoureux de la nature et du calme. Elle coche toutes les cases d'une propriété de campagne le coup de coeur est aussi sur ce parc au charme fou empreint de sérénité. La maison principale est composée au rez-de-chaussée de 100m2, de 2 salon/salle à manger de 64m2 en tout avec cheminées, reliés par la cuisine (10m2). une suite parentale (22m2)une pièce bureau ou dressing ou chambrette (7.50m2), un wc, une chaufferie, couloir avec placards.Toutes les pièces principales s’ouvrent sur le jardin ou la terrasse grâce à de nombreuses portes-fenêtres, offrant une belle luminosité et une vie au rythme de la nature. A l'étage une mezzanine ouverte sur le séjour cathédrale, 3 chambres avec placards( 13;25;22m2),dont une avec salle d’eau privative, les deux autres avec lavabo, wc, grenier, couloir avec placards.Volumes généreux, luminosité. Soyez curieux, rien ne remplace une visite pour ressentir pleinement l’atmosphère unique de cette propriété.
Cette annonce vous est proposée par DUCRAY BIRE armelle - EIRL - NoRSAC: 750385171, Enregistré à Greffe du tribunal de commerce de SAINT MALO - Annonce rédigée et publiée par un Agent Mandataire -
Voir plus

Référence: 6624
Honoraires d'agence de 3.96% à la charge de l'acquéreur
Barème des honoraires
DPE
A
B
C
D
E
F
G
GES
A
B
C
D
E
F
G

Prêt immobilier

Vous souhaitez connaître votre capacité d’emprunt et trouver le meilleur crédit immobilier ?
Réaliser une simulation gratuite

Maison à PLEURTUIT
Maison à PLEURTUIT
Maison à PLEURTUIT
Maison à PLEURTUIT
Maison à PLEURTUIT
Maison à PLEURTUIT
Maison à PLEURTUIT
Maison à PLEURTUIT
Maison à PLEURTUIT
Maison à PLEURTUIT
Maison à PLEURTUIT
Maison à PLEURTUIT
Maison à PLEURTUIT
Maison à PLEURTUIT
Maison à PLEURTUIT
Maison à PLEURTUIT
Maison à PLEURTUIT
Maison à PLEURTUIT
Maison à PLEURTUIT
Maison à PLEURTUIT
Maison à PLEURTUIT
Maison à PLEURTUIT
Maison à PLEURTUIT
Maison à PLEURTUIT
Maison à PLEURTUIT
Maison à PLEURTUIT
Ce site est protégé par reCAPTCHA la Politique de confidentialité et les Conditions d’utilisation de Google s’appliquent.
Obtenir un prêt immobilier au meilleur taux ?

En poursuivant votre navigation sans modifier vos paramètres, vous acceptez l'utilisation de cookies susceptibles de réaliser des statistiques de visite. Cliquez ici pour plus d'informations