Bénéficiez des services de nos partenaires locaux soigneusement sélectionnés
pour vous accompagner dans votre parcours d'achat immobilier

** opportunite à saisir * maison de type 7 pièces d'une surface au sol de 200 m² **

— Drusenheim 67410 —
359 800 €
136 m²
7 pièces
piscine

Nos partenaires locaux
** EXCLUSIVITÉ - VENTE - DRUSENHEIM **

A Drusenheim, saisissez l’opportunité d'acquérir cette charmante maison offrant une possibilité de 6 chambres, pour une surface totale au sol de 200.45 m² - construite en 1952 - sur un terrain de 4.99 ares !


CARACTÉRISTIQUES Énergétiques:

* DPE: Note de D (GES en D).
* ISOLATION : /
* CONSTRUCTION: Murs en briques creuses (23 cm).
* PLANCHER BAS: Voutains sur solives métalliques.
* TOITURE-PLAFOND: Dalle béton - Plafond sous solives bois.
* FENÊTRES: PVC/BOIS Double vitrage - à isolation renforcée.

* CHAUFFAGE: Chaudière individuelle gaz à condensation.
* ÉMETTEURS: Radiateurs.
- Chauffage appoint: Poêle à bois.
* CLIMATISATION: Réversible dans 3 chambres + Pièce de vie !!
* EAU CHAUDE: Combinée au système de chauffage, ballon 120 Litres.


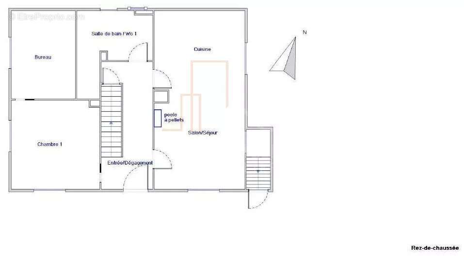
En franchissant la porte, vous découvrirez:

- une entrée/dégagement de 9.55 m².
- une 1ère chambre de 14.80 m².
- une pièce pouvant faire office de bureau (ou de chambre) de 10.50 m².
- une cuisine équipée moderne et ouverte sur la pièce de vie (30 m²).
- une salle d'eau comprenant des WC.


A l'étage, la maison est disposée de la manière suivante:

- un palier agréable de 9.50 m².
- 3 lumineuses chambres de 11.90 m² jusqu'à 12.50 m².
dont une chambre communicante avec une pièce type dressing.
- une salle de bains avec WC.


Enfin, les combles vous offrent une surface au sol de 52.50 m² (!) méritant d'êtres exploités.


Au sous-sol, un espace important de stockage vous est présenté - avec un adoucisseur installé en 2022.


Quant à l'extérieur, 2 car-port vous permettent de garer vos voitures. Une piscine (hors-sol) est installée à côté d'une terrasse couverte - idéale pour vos journées d'été en famille !


Vous l'aurez compris, cette maison de 159.90 m² surface carrez, possède de réels avantages, dans une rue paisible du village (Rue Jacques Gachot).


Pour davantage d'informations, n'hésitez pas à me contacter pour prévoir une visite à votre convenance:

SARL NEO CONCEPT IMMOBILIER - RCS Strasbourg TI 788 575 652 - N° Carte pro : CPI 67[Coordonnées masquées]30 235 délivrée par la CCI du Bas-Rhin - RCP : Generali 2 rue Pillet-Will 75009 PARIS - Transaction : Non détention de fonds

Maxime BRENNER, Conseiller en Immobilier- Entrepreneur individuel RSAC 877 794 412 -
Tél: [Coordonnées masquées]
Mail: [Coordonnées masquées]
Voir plus

Référence: 86069648
DPE
A
B
C
D
E
F
G
GES
A
B
C
D
E
F
G

Prêt immobilier

Vous souhaitez connaître votre capacité d’emprunt et trouver le meilleur crédit immobilier ?
Réaliser une simulation gratuite

Maison à DRUSENHEIM
Maison à DRUSENHEIM
Maison à DRUSENHEIM
Maison à DRUSENHEIM
Maison à DRUSENHEIM
Maison à DRUSENHEIM
Maison à DRUSENHEIM
Maison à DRUSENHEIM
Maison à DRUSENHEIM
Maison à DRUSENHEIM
Maison à DRUSENHEIM
Maison à DRUSENHEIM
Maison à DRUSENHEIM
Maison à DRUSENHEIM
Maison à DRUSENHEIM
Maison à DRUSENHEIM
Maison à DRUSENHEIM
Maison à DRUSENHEIM
Maison à DRUSENHEIM
Maison à DRUSENHEIM
Maison à DRUSENHEIM
Maison à DRUSENHEIM
Maison à DRUSENHEIM
Maison à DRUSENHEIM
Maison à DRUSENHEIM
Maison à DRUSENHEIM
Ce site est protégé par reCAPTCHA la Politique de confidentialité et les Conditions d’utilisation de Google s’appliquent.
Obtenir un prêt immobilier au meilleur taux ?

En poursuivant votre navigation sans modifier vos paramètres, vous acceptez l'utilisation de cookies susceptibles de réaliser des statistiques de visite. Cliquez ici pour plus d'informations