Maison 85m² à plumieux

— Plumieux 22210 —
20 000 €
85 m² / 188 m²
2 pièces
jardin

Iad France - Karine Le Franc vous propose : Charmante Maison de bourg à Réhabiliter - Idéal Investisseur -
Bien que nécessitant des travaux de rénovation, cette maison présente un véritable potentiel de valorisation. Une fois rénovée, elle pourra constituer un investissement locatif attractif, un pied-à-terre unique ou une résidence principale personnalisée.
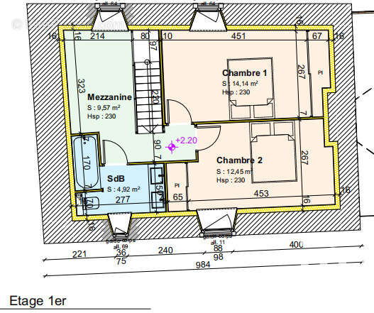
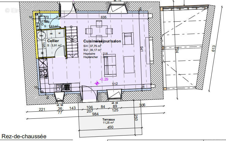
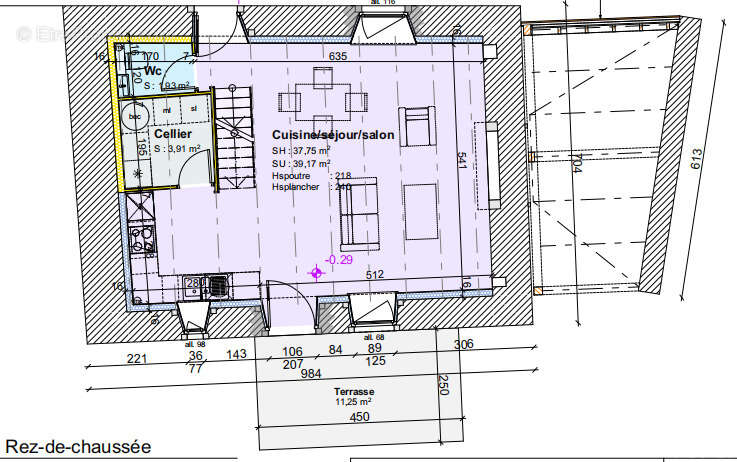
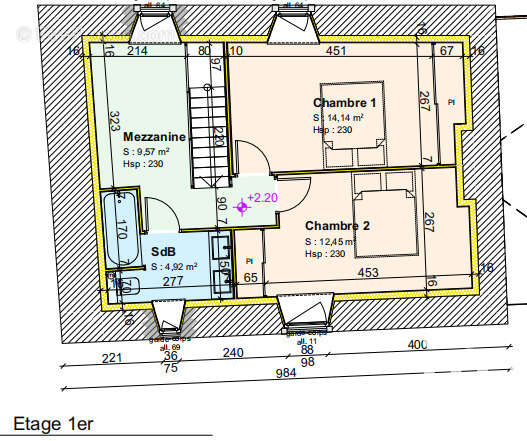
Avec l'Avant Projet Sommaire, nous avons une projection d'une surface habitable d'environ 85 m² sur 2 niveaux. Attenant au bien, un porche.
APS et divers DEVIS faits.

Située au cOEur du bourg tranquille de Coëtlogon, cette maison offre un potentiel incroyable pour les amateurs de rénovation et d'investissement immobilier.
Elle présente un cachet authentique et un charme certain, avec ses 2 niveaux voire un 3ème en mezzanine, sur une parcelle de 188 m² orientée Sud.

L'espace intérieur vous permet de laisser libre cours à votre imagination : créer un salon cosy, aménager une suite parentale, installer une cuisine moderne, et bien plus encore. Les deux étages offrent la possibilité de concevoir des espaces distincts, idéals pour une distribution optimale des pièces.

À 5 minutes en voiture des commerces pour plus de commodité et de l'axe routier Rennes / Saint Brieuc, cette maison à rénover est une opportunité à saisir pour les amoureux de l'ancien et les investisseurs avisés.



Honoraires d'agence à la charge du vendeur.
Bien non soumis au DPE. Les informations sur les risques auxquels ce bien est exposé, y compris l'obligation légale de débroussaillement, sont disponibles sur le site Géorisques : http://www.georisques.gouv.fr.
La présente annonce immobilière a été rédigée sous la responsabilité éditoriale de Mme Karine Le Franc mandataire indépendant en immobilier (sans détention de fonds), agent commercial de la SAS I@D France immatriculé au RSAC de SAINT-BRIEUC sous le numéro 890860786, titulaire de la carte de démarchage immobilier pour le compte de la société I@D France SAS.
Informations LOI ALUR :
Honoraires charge vendeur. (gedeon_6727_31505699)
Voir plus

Référence: 1797384
Honoraires à la charge du vendeur.

Prêt immobilier

Vous souhaitez connaître votre capacité d’emprunt et trouver le meilleur crédit immobilier ?
Réaliser une simulation gratuite

Photo 1 - Maison à PLUMIEUX
Photo 1
Photo 2 - Maison à PLUMIEUX
Photo 2
Photo 3 - Maison à PLUMIEUX
Photo 3
Photo 4 - Maison à PLUMIEUX
Photo 4
Photo 5 - Maison à PLUMIEUX
Photo 5
Photo 6 - Maison à PLUMIEUX
Photo 6
Photo 7 - Maison à PLUMIEUX
Photo 7
Photo 8 - Maison à PLUMIEUX
Photo 8
Ce site est protégé par reCAPTCHA la Politique de confidentialité et les Conditions d’utilisation de Google s’appliquent.
Obtenir un prêt immobilier au meilleur taux ?

En poursuivant votre navigation sans modifier vos paramètres, vous acceptez l'utilisation de cookies susceptibles de réaliser des statistiques de visite. Cliquez ici pour plus d'informations