Gerardmer proche lac projet a terminer

— Gerardmer 88400 —
312 000 €
136 m² / 576 m²
6 pièces
parkingbalcon/terrassejardin

AXEL VOUS PROPOSE , GERARDMER LES BAS RUPTS PROCHE DU LAC , EN PROMONTOIRE , CONSTRUCTION ( hors d'eau ) A TERMINER .

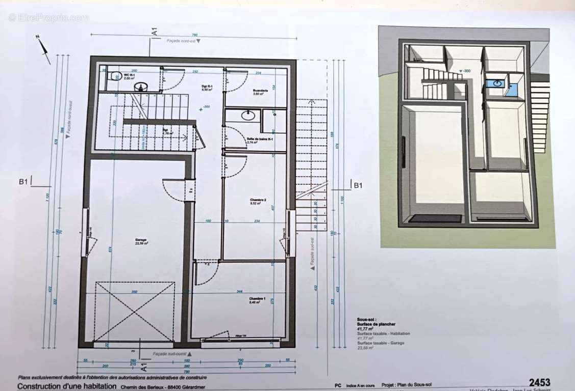
Posé sur un terrain de 576 m2 , dans un quartier offrant une position dominante , sur le secteur des Bas Rupts juste après le Lac , ce beau projet de construction d'une maison typique du secteur ( contemporaine avec son style chalet moderne ) de 136 m2 habitable 4 chambres , séjour mezzanine et terrasse , 2 salles de bains , car port pour les voitures , est actuellement élevé , la toiture va être posée , et ce beau projet sera à achever , il est vendu hors d'eau .

Voir plans et photos

Visites sur chantier , contactez Axel au : [Coordonnées masquées]

OU , consultez l'ensemble de nos propositions sur : VOSGES-IMMOSECONDAIRE COM


'Les informations sur les risques auxquels ce bien est exposé sont disponibles sur le site Géorisques http://www.georisques.gouv.fr'.
La présente annonce immobilière a été rédigée sous la responsabilité éditoriale de Axel RUTTIENS en portage salarial, titulaire de la carte de transaction immobilière pour le compte de la SARL LES PROFESSIONNELS DE L'IMMOBILIER, immatriculée au RCS Epinal sous le numéro 929 012 722 (sans détention de fonds) -
- Le barème d'honoraires est consultable sur notre site : https://les-professionnels.immo/uploads/Bareme.pdf Annonce rédigée et publiée par un Agent Mandataire -

- Annonce rédigée et publiée par un Agent Mandataire -
Voir plus

Honoraires à la charge du vendeur.

Prêt immobilier

Vous souhaitez connaître votre capacité d’emprunt et trouver le meilleur crédit immobilier ?
Réaliser une simulation gratuite

Maison à GERARDMER
Maison à GERARDMER
Maison à GERARDMER
Maison à GERARDMER
Maison à GERARDMER
Maison à GERARDMER
Maison à GERARDMER
Maison à GERARDMER
Maison à GERARDMER
Maison à GERARDMER
Maison à GERARDMER
Maison à GERARDMER
Maison à GERARDMER
Maison à GERARDMER
Maison à GERARDMER
Maison à GERARDMER
Ce site est protégé par reCAPTCHA la Politique de confidentialité et les Conditions d’utilisation de Google s’appliquent.
Obtenir un prêt immobilier au meilleur taux ?

En poursuivant votre navigation sans modifier vos paramètres, vous acceptez l'utilisation de cookies susceptibles de réaliser des statistiques de visite. Cliquez ici pour plus d'informations