Bénéficiez des services de nos partenaires locaux soigneusement sélectionnés
pour vous accompagner dans votre parcours d'achat immobilier

Dieppe centre . appartement en duplex neuf avec terrasse et ascenseur.

— Dieppe 76200 —
229 800 €
57 m²
3 pièces
ascenseur

Nos partenaires locaux
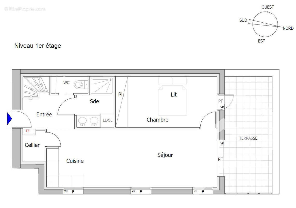
Notre Agence vous présente la Résidence 16 V.H, un immeuble du 19ème siècle intégralement réhabilité pour offrir tout le confort moderne, situé à deux pas des rues commerçantes, à proximité de la gare, du port et de la plage de Dieppe. Appartement en Duplex de 56.71m² + terrasse, situé en plein coeur de Dieppe (76200), au 1er et dernier étage avec accès par ascenseur. Livraison prévue : Fin 2025 Frais de notaire : Réduits Cette annonce vous est proposée par votre agence Stéphane Plaza Immobilier, 18 place Saint Jacques 76200 DIEPPE - [Coordonnées masquées] Conformément aux dispositions de l'article R561-5-1 du code monétaire et financier une copie de la pièce d'identité sera demandée avant chaque visite. Copropriété de 25 lots - dont 11 lots habitation.(Pas de procédure en cours). Annie QUIBEL (EI) Agent Commercial - Numéro RSAC : 379 646 383 - DIEPPE.
Voir plus

Référence: 1449-15
Bien en copropriété. Nombre de lots : 25.
Honoraires à la charge du vendeur.
Barème des honoraires

Prêt immobilier

Vous souhaitez connaître votre capacité d’emprunt et trouver le meilleur crédit immobilier ?
Réaliser une simulation gratuite

Appartement à DIEPPE
Appartement à DIEPPE
Appartement à DIEPPE
Appartement à DIEPPE
Ce site est protégé par reCAPTCHA la Politique de confidentialité et les Conditions d’utilisation de Google s’appliquent.
Obtenir un prêt immobilier au meilleur taux ?

En poursuivant votre navigation sans modifier vos paramètres, vous acceptez l'utilisation de cookies susceptibles de réaliser des statistiques de visite. Cliquez ici pour plus d'informations