Bénéficiez des services de nos partenaires locaux soigneusement sélectionnés
pour vous accompagner dans votre parcours d'achat immobilier

Maison 300m² à vaas

— Vaas 72500 —
35 000 €
300 m² / 542 m²
5 pièces
jardin

Nos partenaires locaux
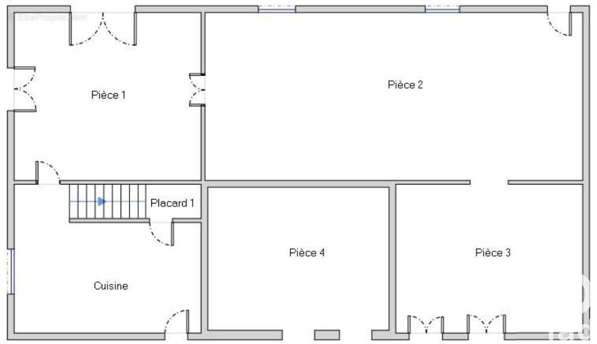
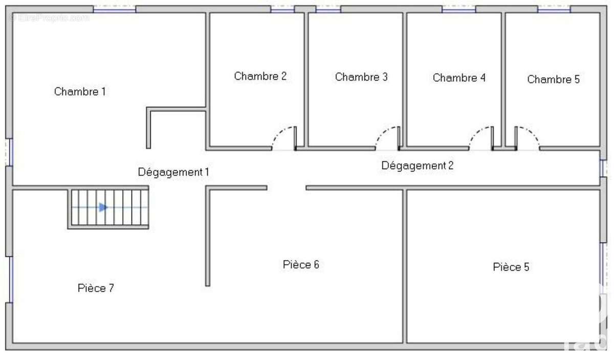
Iad France - Laurent Volut vous propose : Facile d'accès, situé sur le carrefour des Halles (commune de Vaas), ancien hôtel restaurant d'environ 300 m² à restaurer entièrement.
Le rez de chaussée propose de beaux volumes et l'étage et peut facilement être repensé. Un terrain clos d'environ 350 m² complète ce bien.
D'important travaux sont à prévoir : toiture, chauffage, isolation, assainissement. Un budget travaux important sera nécessaire pour restaurer ce bien tout en laissant libre cous à votre imagination.
L'emplacement et la taille du bien sont idéale pour une profession libérale ou une habitation de type collocation.


Honoraires d'agence à la charge du vendeur.
Bien non soumis au DPE. Les informations sur les risques auxquels ce bien est exposé, y compris l'obligation légale de débroussaillement, sont disponibles sur le site Géorisques : http://www.georisques.gouv.fr.
La présente annonce immobilière a été rédigée sous la responsabilité éditoriale de M Laurent Volut mandataire indépendant en immobilier (sans détention de fonds), agent commercial de la SAS I@D France immatriculé au RSAC de LE MANS sous le numéro 912230943, titulaire de la carte de démarchage immobilier pour le compte de la société I@D France SAS.
Informations LOI ALUR :
Honoraires charge vendeur. (gedeon_6727_31510616)
Voir plus

Référence: 1792382
Honoraires à la charge du vendeur.

Prêt immobilier

Vous souhaitez connaître votre capacité d’emprunt et trouver le meilleur crédit immobilier ?
Réaliser une simulation gratuite

Photo 1 - Maison à VAAS
Photo 1
Photo 2 - Maison à VAAS
Photo 2
Photo 3 - Maison à VAAS
Photo 3
Photo 4 - Maison à VAAS
Photo 4
Photo 5 - Maison à VAAS
Photo 5
Photo 6 - Maison à VAAS
Photo 6
Photo 7 - Maison à VAAS
Photo 7
Ce site est protégé par reCAPTCHA la Politique de confidentialité et les Conditions d’utilisation de Google s’appliquent.
Obtenir un prêt immobilier au meilleur taux ?

En poursuivant votre navigation sans modifier vos paramètres, vous acceptez l'utilisation de cookies susceptibles de réaliser des statistiques de visite. Cliquez ici pour plus d'informations