Bénéficiez des services de nos partenaires locaux soigneusement sélectionnés
pour vous accompagner dans votre parcours d'achat immobilier

Appartement 93m² à marcq-en-baroeul

— Marcq-En-Baroeul 59700 —
465 350 €
93 m²
4 pièces
parkingbalcon/terrasseascenseur

Nos partenaires locaux
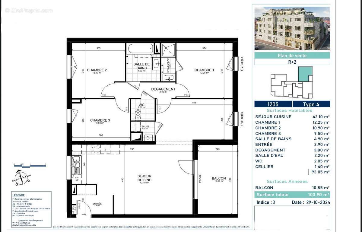
T4 de 93 m² avec loggia plein sud – Résidence neuve haut de gamme à Marcq-en-Baroeul

Au coeur d'un quartier en pleine transformation, à deux pas du futur pôle culturel « Le Pont des Arts », découvrez ce bel appartement 4 pièces de 93 m², situé au 2er étage d'une résidence élégante à l'architecture inspirée de l'Art déco.

L'espace de vie, lumineux et traversant, comprend une grande pièce principale avec cuisine ouverte, prolongée par une loggia de 10 m² exposée plein sud. Côté nuit, deux chambres se partagent une salle de bains située à gauche du couloir, tandis que la suite parentale, plus indépendante, dispose de sa propre salle d'eau sur le côté droit. Un cellier de 1,4 m² complète l'ensemble.

Pensé pour le confort moderne, cet appartement offre des prestations haut de gamme : parquet, grandes baies vitrées, rangements optimisés, beaux volumes et extérieurs généreux.

Actuellement en travaux – Livraison prévue fin 2025 / début 2026.
Frais de notaire réduits à 3 % et deux places de stationnement incluses.

Située à Marcq-en-Baroeul, ville recherchée aux portes de Lille, cette adresse combine cadre de vie verdoyant, excellence scolaire, dynamisme local et architecture de caractère.

Honoraires inclus de 5.26% TTC à la charge de l'acquéreur. Prix hors honoraires 442 082 €. Dans une copropriété de 16 lots. Aucune procédure n'est en cours. Non soumis au DPE. Les informations sur les risques auxquels ce bien est exposé sont disponibles sur le site Géorisques : georisques.gouv.fr.

Votre conseiller Immobilière du Hautmont : Anaïs Got
Agent commercial (Entreprise individuelle)
Voir plus

Référence: VA22331-GF
Bien en copropriété. Nombre de lots : 16.
Honoraires d'agence de 5.26% à la charge de l'acquéreur
Barème des honoraires

Prêt immobilier

Vous souhaitez connaître votre capacité d’emprunt et trouver le meilleur crédit immobilier ?
Réaliser une simulation gratuite

Appartement à MARCQ-EN-BAROEUL
Appartement à MARCQ-EN-BAROEUL
Appartement à MARCQ-EN-BAROEUL
Appartement à MARCQ-EN-BAROEUL
Appartement à MARCQ-EN-BAROEUL
Ce site est protégé par reCAPTCHA la Politique de confidentialité et les Conditions d’utilisation de Google s’appliquent.
Obtenir un prêt immobilier au meilleur taux ?

En poursuivant votre navigation sans modifier vos paramètres, vous acceptez l'utilisation de cookies susceptibles de réaliser des statistiques de visite. Cliquez ici pour plus d'informations