Bénéficiez des services de nos partenaires locaux soigneusement sélectionnés
pour vous accompagner dans votre parcours d'achat immobilier

Appartement 87m² à marcq-en-baroeul

— Marcq-En-Baroeul 59700 —
470 350 €
87 m²
4 pièces
parkingbalcon/terrasseascenseur

Nos partenaires locaux
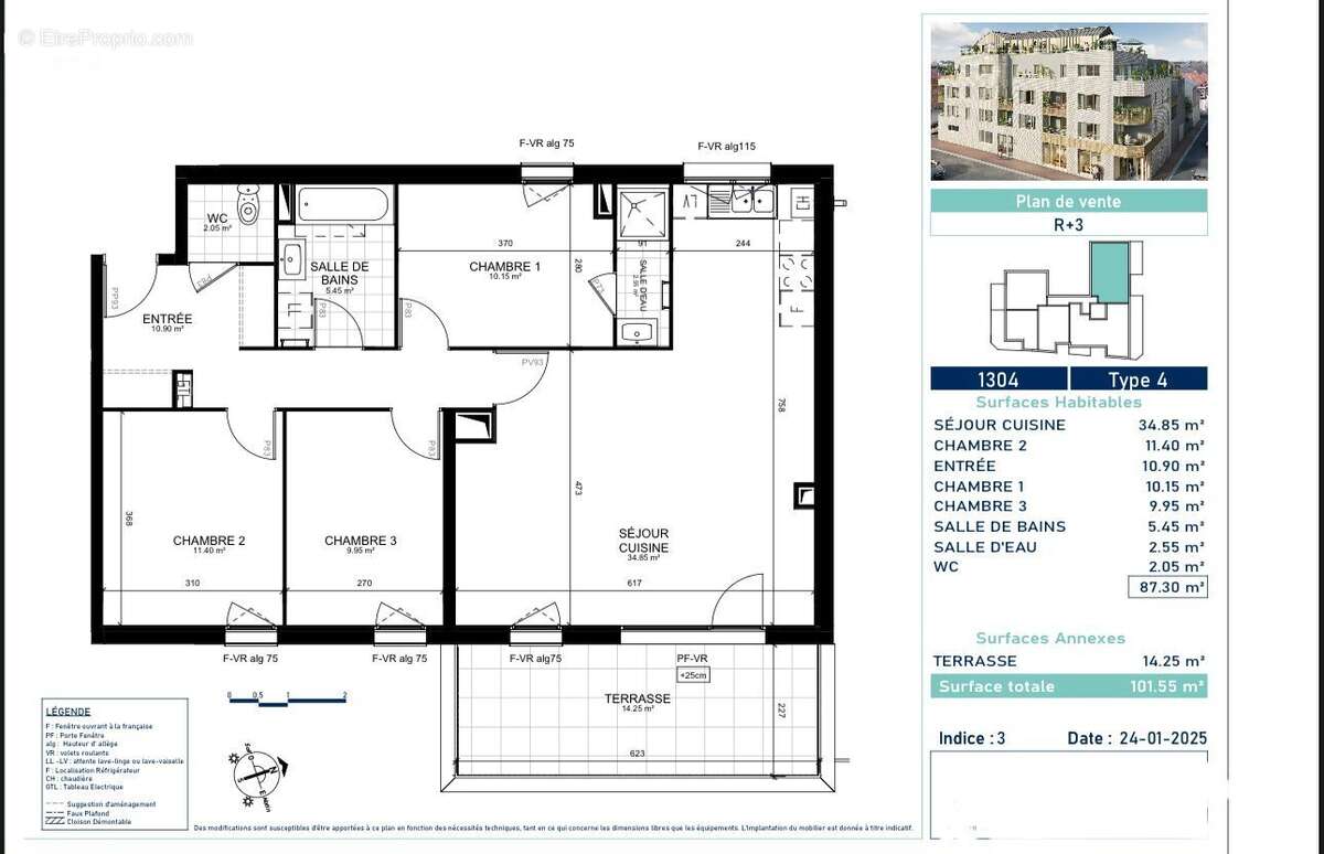
T4 de 87 m² avec terrasse plein sud – Résidence neuve haut de gamme à Marcq-en-Baroeul

Au coeur d'un quartier en pleine métamorphose, à deux pas du futur pôle culturel « Le Pont des Arts », découvrez ce superbe appartement de 4 pièces, situé au 3e étage sur 4 d'une élégante résidence neuve à l'architecture inspirée de l'Art déco.

L'entrée spacieuse de 10,9 m² dessert deux premières chambres de 10 m² et 11,5 m², qui se partagent une salle de bains de 5,5 m². Un peu plus loin, la suite parentale de 10 m² bénéficie de sa propre salle d'eau.
L'espace de vie de 35 m², lumineux et traversant, accueille un séjour avec cuisine ouverte, prolongé par une belle terrasse exposée plein sud de 14 m².

Conçu pour un confort de vie optimal, cet appartement propose des prestations de standing : parquet, grandes baies vitrées, volumes généreux, rangements intégrés et beaux espaces extérieurs.

En cours de construction – Livraison prévue fin 2025 / début 2026.
Frais de notaire réduits (3 %) et deux places de stationnement extérieures couvertes incluses.

Située à Marcq-en-Baroeul, commune prisée aux portes de Lille, la résidence bénéficie d'un environnement verdoyant, d'un excellent cadre scolaire, d'une belle qualité architecturale et d'un tissu local dynamique.

Honoraires inclus de 5.26% TTC à la charge de l'acquéreur. Prix hors honoraires 446 832 €. Dans une copropriété de 16 lots. Aucune procédure n'est en cours. Non soumis au DPE. Les informations sur les risques auxquels ce bien est exposé sont disponibles sur le site Géorisques : georisques.gouv.fr.

Votre conseiller Immobilière du Hautmont : Anaïs Got
Agent commercial (Entreprise individuelle)
Voir plus

Référence: VA22332-GF
Bien en copropriété. Nombre de lots : 16.
Honoraires d'agence de 5.26% à la charge de l'acquéreur
Barème des honoraires

Prêt immobilier

Vous souhaitez connaître votre capacité d’emprunt et trouver le meilleur crédit immobilier ?
Réaliser une simulation gratuite

Appartement à MARCQ-EN-BAROEUL
Appartement à MARCQ-EN-BAROEUL
Appartement à MARCQ-EN-BAROEUL
Appartement à MARCQ-EN-BAROEUL
Appartement à MARCQ-EN-BAROEUL
Ce site est protégé par reCAPTCHA la Politique de confidentialité et les Conditions d’utilisation de Google s’appliquent.
Obtenir un prêt immobilier au meilleur taux ?

En poursuivant votre navigation sans modifier vos paramètres, vous acceptez l'utilisation de cookies susceptibles de réaliser des statistiques de visite. Cliquez ici pour plus d'informations