Bénéficiez des services de nos partenaires locaux soigneusement sélectionnés
pour vous accompagner dans votre parcours d'achat immobilier

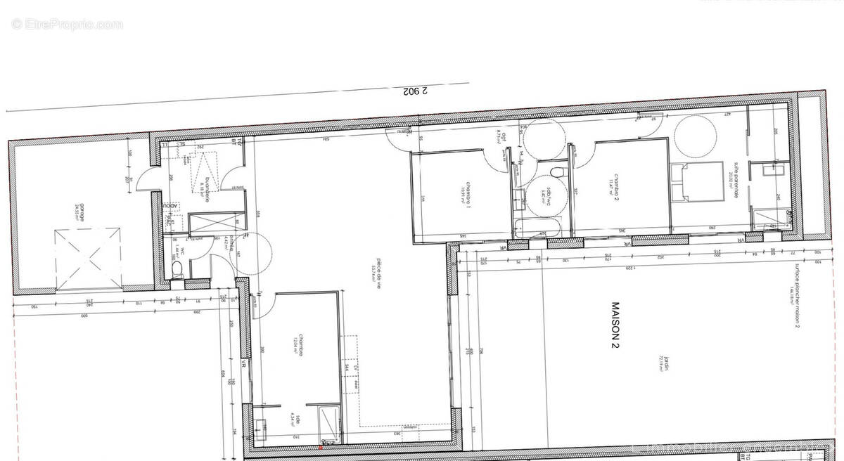
Maison 143m² à sainte-soulle

— Sainte-Soulle 17220 —
448 500 €
143 m² / 300 m²
5 pièces
parkingbalcon/terrassejardin

Nos partenaires locaux
Maison de plain-pied de 143 m² offrant un confort moderne. Elle est terminé et attends votre visite.

Frais de notaire estimés à moins de 10 000 € (réduits).

L'intérieur, spacieux et lumineux, se compose de 5 pièces, dont 4 chambres, une salle de bains et deux salles d'eau.
Un séjour d'une superficie de 56 m² ouvert sur la cuisine, aménagée et équipée, un cellier,
Un garage et un jardin clos de murs.
À proximité, vous trouverez plusieurs commodités pratiques. Vous pourrez vous rendre à pied au centre bourg où vous trouverez les commerces et les écoles. Un bus se trouve également à 5 minutes à pied, facilitant vos déplacements quotidiens.

Appelez moi pour convenir d'un rendez-vous!
Edwige MICHEL [Coordonnées masquées]





Honoraires inclus de 3.1% TTC à la charge de l'acquéreur. Prix hors honoraires 435 000 €. Classe énergie A, Classe climat A Montant estimé des dépenses annuelles d'énergie pour un usage standard : entre 480.00 € et 710.00 € sur les années 2021, 2022 et 2023 (abonnements compris). Les informations sur les risques auxquels ce bien est exposé sont disponibles sur le site Géorisques : georisques.gouv.fr.

Votre conseiller ROCHELLA Immobilier : Edwige MICHEL
Agent commercial (Entreprise individuelle)
RSAC 928866490
RCP ACI27817.
Rochella, l'immobilier ensemble !
Voir plus

Référence: VM2605-ROCHELLA
Honoraires d'agence de 3.1% à la charge de l'acquéreur
Barème des honoraires
DPE
A
B
C
D
E
F
G
GES
A
B
C
D
E
F
G

Prêt immobilier

Vous souhaitez connaître votre capacité d’emprunt et trouver le meilleur crédit immobilier ?
Réaliser une simulation gratuite

Maison à SAINTE-SOULLE
Maison à SAINTE-SOULLE
Maison à SAINTE-SOULLE
Maison à SAINTE-SOULLE
Maison à SAINTE-SOULLE
Maison à SAINTE-SOULLE
Maison à SAINTE-SOULLE
Maison à SAINTE-SOULLE
Maison à SAINTE-SOULLE
Ce site est protégé par reCAPTCHA la Politique de confidentialité et les Conditions d’utilisation de Google s’appliquent.
Obtenir un prêt immobilier au meilleur taux ?

En poursuivant votre navigation sans modifier vos paramètres, vous acceptez l'utilisation de cookies susceptibles de réaliser des statistiques de visite. Cliquez ici pour plus d'informations