!! special investisseur !!

— Suresnes 92150 —
424 700 €
68 m²
3 pièces

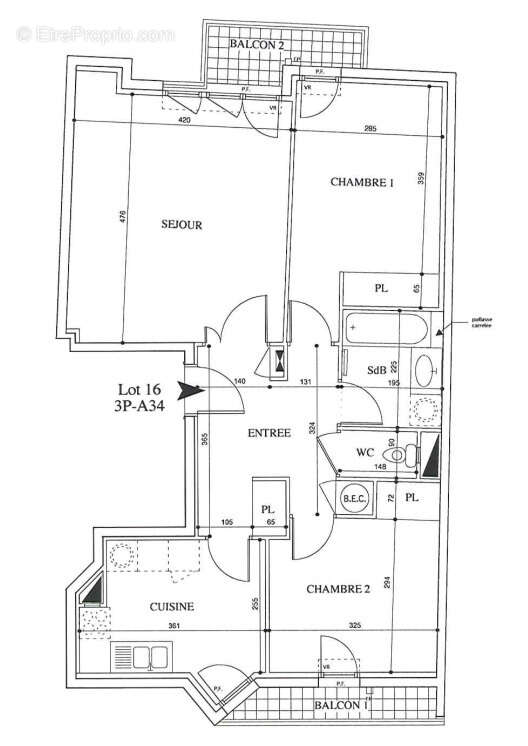
LA FRANCAISE REAL ESTATE MANAGERS VEND à SURESNES (92150). Un appartement T3 de 68,26 m² au 3e étage cave et parking en sous-sol. Réf. Lot 32. Lot n°32.

Vente d'un appartement occupé, dans résidence récente de 2006, à quelques minutes à pied du tramway Belvédère, donnant sur une allée piétonne, pour investisseur!

Très bel appartement 3 pièces traversant avec deux balcons et situé au 3e étage avec ascenseur.

Atouts supplémentaires :
- Rentabilité immédiate, locataire déjà en place,
- Appartement bien situé
- Pas de frais d'agence

Contactez-nous pour le détail du bail et la rentabilité locative.

DPE : C (120 KWh/m².an) – GES : A (3 kgCO2/m².an). Montant des dépenses d'énergie pour un usage habituel estimé à 840 €/an (prix moyens des énergies indexés au 01/01/2023, abonnements compris). Copropriété de 75 lots sans procédure en cours. Charges de copropriété estimées à 2 120 €/an.

Prix de vente : 424 700 €. Honoraires à la charge du vendeur. Aucun frais d'agence.

Les informations sur les risques auxquels ce bien est exposé sont disponibles sur le site Géorisques (www.georisques.gouv.fr).
Voir plus

Référence: 92-25-002479
DPE
A
B
C
D
E
F
G
GES
A
B
C
D
E
F
G

Prêt immobilier

Vous souhaitez connaître votre capacité d’emprunt et trouver le meilleur crédit immobilier ?
Réaliser une simulation gratuite

Appartement à SURESNES
Appartement à SURESNES
Appartement à SURESNES
Appartement à SURESNES
Appartement à SURESNES
Appartement à SURESNES
Appartement à SURESNES
Appartement à SURESNES
Ce site est protégé par reCAPTCHA la Politique de confidentialité et les Conditions d’utilisation de Google s’appliquent.
Obtenir un prêt immobilier au meilleur taux ?

En poursuivant votre navigation sans modifier vos paramètres, vous acceptez l'utilisation de cookies susceptibles de réaliser des statistiques de visite. Cliquez ici pour plus d'informations