Bénéficiez des services de nos partenaires locaux soigneusement sélectionnés
pour vous accompagner dans votre parcours d'achat immobilier

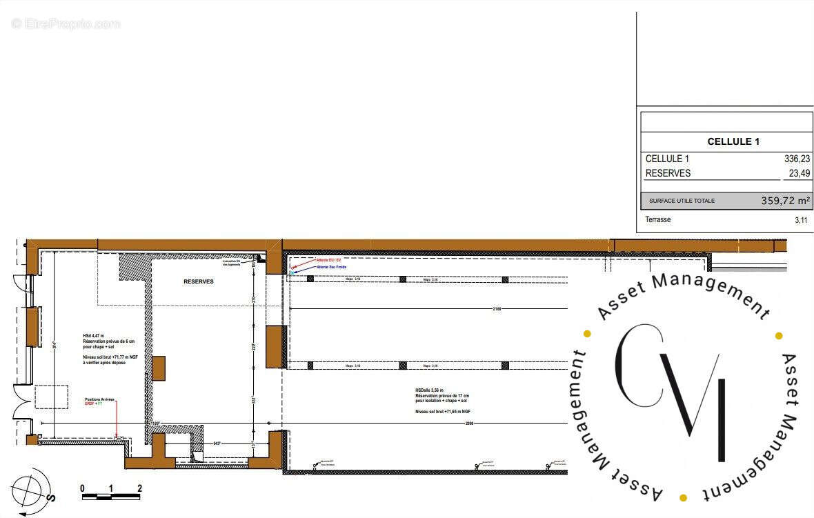
Commerce 360m² à la roche-sur-yon

— La Roche-Sur-Yon 85000 —
897 000 €
360 m²

Nos partenaires locaux
Murs libres d'un local commercial en plein centre ville de 359,72m² + une terrasse de 3,11m² à vendre en VEFA dans un programme de qualité dont la livraison est prévue à partir du 4ème trimestre 2025 - Local livré brut de béton - Idéalement situé, installez votre commerce au coeur du Pentagone de La Roche-sur-Yon. Une adresse prisée très passante en terme de flux piétonnier. Votre devanture et votre enseigne commerciale bénéficieront de la meilleure visibilité possible en plein coeur de la capitale vendéenne. Entouré de toutes les grandes enseignes commerciales, à proximité immédiate des arrêts de bus et proche de la gare de La-Roche-sur-Yon il s'agit d'un emplacement idéal pour vous implanter!
Prix de vente 897.000€ TTC (747.500€ HT), nous contacter pour plus d'informations

Non soumis au DPE. Les informations sur les risques auxquels ce bien est exposé sont disponibles sur le site Géorisques : georisques.gouv.fr.

Votre conseiller CONSEIL ET VALORISATION IMMOBILIER ASSET MANAGEMENT : Conseiller Immobilier - Davy SERFATI
Voir plus

Référence: 164-CVI
Honoraires à la charge de l'acquéreur.

Prêt immobilier

Vous souhaitez connaître votre capacité d’emprunt et trouver le meilleur crédit immobilier ?
Réaliser une simulation gratuite

Commerce à LA ROCHE-SUR-YON
Commerce à LA ROCHE-SUR-YON
Commerce à LA ROCHE-SUR-YON
Commerce à LA ROCHE-SUR-YON
Ce site est protégé par reCAPTCHA la Politique de confidentialité et les Conditions d’utilisation de Google s’appliquent.
Obtenir un prêt immobilier au meilleur taux ?

En poursuivant votre navigation sans modifier vos paramètres, vous acceptez l'utilisation de cookies susceptibles de réaliser des statistiques de visite. Cliquez ici pour plus d'informations