Maison de village avec terrasse tropézienne, cour intérieure et studio indépendant

— Pierrelongue 26170 —
397 000 €
190 m²
7 pièces
balcon/terrasse

Au cœur d’un authentique village provençal, cette maison de village de 190 m2, entièrement rénovée avec goût, conjugue charme d’antan et confort moderne. Véritable havre de paix, elle offre une atmosphère empreinte de calme et de sérénité.
Le rez-de-jardin côté cour
accueille un studio indépendant comprenant une salle d’eau et une kitchenette, ouvrant sur une cour intérieure intime et préservée de tout vis-à-vis.
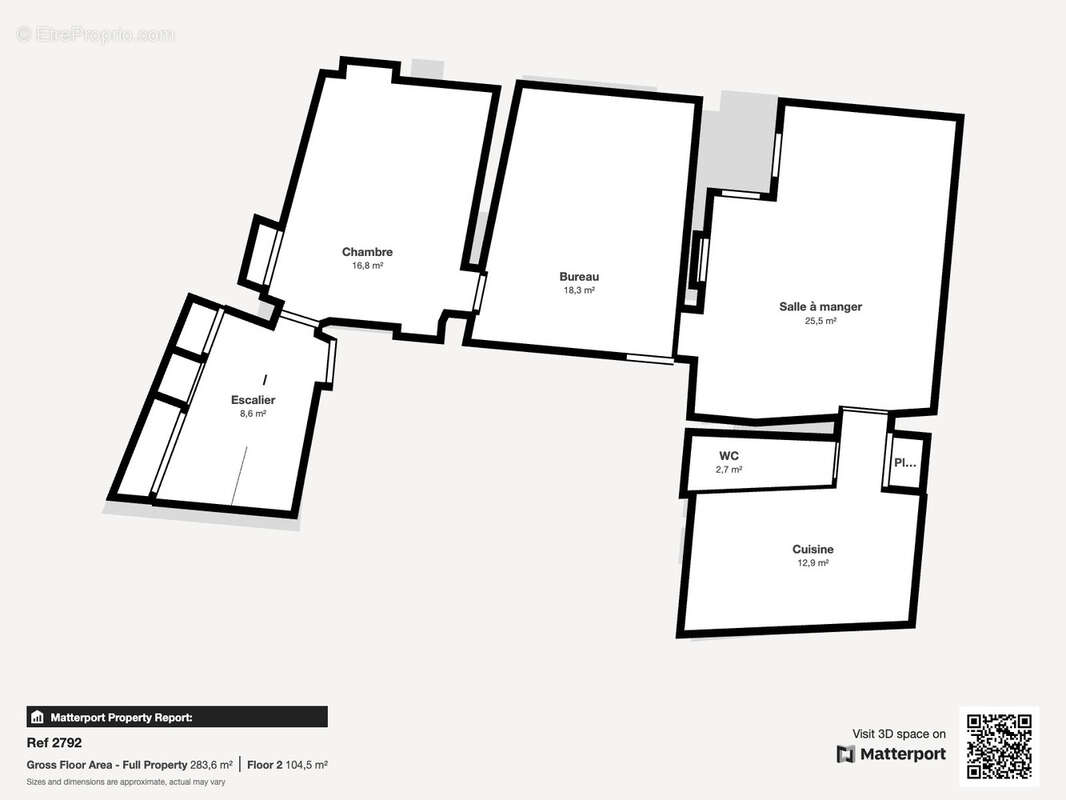
Au rez-de-chaussée, une vaste salle à manger aux poutres apparentes s’associe à une cuisine séparée, entièrement équipée et tournée vers la cour. Un bureau en pierres apparentes, une chambre dotée de son ancien évier en pierre ainsi qu’un poêle complètent ce niveau.
Le premier étage dévoile un salon chaleureux agrémenté d’un poêle à bois et donnant accès à une terrasse tropézienne, offrant une vue dégagée sur les environs. On y trouve également une chambre avec salle de bains, une salle de bains indépendante supplémentaire, ainsi qu’une grande chambre prolongée par une véranda/jardin d’hiver.
La maison est équipée de la climatisation réversible, de moustiquaires et de fenêtres à double vitrage, garantissant un confort optimal toute l’année. Deux caves voûtées viennent renforcer l’authenticité et le cachet de cette demeure.
Idéalement située, à seulement 8 minutes de Buis-les-Baronnies et 20 minutes de Vaison-la-Romaine, elle se prête aussi bien à une résidence principale qu’à une maison de vacances ou à un investissement locatif de charme. Les informations sur les risques auxquels ce bien est exposé sont disponibles sur le site Géorisques : www.georisques.gouv.fr
Voir plus

Référence: 2792
Honoraires à la charge du vendeur.
Barème des honoraires
DPE
A
B
C
D
E
F
G
GES
A
B
C
D
E
F
G

Prêt immobilier

Vous souhaitez connaître votre capacité d’emprunt et trouver le meilleur crédit immobilier ?
Réaliser une simulation gratuite

Maison à PIERRELONGUE
Maison à PIERRELONGUE
Maison à PIERRELONGUE
Maison à PIERRELONGUE
Maison à PIERRELONGUE
Maison à PIERRELONGUE
Maison à PIERRELONGUE
Maison à PIERRELONGUE
Maison à PIERRELONGUE
Maison à PIERRELONGUE
Maison à PIERRELONGUE
Maison à PIERRELONGUE
Maison à PIERRELONGUE
Maison à PIERRELONGUE
Maison à PIERRELONGUE
Maison à PIERRELONGUE
Maison à PIERRELONGUE
Maison à PIERRELONGUE
Maison à PIERRELONGUE
Maison à PIERRELONGUE
Maison à PIERRELONGUE
Ce site est protégé par reCAPTCHA la Politique de confidentialité et les Conditions d’utilisation de Google s’appliquent.
Obtenir un prêt immobilier au meilleur taux ?

En poursuivant votre navigation sans modifier vos paramètres, vous acceptez l'utilisation de cookies susceptibles de réaliser des statistiques de visite. Cliquez ici pour plus d'informations