Bénéficiez des services de nos partenaires locaux soigneusement sélectionnés
pour vous accompagner dans votre parcours d'achat immobilier

Appartement valcenis studio 25m2 - les alpages (2 pers.) - sous bail

— Aussois 73500 —
99 500 €
25 m²
1 pièce
parkingascenseur

Nos partenaires locaux
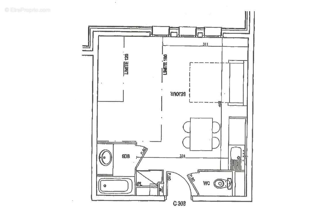
Au sein du complexe Les Alpages de Valcenis, cet appartement situé dans le chalet C est composé d'une entrée sur pièce de vie avec coin séjour (2 couchages) avec cuisine toute équipée, avec placard, une salle de bain avec baignoire et W-C .
Au 3ème étage, 3 fenêtres à l'Ouest.

Casier à skis. BAIL COMMERCIAL jusqu'en Septembre 2029.

Pour information: La résidence est fermée pendant les hors saisons (du 30/04 au 20/06 et du 10/09 au 30/11).

Des renseignements complémentaires ? N'hésitez pas ! Contactez nous au [Coordonnées masquées] ou par e-mail [Coordonnées masquées]

Visite VIDEO : https://youtu.be/S_M1Hp6DdG4
Voir plus

Référence: MT-0264
DPE
A
B
C
D
E
F
G
GES
A
B
C
D
E
F
G

Prêt immobilier

Vous souhaitez connaître votre capacité d’emprunt et trouver le meilleur crédit immobilier ?
Réaliser une simulation gratuite

Appartement à AUSSOIS
Appartement à AUSSOIS
Appartement à AUSSOIS
Appartement à AUSSOIS
Appartement à AUSSOIS
Appartement à AUSSOIS
Appartement à AUSSOIS
Appartement à AUSSOIS
Appartement à AUSSOIS
Appartement à AUSSOIS
Appartement à AUSSOIS
Appartement à AUSSOIS
Appartement à AUSSOIS
Appartement à AUSSOIS
Appartement à AUSSOIS
Appartement à AUSSOIS
Appartement à AUSSOIS
Appartement à AUSSOIS
Ce site est protégé par reCAPTCHA la Politique de confidentialité et les Conditions d’utilisation de Google s’appliquent.
Obtenir un prêt immobilier au meilleur taux ?

En poursuivant votre navigation sans modifier vos paramètres, vous acceptez l'utilisation de cookies susceptibles de réaliser des statistiques de visite. Cliquez ici pour plus d'informations