Bénéficiez des services de nos partenaires locaux soigneusement sélectionnés
pour vous accompagner dans votre parcours d'achat immobilier

Lgt - mane72 - le manet - mane - rueil-malmaison

— Rueil-Malmaison 92500 —
405 000 €
67 m²
3 pièces
parkingbalcon/terrasse

Nos partenaires locaux
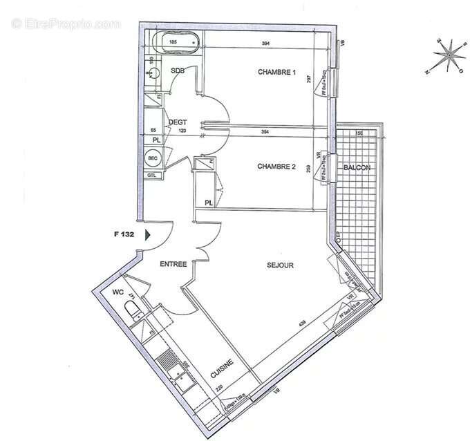
Emplacement recherché – Rue Galliéni, à deux pas (600M) du futur métro ligne 15 du Grand Paris, dans le quartier prisé du Mont Valérien à Rueil-Malmaison.

Idéal pour un investissement locatif ou une résidence principale, cet appartement 3 pièces de 67 m², situé au sein d’une résidence récente de standing, saura vous séduire par ses prestations modernes et son environnement verdoyant.

- Séjour lumineux exposé Sud-Ouest, ouvrant sur un balcon avec vue dégagée sur un parc arboré

- Cuisine indépendante avec fenêtre, possibilité d'ouvrir la cuisine et de faire une cuisine US spacieuse
- 2 grandes chambres avec rangements intégrés
- Salle de bains moderne avec sèche serviette + WC séparés
- dégagement avec placard
- 3 places de parking privées en sous-sol
- 1 cave

Les atouts de cet appartement :
- Exposition Sud-Ouest pour une luminosité optimale
- Résidence calme et sécurisée
- Proximité immédiate : commerces, écoles, transports (bus et futur métro)
- Quartier résidentiel très recherché, à la fois calme et proche des commodités

Bien soumis au statut de la copropriété. 5 Lots / 294.
DPE 144 (C) GES 4 (A).
Charges quote-part du budget prévisionnel 487€/trimestre et fond travaux 47€/ TRIMESTRE. Pas de procédure en cours.
Honoraires inclus de 3,60 % à la charge de l'acquéreur, soit 14 768€

Cette annonce contient une projection virtuelle réalisée par IA.

Les informations sur les risques auxquels ce bien est exposé sont disponibles sur le site Géorisques du gouvernement.

Prêt Vision Immo - société immatriculée au RCS de NANTERRE sous le numéro 852 689 397
Voir plus

Référence: 86068961
Barème des honoraires
DPE
A
B
C
D
E
F
G
GES
A
B
C
D
E
F
G

Prêt immobilier

Vous souhaitez connaître votre capacité d’emprunt et trouver le meilleur crédit immobilier ?
Réaliser une simulation gratuite

Appartement à RUEIL-MALMAISON
Appartement à RUEIL-MALMAISON
Appartement à RUEIL-MALMAISON
Appartement à RUEIL-MALMAISON
Appartement à RUEIL-MALMAISON
Appartement à RUEIL-MALMAISON
Appartement à RUEIL-MALMAISON
Appartement à RUEIL-MALMAISON
Appartement à RUEIL-MALMAISON
Appartement à RUEIL-MALMAISON
Appartement à RUEIL-MALMAISON
Appartement à RUEIL-MALMAISON
Appartement à RUEIL-MALMAISON
Appartement à RUEIL-MALMAISON
Appartement à RUEIL-MALMAISON
Ce site est protégé par reCAPTCHA la Politique de confidentialité et les Conditions d’utilisation de Google s’appliquent.
Obtenir un prêt immobilier au meilleur taux ?

En poursuivant votre navigation sans modifier vos paramètres, vous acceptez l'utilisation de cookies susceptibles de réaliser des statistiques de visite. Cliquez ici pour plus d'informations